Purify
作品详情
  • Details of the work 标题横线
    头像或者logo
    图片 陈俊宏 i室设圈漂亮家居设计家媒体特约推荐
    城市:高雄
    公司: 一步设计
    参赛作品: 沐
    空间类型:公寓(150㎡以下)
    个人/公司简介:
    从每踏出的第一步慢慢耕耘, 一步一步地聆听使用者需求, 一步一步地了解空间的声音, 一步一步地满足人们的需求 对于空间的背景、时空、现况一点一滴的琢磨, 营造美好的环境,是我们对设计的坚持。
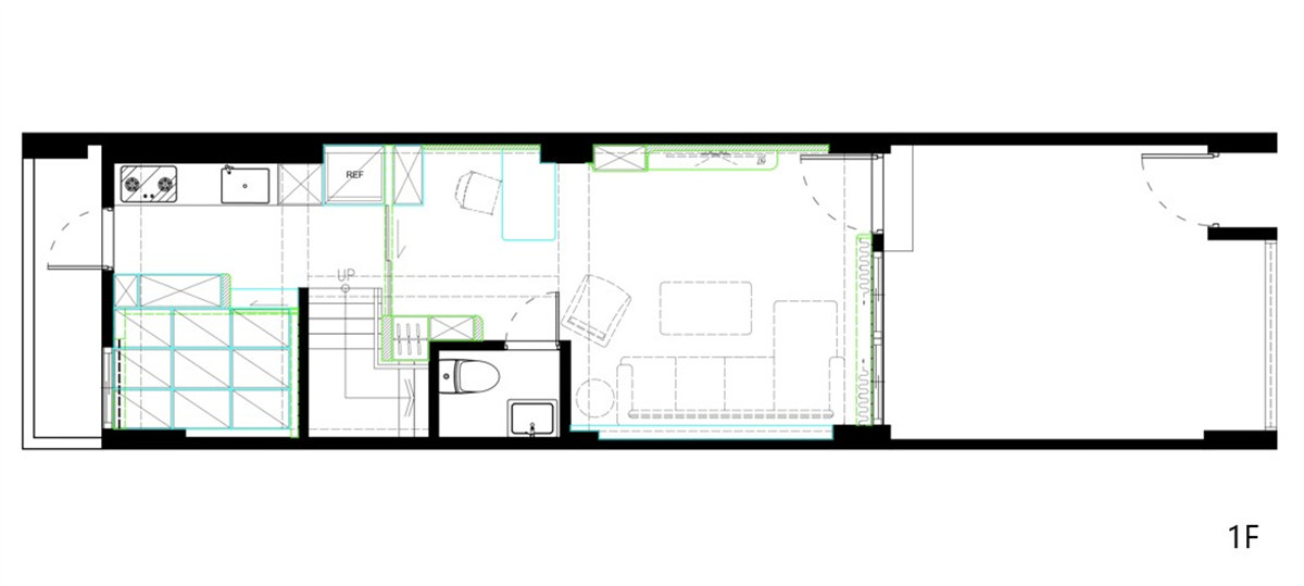
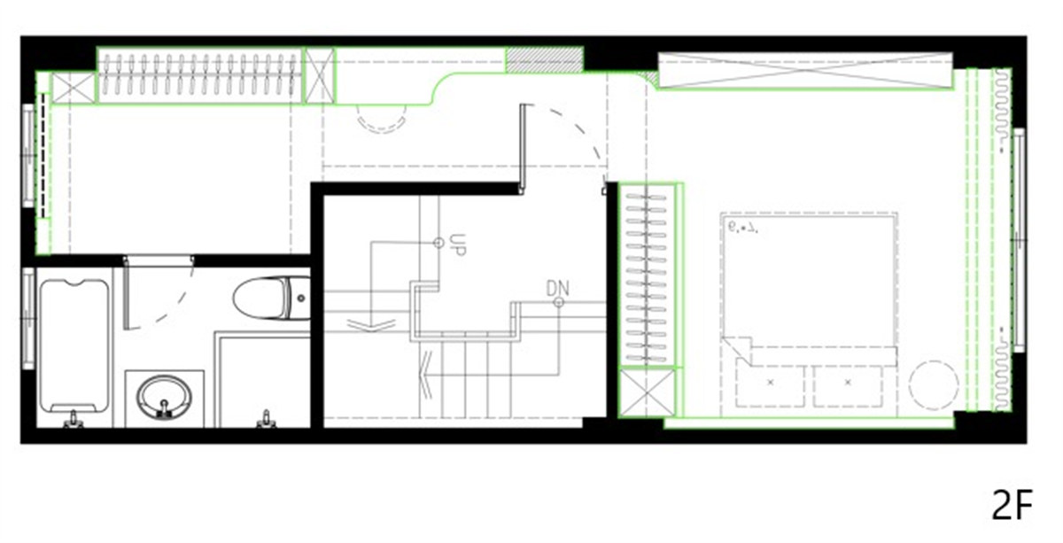
    设计说明 | Design Instruction
  • 基地为新成屋,空间根据使用者的人数进行适当的分配与调整,设计端根据业主的喜好与生活习惯进行规划,融合北欧的简约与侘寂的思想,形塑出「Japandi」的风格。以黑灰白三种色调进行比例配搭,运用色系的深浅凸显出公私领域的不同调性,融入自然建材与黄金比例的设计,以简约之美,将和谐与宁静注入空间,通过质朴的设计,营造出舒适的个人专属独享的宁谧居家氛围。
  • 图片
  • 图片
  • 图片
  • 图片
  • 图片
  • 图片
  • 图片
  • 图片
  • 图片
  • 图片
  • 图片
  • 图片
  • 图片
  • 图片
  • 图片
  • 图片
  • 图片
  • 上一个 下一个
    2024第八届金腾奖 私宅(独居)丨私宅(多人居)丨餐饮丨酒店丨办公丨商业丨公共丨公益丨人物丨NEW100 jintengAWARD(小金_金腾奖组委会) 广州市海珠区琶洲大道68号华新中心21楼
    金腾奖视频号 金腾奖小红书号 监制:刘译遥
    统筹:张俊媚
    运营:赖钰炼 曹凯月 刘芳棋 小金
    新媒体:王贝贝 严洁 张文一
    技术:黄天佑 丁德昌
    最终解释权归金腾奖主办方所有