Fang Hua Song
作品详情
  • Details of the work 标题横线
    头像或者logo
    图片 杨鹏 长沙青设联特约推荐
    城市:长沙
    公司: 哲合木意空间设计
    参赛作品: 芳华颂
    空间类型:别墅
    个人/公司简介:
    姓名:杨鹏(哲合木意空间设计主理人) 毕业院校:长沙理工大学环境艺术设计 从业年限:16年 职位职称: 中国建筑学会室内设计分会会员 长沙室内设计协会常务理事 长沙青设联合 常务理事 设计理念: 环境因空间产生美,空间因人产生美,人因环境享受美。 获奖情况: 2018湖南省室内设计大赛家居实景类:银奖 2018年 香港亚太室内设计豪宅类:金奖 同期荣获香港亚太室内设计师精英人物奖 2018年中国室内设计大赛住宅类:优秀奖 2019年FOCUS空间设计大奖实景类:金奖 2020年上海设计周:新锐设计奖 2020年G+自然共生设计赛:湖南省TOP10强 2023年亚太空间设计年度百强设计师 2023年新浪家居 卓群奖 2023年京东设计家大赛 TOP100 ……
    设计说明 | Design Instruction
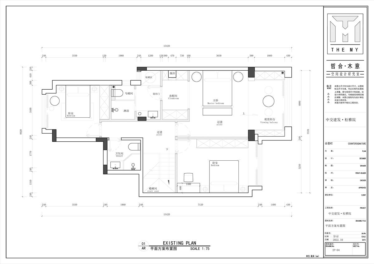
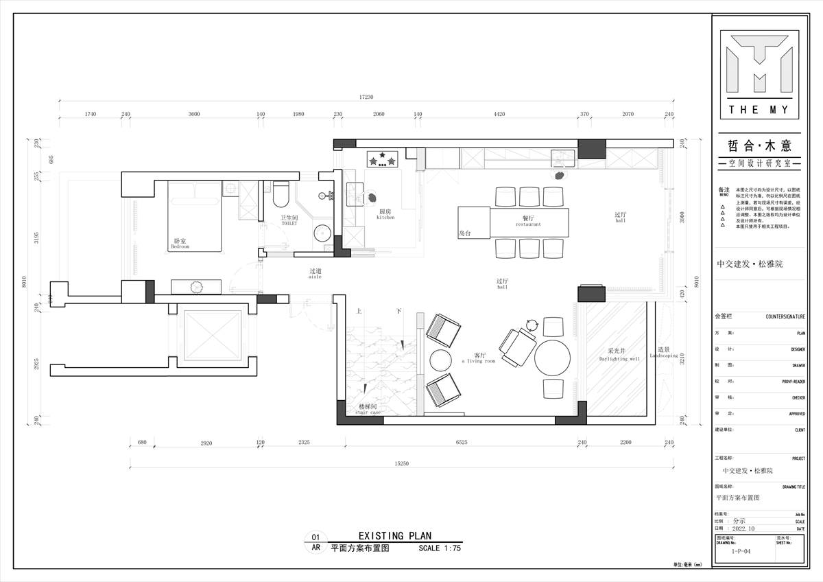
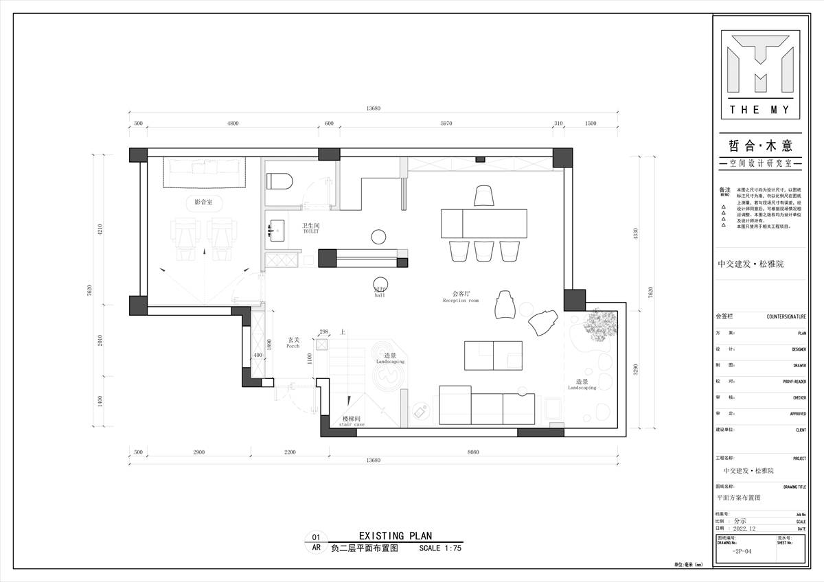
  • 在繁华都市的喧嚣中,人们渴望寻找一片宁静的心灵栖息地。东方现代设计,宛如一首舒缓的诗篇,以其独特的美学语言,为我们勾勒出一个充满诗意与禅意的空间,引领我们踏上回归本真的旅程。 本案位于湖南长沙淞雅苑下叠别墅,套内共计350平米使用面积,分上下4层,在功能使用上考虑动静分区,地下两层为接待来宾贵客,有考虑会客厅,品茶区,影音室,手工区等。一层则为用餐及通往前后花园的公共区域,有厨房,西餐吧台,多功能餐厅,客房等。二层为隐私性较强的居住层,有主卧套房,小孩房,次卧。 整个空间贯穿延用东方现代混搭形式,以柜门的藤编中式花型拉手为设计元素,从负二楼玄关柜贯穿到一楼西厨,再到二楼的主卧,每个小细节都在点睛之处。业主平日爱好于手工,品茶。所以在每层公共空间中,所到之处均为可兼顾其爱好的灵活大空间为设计主导手法,可开可合。 东方现代设计,是一种生活态度,一种对内心宁静的追求。它让我们在繁忙的生活中,停下脚步,倾听内心的声音,感受生活的美好。让我们在这个充满诗意与禅意的空间里,回归本真,找到属于自己的那份宁静与幸福。
  • 图片
  • 图片
  • 图片
  • 图片
  • 图片
  • 图片
  • 图片
  • 图片
  • 图片
  • 图片
  • 图片
  • 图片
  • 图片
  • 图片
  • 图片
  • 图片
  • 图片
  • 图片
  • 图片
  • 图片
  • 图片
  • 图片
  • 图片
  • 图片
  • 图片
  • 上一个 下一个
    2024第八届金腾奖 私宅(独居)丨私宅(多人居)丨餐饮丨酒店丨办公丨商业丨公共丨公益丨人物丨NEW100 jintengAWARD(小金_金腾奖组委会) 广州市海珠区琶洲大道68号华新中心21楼
    金腾奖视频号 金腾奖小红书号 监制:刘译遥
    统筹:张俊媚
    运营:赖钰炼 曹凯月 刘芳棋 小金
    新媒体:王贝贝 严洁 张文一
    技术:黄天佑 丁德昌
    最终解释权归金腾奖主办方所有