The Grooves of Memories
作品详情
  • Details of the work 标题横线
    头像或者logo
    图片 谢翔 i室设圈漂亮家居设计家媒体特约推荐
    城市:台北
    公司: 文山之丘设计
    参赛作品: 回忆蚀刻
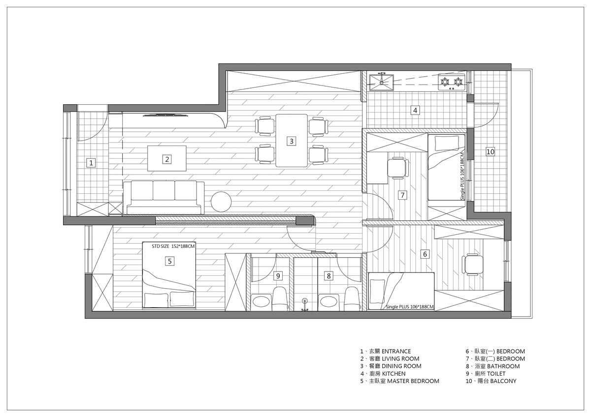
    空间类型:公寓(150㎡以下)
    个人/公司简介:
    谢翔 主持设计师 文山之丘设计 简介 美学与机能满足业主最纯粹的需求,并提出新的可能。 以设计改善住家生活,提升商空品牌价值。 获奖纪录 2024 TID Award台湾室内设计大奖 (零售空间) 2024 台湾 金点设计奖 入围 2020 意大利 A’ Design Award 商业空间类 铜奖 2020 中国 艾特奖 最佳娱乐空间设计 入围奖 2020 中国 晶鲲鹏国际设计大赛 工装组 优秀奖 2018 台湾 金点设计奖 入围
    设计说明 | Design Instruction
  • 朴实而温馨,彷佛是时光机穿梭的证人,迎接您的是一个历经四十二载风霜的老公寓。一个四口之家的温暖据点。 走进客餐厅,迎面而来的是一道看似黑胶唱片的刻纹,如音乐旋律般,串起了家的节奏,彷佛让每一天的生活都充满了动听的旋律。 而电视墙上的彩绘大理石弧墙,则犹如艺术品般缤纷夺目,为客厅增添了一抹精致的色彩。每一吋大理石的纹路仿若故事的章节,让空间中流转着无尽的美好。 仰望天花板,弧线造型隐藏着LED灯条,犹如星空般闪烁着微光。夜晚降临时,这些灯光点亮了家的每一个角落,为生活增添了一丝浪漫与温馨。 在玄关处,一个巧妙设计的鞋柜暗藏着穿鞋椅,既实用又美观,为家人提供了便利的收纳空间,也营造了一个整洁有序的入口。 这是一个融合了现代与经典的家,温暖寯永的设计风格,凝聚了家人之间的情感与回忆。在这里,每一个瞬间都是温暖的,每一个角落都充满了生活的美好。
  • 图片
  • 图片
  • 图片
  • 图片
  • 图片
  • 图片
  • 图片
  • 图片
  • 图片
  • 图片
  • 图片
  • 图片
  • 图片
  • 图片
  • 上一个 下一个
    2024第八届金腾奖 私宅(独居)丨私宅(多人居)丨餐饮丨酒店丨办公丨商业丨公共丨公益丨人物丨NEW100 jintengAWARD(小金_金腾奖组委会) 广州市海珠区琶洲大道68号华新中心21楼
    金腾奖视频号 金腾奖小红书号 监制:刘译遥
    统筹:张俊媚
    运营:赖钰炼 曹凯月 刘芳棋 小金
    新媒体:王贝贝 严洁 张文一
    技术:黄天佑 丁德昌
    最终解释权归金腾奖主办方所有