自然栖所
作品详情
  • Details of the work 标题横线
    头像或者logo
    图片 黎嘉
    城市:福州
    公司: 壹木设计
    参赛作品: 自然栖所
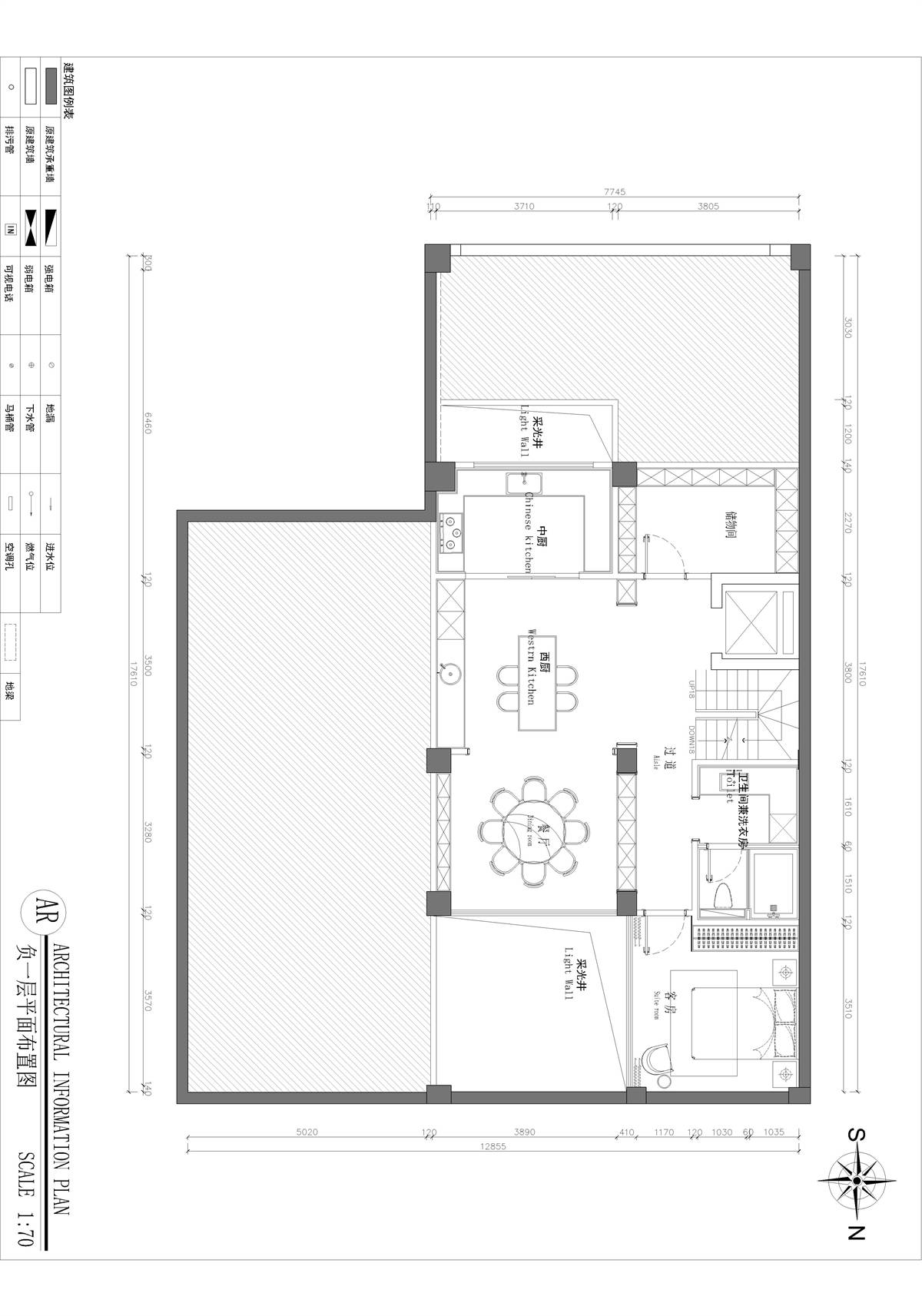
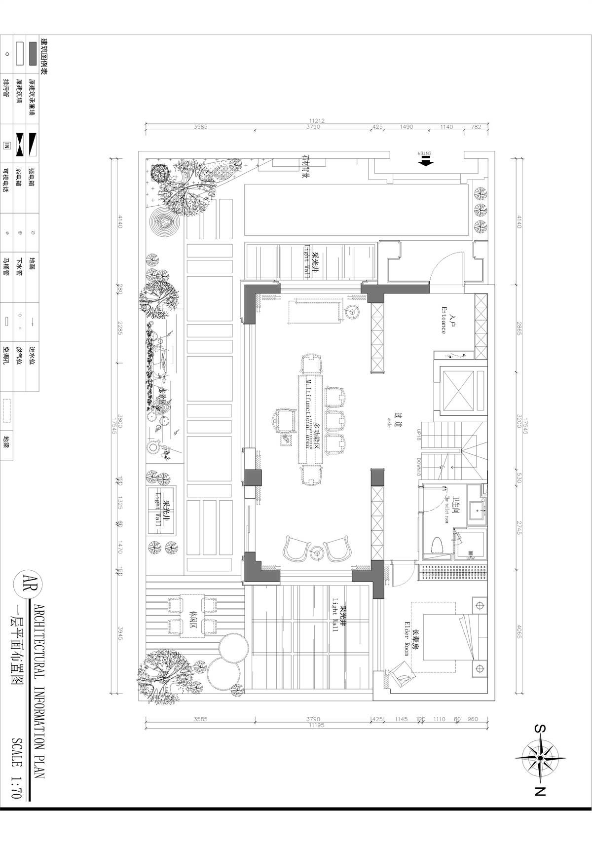
    空间类型:别墅
    个人/公司简介:
    黎 嘉 艺术总监 / 从业14年/ 天津大学建筑工程技术 设计理念:传递美、提升人在空间中的舒适体验感
    设计说明 | Design Instruction
  • 在空间规划上,设计师将公共休闲空间和生活空间用艺术玻璃分隔,彼此相连但相对独立,空间动线分明,互不干扰,以保证空间的创作自由与纯粹性。利用横平竖直的动线。有效的划分空间,为空间制造向各个内部空间的探索欲望,创造内向型空间和开放的扩展。氛围与体验的主要构成,融合解构主义特色,重视空间的考虑,奉行美观加实用的设计原则,且不乏艺术化特征。。解决人的居住需求,审美需求,情景需求。将居住体验结合艺术产品,呈现出来的家,才是有温度的
  • 图片
  • 图片
  • 图片
  • 图片
  • 图片
  • 图片
  • 图片
  • 图片
  • 图片
  • 图片
  • 图片
  • 图片
  • 图片
  • 图片
  • 图片
  • 图片
  • 图片
  • 图片
  • 图片
  • 图片
  • 图片
  • 图片
  • 图片
  • 图片
  • 图片
  • 图片
  • 图片
  • 图片
  • 图片
  • 图片
  • 图片
  • 图片
  • 图片
  • 图片
  • 图片
  • 图片
  • 图片
  • 图片
  • 上一个 下一个
    2024第八届金腾奖 私宅(独居)丨私宅(多人居)丨餐饮丨酒店丨办公丨商业丨公共丨公益丨人物丨NEW100 jintengAWARD(小金_金腾奖组委会) 广州市海珠区琶洲大道68号华新中心21楼
    金腾奖视频号 金腾奖小红书号 监制:刘译遥
    统筹:张俊媚
    运营:赖钰炼 曹凯月 刘芳棋 小金
    新媒体:王贝贝 严洁 张文一
    技术:黄天佑 丁德昌
    最终解释权归金腾奖主办方所有