李艺作品
作品详情
  • Details of the work 标题横线
    头像或者logo
    图片 李艺
    城市:淄博
    公司: 独立设计师
    参赛作品: 李艺作品
    空间类型:公寓(150㎡以下)
    个人/公司简介:
    教育背景: 毕业于天津财经大学艺术学院环境艺术设计专业 个人荣誉: 2022最美现代空间设计奖先锋人物 2022年年度老宅新生设计奖“淄博十大设计先锋人物 2023年山东省年度排行榜登榜设计师 2023年金住奖·中国百杰居住空间设计师 红棉设计奖·2023年度优秀雅居空间设计奖 40UNDER40(山东)当代设计杰出青年(2023-2024) 2023山东百强设计师(室内)排行榜登榜设计师 2023-2024设计千人计划入选设计师 2023-2024(山东)当代设计杰出青年 亚洲百强青年设计师榜(中华区)登榜设计师 原创设计工作室 主创设计师 SDID山设协设计顾问 勤于沟通、重于大局、微于细节、责于专业每个人的家都应该是独一无二的,像一本打开的书页,记录着主人的故事和梦想。以客户的个性和喜好为出发点,打造出兼具美感和实用性的空间。
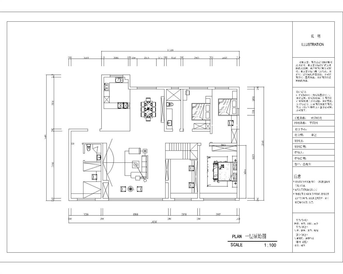
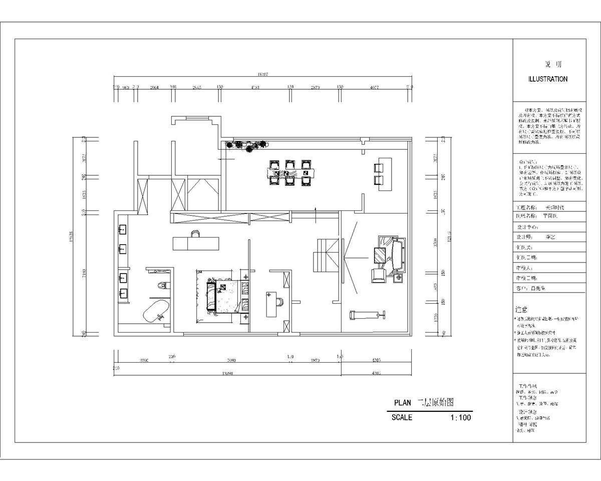
    设计说明 | Design Instruction
  • 设计应综合考虑风格、布局、装饰和环境等多个方面,以确保居住的舒适性和美观性。 布局应合理,考虑到生活流程和功能区域的需求。一层可能主要用于会客和日常生活,客厅作为公共空间我们发挥其最大利用,打开墙体使楼梯茶室客厅融为一体。使客厅看起来更透视宽阔,家里三个小孩也可以更舒服自由跑动。而二楼整个一层都是男主的套房,有独立的大卫生间和衣帽间还有书房客厅庭院。业主的私密性得到更好的诠释 此外以满足不同活动的需求。
  • 图片
  • 图片
  • 图片
  • 图片
  • 图片
  • 图片
  • 图片
  • 图片
  • 图片
  • 图片
  • 图片
  • 图片
  • 图片
  • 图片
  • 图片
  • 图片
  • 图片
  • 图片
  • 图片
  • 图片
  • 图片
  • 图片
  • 图片
  • 上一个 下一个
    2024第八届金腾奖 私宅(独居)丨私宅(多人居)丨餐饮丨酒店丨办公丨商业丨公共丨公益丨人物丨NEW100 jintengAWARD(小金_金腾奖组委会) 广州市海珠区琶洲大道68号华新中心21楼
    金腾奖视频号 金腾奖小红书号 监制:刘译遥
    统筹:张俊媚
    运营:赖钰炼 曹凯月 刘芳棋 小金
    新媒体:王贝贝 严洁 张文一
    技术:黄天佑 丁德昌
    最终解释权归金腾奖主办方所有