"Natural living" -- integrating nature into the living environment
作品详情
  • Details of the work 标题横线
    头像或者logo
    图片 陈誉碹 江南设特约推荐
    城市:无锡
    公司: 誉碹空间设计
    参赛作品: “融·自然居”——将自然融入居住环境
    空间类型:公寓(150㎡以下)
    个人/公司简介:
    ICDA国家注册高级室内设计师 ICDA国家注册高级软装设计师 日本爱之工业大学室内设计研修班学士 所获奖项: 第三届中国国际空间环境艺术设计大赛(筑巢奖)优秀奖 ICDA 中国室内装饰协会会员 ICDA 国际建筑室内设计协会 高级室内设计师 第五届中国国际空间环境艺术设计大赛(筑巢奖)优秀奖 “为中国设计发声”2017全国精英人物 2015年荣获“中国新锐设计师“称号 2016年中国国际亚太空间环境艺术大赛优秀作品奖 “为中国设计发声”2017全国精英人物 2018 进修于日本爱知工业大学 2019 进修于建E软装总监设计研修班 2019 意大利米兰设计周之欧洲十国游学邀请 2020 进修上海室内设计师(灯光设计)研修班 2020 年度中国设计星--华东无锡设计星 2021-2022 40 UNDER 40 中国(无锡)设计杰出青年 2022 年度中国十大居住空间设计金住奖 2022 年度中国设计星--华东无锡设计星 设计理念: 设计源于生活,而又执爱于艺术,通过对生活的体验感悟及对国内外艺术趋势进行学习总结,将业主的爱好,习惯,对美的诠释赋予空间。这既是关乎生活,又关于设计。
    设计说明 | Design Instruction
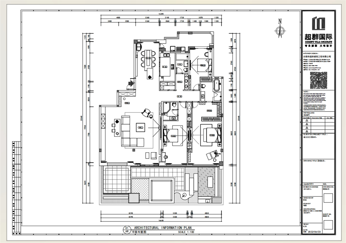
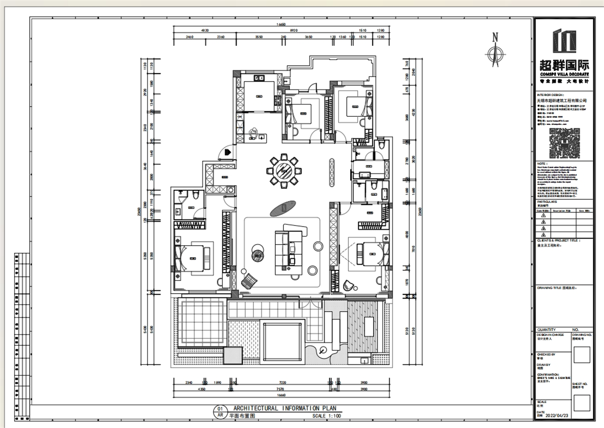
  • 本案是300m²带院子的日式家居空间,我们在和业主设计沟通上着重从空间布局、自然元素、极简主义、多功能性、光影效果、储物收纳及环保材料等多个维度出发,旨在打造一个既符合现代居住需求,又充满日式风情的居住环境。将庭院自然元素引入室内,使居住者仿佛置身于自然之中。 空间上通过大面积的落地窗或日式推拉门设计,最大化引入自然光线与室外景致,如庭院中的竹林、流水或远山,形成一幅幅生动的自然画卷。同时,室内装饰也常采用自然材质,如原木家具、竹编饰品等,增添一份质朴与温馨。日式空间布局讲究“流动”与“开放”,避免过多的隔断,以“和室”为核心,灵活划分功能区。 在空间内,通过低矮的家具、可移动的屏风或纸拉门来灵活划分休息区、会客区、工作区等,既保证了空间的通透感,又满足了多样化的生活需求。此外,还注重“留白”艺术,给予空间呼吸的余地,让心灵得以放松。材质上,日式设计偏爱自然、质朴的材质,如原木、竹、纸、麻布等,这些材料不仅环保健康还能营造出温警舒适的氛围。色彩上,则以淡雅、柔和为主,如米白、灰蓝、浅木色等,这些色彩能够让人感受到宁静与平和,与自然环境相得益彰。
  • 图片
  • 图片
  • 图片
  • 图片
  • 图片
  • 图片
  • 图片
  • 图片
  • 图片
  • 图片
  • 图片
  • 图片
  • 图片
  • 图片
  • 图片
  • 图片
  • 图片
  • 上一个 下一个
    2024第八届金腾奖 私宅(独居)丨私宅(多人居)丨餐饮丨酒店丨办公丨商业丨公共丨公益丨人物丨NEW100 jintengAWARD(小金_金腾奖组委会) 广州市海珠区琶洲大道68号华新中心21楼
    金腾奖视频号 金腾奖小红书号 监制:刘译遥
    统筹:张俊媚
    运营:赖钰炼 曹凯月 刘芳棋 小金
    新媒体:王贝贝 严洁 张文一
    技术:黄天佑 丁德昌
    最终解释权归金腾奖主办方所有