Quality quenching
作品详情
  • Details of the work 标题横线
    头像或者logo
    图片 徐嫡嬪&余蘋軒
    城市:台北
    公司: 沐易设计室内装修有限公司
    参赛作品: 質淬
    空间类型:别墅
    个人/公司简介:
    身兼沐易设计之主理人与知名餐饮连锁品牌、旅馆与都市更新之规划设计顾问;从业 10 年曾旅居美 国,为旧金山艺术大学硕士学位,拥有个人设计风格并崇尚美学统合。重视生活美感与动线需求的平 衡,并强调材料细节于空间配比的重要性。
    设计说明 | Design Instruction
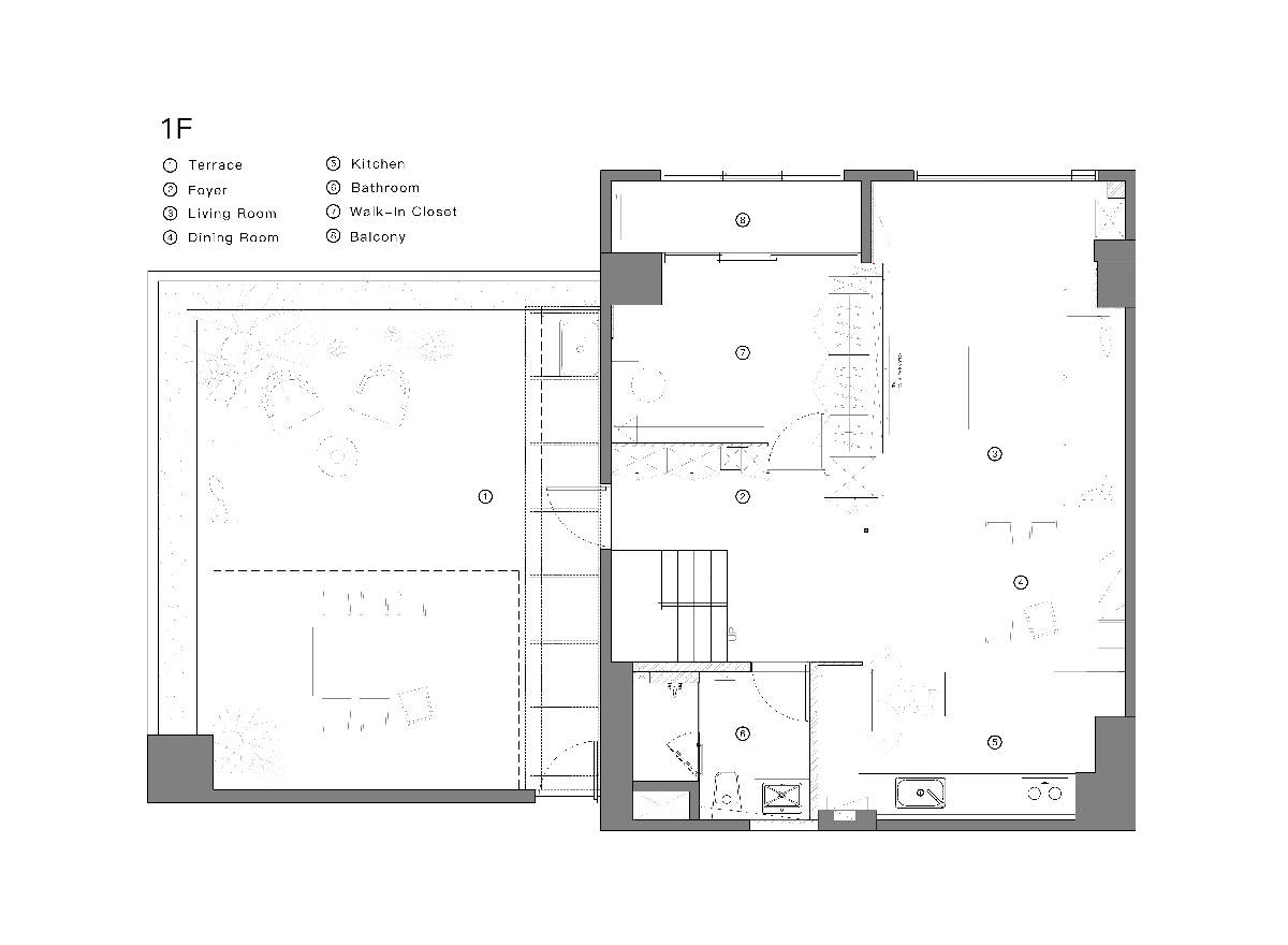
  • 年轻屋主有着多年海外求学经验,美学品味深受现代极简影响,选择在邻近繁华都会的近郊翻新三房两厅两 卫的复式住宅,与新婚妻子共筑崭新生活。他们拆除了旧有楼板,争取到最高的层高,通过放大整体板材尺寸 和重新布管,使原本复杂的空间变得简洁利落。采用“Less is more”的包豪斯风格为设计主调,将形随功能 的美学融入几何元素与利落线条中。 一楼客厅以电视柜为中心,通过嵌入柜体侧缘与周围墙面的线性光带划分场域,并与层板线灯形成温暖的光 晕,为展示陈列的层架增添优雅细节。下方柜体采用沉稳哑光的不锈钢毛丝面板打造出轻奢质感,平衡了家具、 柜体与木质地板的空间色调。在电视柜后方,为女主人设计了专属更衣室,石纹壁柜内部配备了灵活使用的移 动式层架,贴合时尚的生活需求。 利用既有大梁形成的微型天花板,在窗边规划木质地台,提升空间层次。在视听休憩时,只需打开电动窗帘 便能欣赏窗外的绿意。开放式厨房与客厅相连,采用兼具美感与环保的赛丽石打造复合型中岛流理台面,奶茶 色橱柜结合灰木纹理餐桌,在整体空间的灰白基调中散发出一丝柔美。家具的圆角设计中和了硬朗的结构线 条,通过融合不同质感的元素,营造出刚柔并济的氛围。 二楼的私密起居空间使用与一楼相同的色调,创造了更宽阔的视觉延伸效果。壁灯与线性灯条作为照明,使 设计主轴贯穿上下楼层。衣柜内设置了红外线感应功能,当柜门自动开启时,灯条会立即照亮柜体深度,弥补 天花上大梁造成的暗角,将设计巧思注入日常生活中。 全屋的深色元素集中在架撑结构与柜体的铁件上,少量用于勾勒线条,强化设计细节。楼梯采用镂空设计, 搭配透明玻璃踏板,带来悬浮般的轻盈感,使空间保持通透明亮。通过在大面积墙面加入简约的格栅设计,以 及在电视主柜与主卧床头选用特殊涂料制作的手工纹理,创造出视觉亮点,去除繁杂装饰,充分展现屋主夫妇 的时尚气质。
  • 图片
  • 图片
  • 图片
  • 图片
  • 图片
  • 图片
  • 图片
  • 图片
  • 图片
  • 图片
  • 图片
  • 图片
  • 图片
  • 图片
  • 图片
  • 图片
  • 图片
  • 上一个 下一个
    2024第八届金腾奖 私宅(独居)丨私宅(多人居)丨餐饮丨酒店丨办公丨商业丨公共丨公益丨人物丨NEW100 jintengAWARD(小金_金腾奖组委会) 广州市海珠区琶洲大道68号华新中心21楼
    金腾奖视频号 金腾奖小红书号 监制:刘译遥
    统筹:张俊媚
    运营:赖钰炼 曹凯月 刘芳棋 小金
    新媒体:王贝贝 严洁 张文一
    技术:黄天佑 丁德昌
    最终解释权归金腾奖主办方所有