rongchuangchenyuan
作品详情
  • Details of the work 标题横线
    头像或者logo
    图片 夏凯 设计西安特约推荐
    城市:西安
    公司: 夏麦浪空间设计
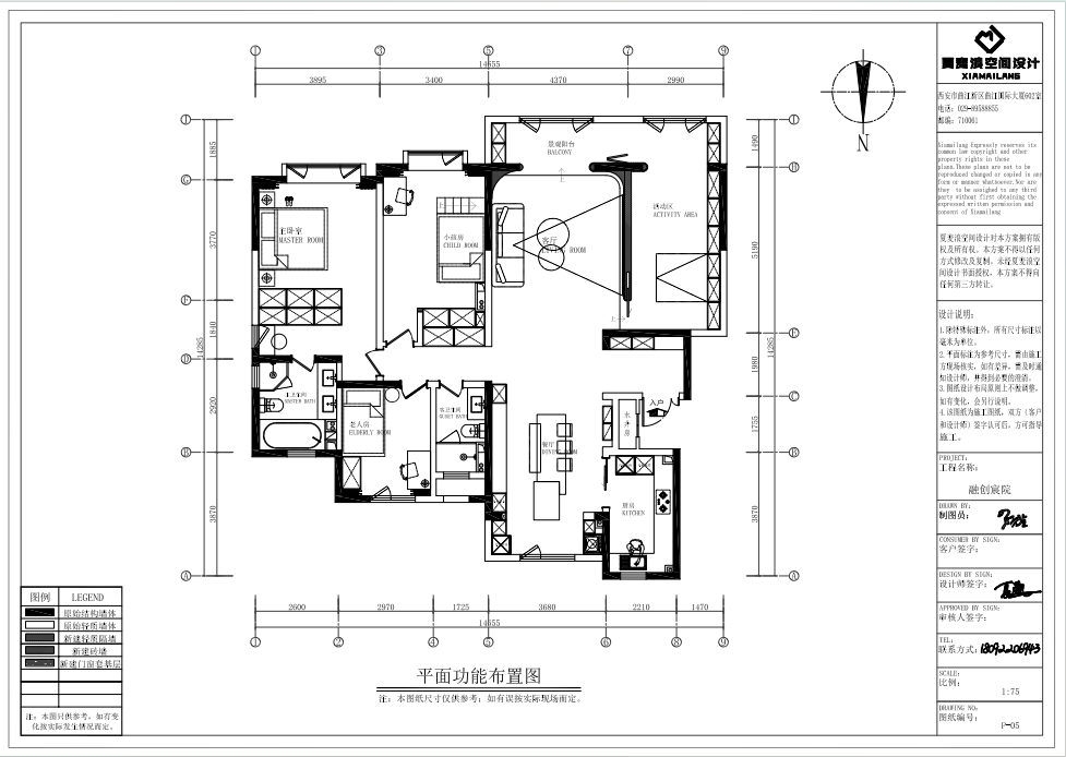
    参赛作品: 融创宸院
    空间类型:别墅
    个人/公司简介:
    姓名:夏凯 教育背景:西安建筑科技大学 在职公司:夏麦浪空间设计 职位:主案设计师 从业年限:9年 籍贯:陕西.西安 擅长风格:现代极简、日式禅意 设计理念:当今室内空间设计谈的不是风格,不是色彩,更不是某一个背景墙的造型设计,而是设计师利用理性的设计思维结合预算,帮客户呈现最完美的生活状态! 个人荣誉:2020金柱奖西安十佳设计师、陕西省第十一届室内设计大赛“原点明珠杯”银奖 成功案例:西安市 曲江公馆和园 万科城润园 紫薇田园都市 高山流水 就掌灯 逸翠园 山水草堂别墅 西派国际 曲江金地尚林苑 绿地香树花城 绿地世纪城 魏玛公馆 紫薇兴隆园 曲江中海熙园 曲江中海东郡 曲江海天华庭 枫林华府 曲江大华公园世家 枫林意树 西安曲江鸿基紫韵样板间 西安绿地香树花城样板间
    设计说明 | Design Instruction
  • 原始房屋是一套四室三卫的精装房,居住人员是夫妻二人和两个女儿,想给女儿们一个自由,  快乐的成长空间。 卧室中对收纳的需求比较多,也希望在卧室空间中女主人可以拥有一个mini衣帽间。· 二卫足以满足屋主的需求,我们将儿童房的卫生间去除,扩大卧室的使用面积,居住起来也会更加的舒适。 设计思路  在无主灯的空间中,使用泛光源制造氛围感。· 使用弧形元素弱化墙体的棱角感,打造温馨的氛围。 使空间得到串联,增加活动动线,使整个空间变得有趣
  • 图片
  • 图片
  • 图片
  • 图片
  • 图片
  • 图片
  • 图片
  • 图片
  • 图片
  • 图片
  • 图片
  • 图片
  • 图片
  • 图片
  • 图片
  • 图片
  • 图片
  • 图片
  • 图片
  • 图片
  • 图片
  • 图片
  • 图片
  • 图片
  • 图片
  • 图片
  • 图片
  • 图片
  • 上一个 下一个
    2024第八届金腾奖 私宅(独居)丨私宅(多人居)丨餐饮丨酒店丨办公丨商业丨公共丨公益丨人物丨NEW100 jintengAWARD(小金_金腾奖组委会) 广州市海珠区琶洲大道68号华新中心21楼
    金腾奖视频号 金腾奖小红书号 监制:刘译遥
    统筹:张俊媚
    运营:赖钰炼 曹凯月 刘芳棋 小金
    新媒体:王贝贝 严洁 张文一
    技术:黄天佑 丁德昌
    最终解释权归金腾奖主办方所有