biguiyuan
作品详情
  • Details of the work 标题横线
    头像或者logo
    图片 夏麦浪空间设计 设计西安特约推荐
    城市:西安
    公司:夏麦浪空间设计
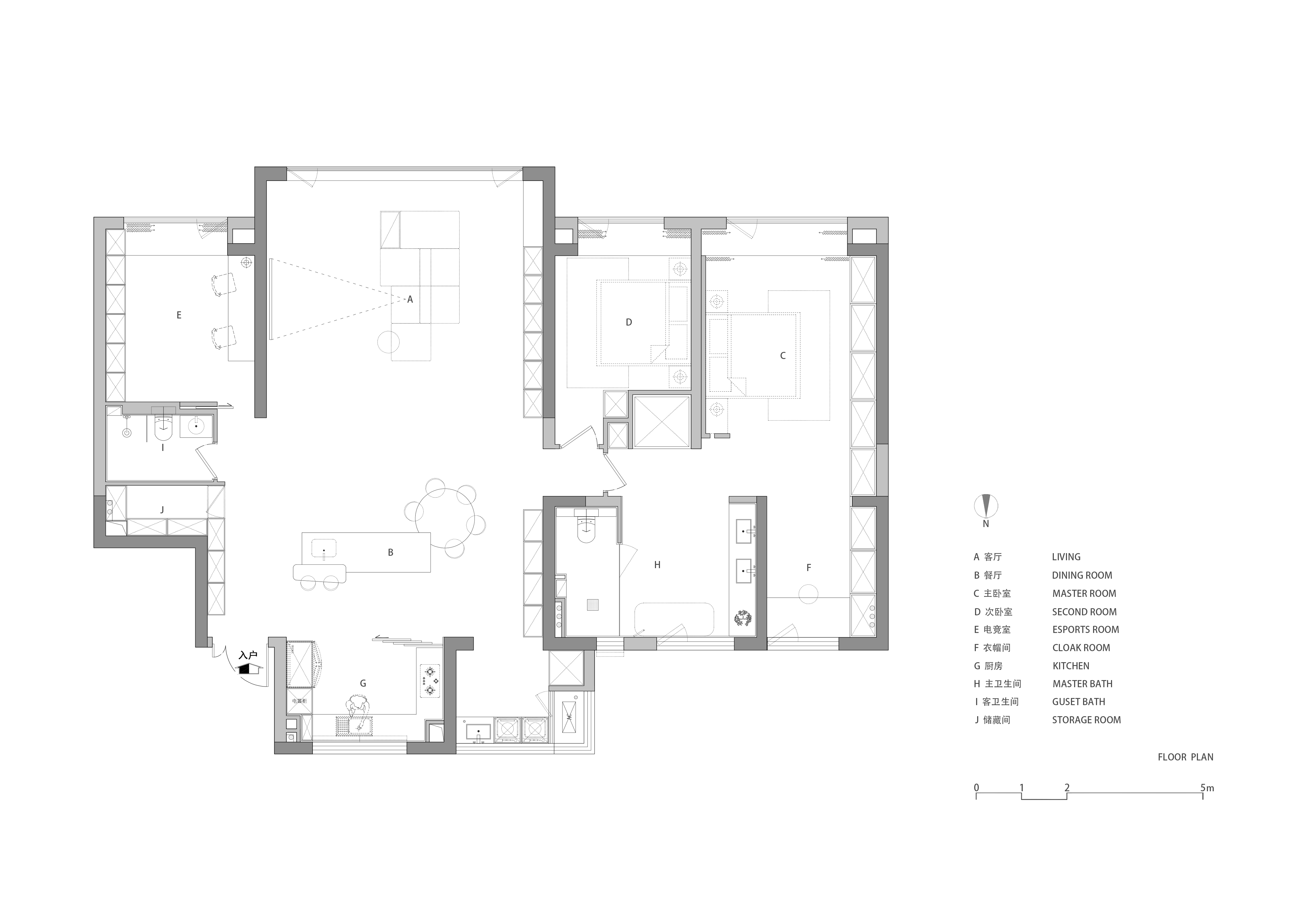
    参赛作品: 碧桂园
    空间类型:别墅
    个人/公司简介:
    夏麦浪公司简介 我们站在客户的角度,以他们的视角重新审视这个空间。对于信任我们的客户,我们深知,除了设计,还有更多需要我们去关注和完善。我们尝试以一个普通业主的身份,从踏入店门的那一刻起,去体验每一个细节,感受每一处服务。 2023年末,我们按下暂停键,重新审视自己的服务。我们细化选材的每一个环节,让客户在选材时不再迷茫;我们增强自由度体验感,让客户在空间中自由呼吸。       升级,意味着客户可以体验到多种方案,感受空间的无限可能;可以挑选无色差的材料,打造完美的家居环境;可以享受细致的服务,感受我们的用心与热情。更重要的是,我们尊重每一位客户的自由选择权,让个性化设定成为空间的一部分,让家更加温馨和谐。 基于每位业主的生活习惯,品质生活的追求,以XML的设计理念。围绕“做有温度的设计”的设计为主张,面对不同户型,体察对方的需求,采取当下最适宜的表达,尽管这意味着花费更多的时间于经历,但是这也是我们心中与您“协作”的初衷。
    设计说明 | Design Instruction
  • 碧桂园设计说明 褪去浮华,纯净的白色成为家的主色调,不仅仅是视觉的美感,更是一种精神的共鸣,每一个设计细节都寄托着设计师的情感与思想和对业主的美好祝愿。 规避了传统的客厅思维,采用围合式的布局充分彰显空间的“自由”与“通透”。洄游动线更加强居所的舒适度,重新建立一种新的秩序美,家具的摆设和配色都遵循着这种美的内在逻辑和规律。在餐厅的设计中,设计师追求一种轻松愉悦的用餐氛围,采用开放式布局以此增强开阔的视角。客餐厨的布局充分的阐释不同区域之间割裂又相依的关系。餐边柜同时满足收纳和西厨的功能需求。卧室大面积的白色,通过视觉感受输出情绪,获得一个舒适、宁静极简的睡眠环境。套间设计更具有私密性,同时也提高了居住体验。白色的大浴缸是对生活的无限热爱,点点烛光中卸下一天的疲备,感受独处的时光。内设的卫生间和衣帽间强调了起居室功能的完整性,衣帽间,这个安静独立的空间,同时作为书房用,满足了办公学习的需求,提高了空间的利用率。
  • 图片
  • 图片
  • 图片
  • 图片
  • 图片
  • 图片
  • 图片
  • 图片
  • 图片
  • 图片
  • 图片
  • 图片
  • 图片
  • 图片
  • 图片
  • 图片
  • 图片
  • 图片
  • 图片
  • 图片
  • 图片
  • 图片
  • 图片
  • 图片
  • 图片
  • 图片
  • 图片
  • 图片
  • 上一个 下一个
    2024第八届金腾奖 私宅(独居)丨私宅(多人居)丨餐饮丨酒店丨办公丨商业丨公共丨公益丨人物丨NEW100 jintengAWARD(小金_金腾奖组委会) 广州市海珠区琶洲大道68号华新中心21楼
    金腾奖视频号 金腾奖小红书号 监制:刘译遥
    统筹:张俊媚
    运营:赖钰炼 曹凯月 刘芳棋 小金
    新媒体:王贝贝 严洁 张文一
    技术:黄天佑 丁德昌
    最终解释权归金腾奖主办方所有