雅集
作品详情
  • Details of the work 标题横线
    头像或者logo
    图片 詹威 云上设计师俱乐部特约推荐
    城市:南京市
    公司: 云行空间建筑设计
    参赛作品: 雅集
    空间类型:公寓(150㎡以下)
    个人/公司简介:
    2018年-至今 云行空间建筑设计 主案设计师 《东篱》 《流动的乐章》 《雅集》 《春棠》 《塑原》 2023金住奖南京十大居住空间设计师 2023芒果奖住宅公寓空间全国百强 2022CIID中国室内设计大奖赛经济型住宅银奖 2022台湾金邸奖 优胜奖 40UNDER40城市榜单 2021居住在中国中国样板间设计大赛 王牌总冠军战队 2021好好住营造家奖 年度最佳中户型金奖、年度最佳材料/工艺运用奖金奖 2021老宅新生设计奖 2021年度优秀住宅空间奖 2021芒果奖 优胜奖 TOP100
    设计说明 | Design Instruction
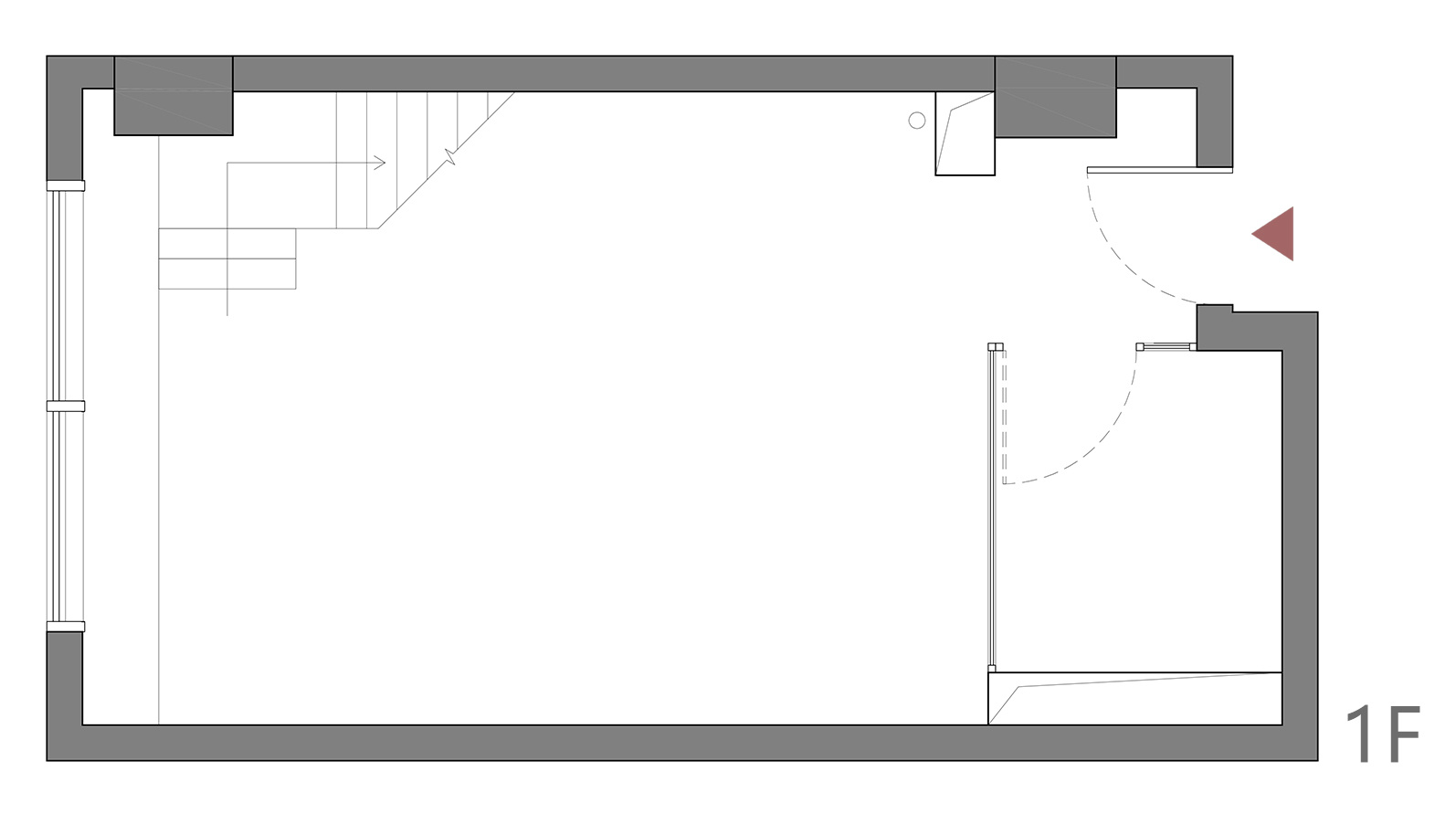
  • 雅集|长江路9号 “一条长江路,半部金陵史” 本案位于南京长江路9号,屋主是一位文化学者。作为屋主的临时居所兼顾“雅集” 的空间属性。空间具有一定的开放性,满足空间基本的一些生活功能即可。例如餐厅,水吧,会客区,休息区等。 1F 入户门厅进入 进门相对狭窄,解决一些基础功能换鞋区以及卫生间,入户地面通过材质区分及灯光的处理制造入户仪式感。 门厅向内到达水吧区以及餐厅,餐厅日常可作为临时的小型聚会区域,为了空间的整体性,我们将电器设备整合在白色的柜体之中,内部有冰箱,酒柜,蒸烤箱等设备,满足屋主正常简餐生活需求。 空间的设计中我们更注重创造互动性,打破封闭感,为聚会提供自然之感。一楼以自然元素为主,模拟户外自然景观,空间自由散布的“竹林”、将自然的石子围绕着室内,使空间的边界感变得更加模糊。为聚会提供一个静谧而有趣的品茶体验,成为雅集文化的一部分。 木质台与坐塌结合,搭配一个屏风,能够创造出一个有趣而实用的形成独特的室内庭院。坐塌提供休息的场所,木质台则为举办小型聚会提供平台,可以自由而坐,保留了魏晋风度的情趣。屏风的设置既能提供一定的隐私空间,又能在需要时调整通风和光线。在屏风下种植一棵大树,为雅集增加一份自然之美,能够更加轻松自在地交流。 沿着楼梯 首踏采用自然荒石,然后过渡至木质地台,黑色楼梯与书架相融。为了扩大空间的张力,我们去掉二楼的部分楼板,形成挑空区域,墙面清水混凝延伸至屋顶,屋顶采用片状设计,竹子作为屋顶的支撑,运用建构的方式,营造出一种轻盈、宁静的氛围。 书架与楼梯结合设计可以创造出独特且实用的空间,考虑在楼梯的侧面或下方嵌入书架,以最大程度地利用空间。既提供了通往二楼的通道,提供了方便拿取书籍的空间,更是空间重要的一个背景,提高整体设计的视觉吸引力。 二楼空间成为一个兼顾休息、娱乐和社交的多功能区域,使雅集成员可以自由选择、灵活运用空间设计了宽敞而舒适的塌塌米区域,以软垫和亲近自然的布料为基础,营造轻松惬意的氛围。创造适合不同聚会形式的环境,使空间更富有包容性。窗户经过特殊设计,采用斜着的屏风作为二次表皮,光线渗透更显柔和,为室内创造舒适的氛围。 兼顾收纳 将衣柜门设计成屏风的样式,在壁龛中摆放字画,相互呼应,通过巧妙的灯光营造打造一个充满东方主义氛围。 项目地址:南京|长江路九号 项目面积:40㎡ 项目设计:詹威 设计公司:云行空间建筑设计
  • 图片
  • 图片
  • 图片
  • 图片
  • 图片
  • 图片
  • 图片
  • 图片
  • 图片
  • 图片
  • 图片
  • 图片
  • 图片
  • 图片
  • 图片
  • 图片
  • 图片
  • 图片
  • 图片
  • 图片
  • 图片
  • 图片
  • 图片
  • 图片
  • 图片
  • 图片
  • 图片
  • 图片
  • 图片
  • 上一个 下一个
    2024第八届金腾奖 私宅(独居)丨私宅(多人居)丨餐饮丨酒店丨办公丨商业丨公共丨公益丨人物丨NEW100 jintengAWARD(小金_金腾奖组委会) 广州市海珠区琶洲大道68号华新中心21楼
    金腾奖视频号 金腾奖小红书号 监制:刘译遥
    统筹:张俊媚
    运营:赖钰炼 曹凯月 刘芳棋 小金
    新媒体:王贝贝 严洁 张文一
    技术:黄天佑 丁德昌
    最终解释权归金腾奖主办方所有