Old London dream
作品详情
  • Details of the work 标题横线
    头像或者logo
    图片 屿合传世空间设计
    城市:长沙
    公司:屿合传世空间设计
    参赛作品: 伦敦旧梦
    空间类型:别墅
    个人/公司简介:
    屿合传世是一家追求空间气质与服务落地的室内全案设计机构,服务于对生活有极致追求的人群,专注在品质大宅设计与造境,屿——是我们服务的一个个家庭小岛群像,合——是境屿和猿厂两大品牌的联袂聚合,我们聚合更优秀的资源,更精细化的成员分工,服务每一个具体的家和居住者,我们关注形色光材、生活方式,收纳系统;还关注未来空间、成长留白、文化传承,希望每一个家经得起时间的洗练,传世——就会变成自然而然的事。
    设计说明 | Design Instruction
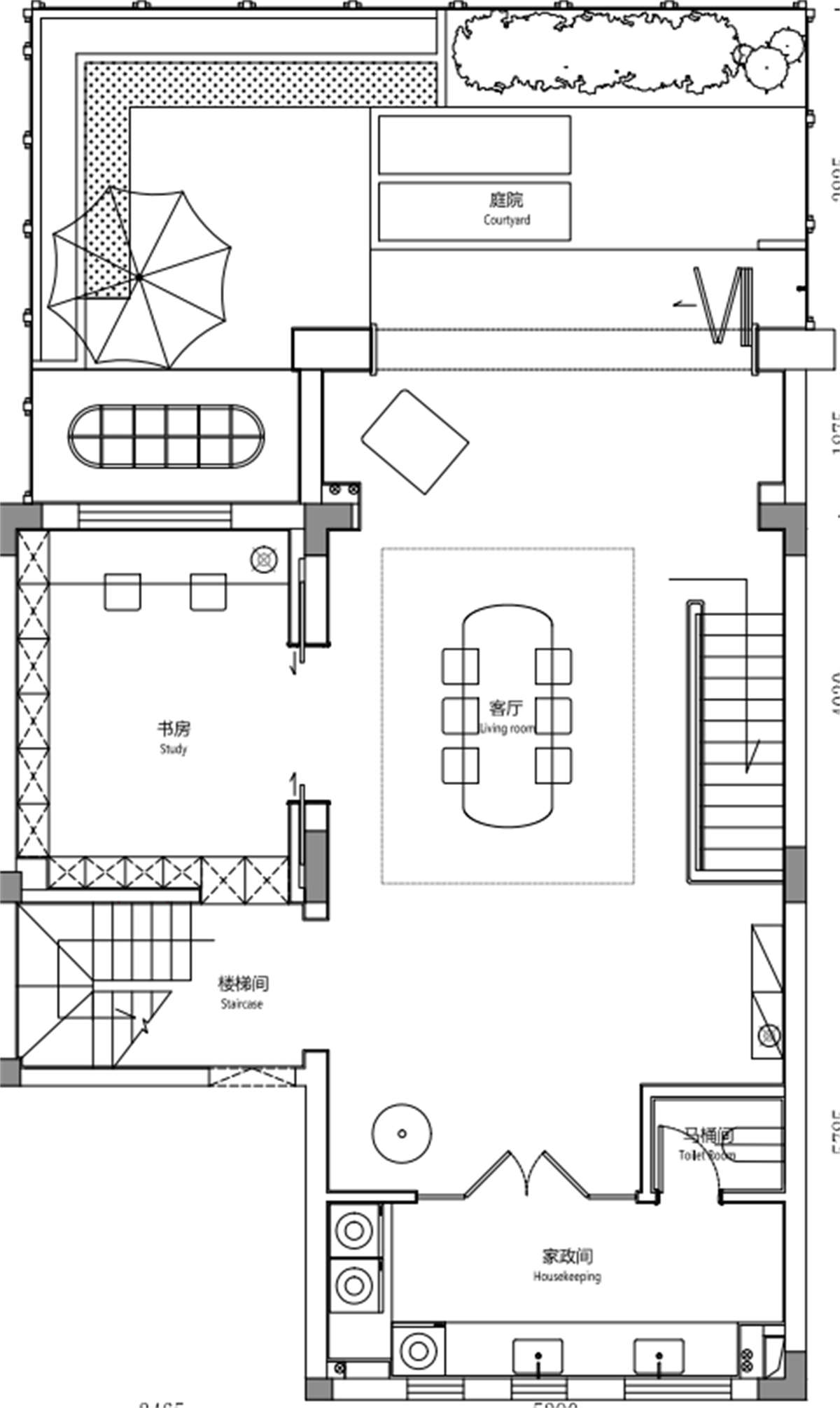
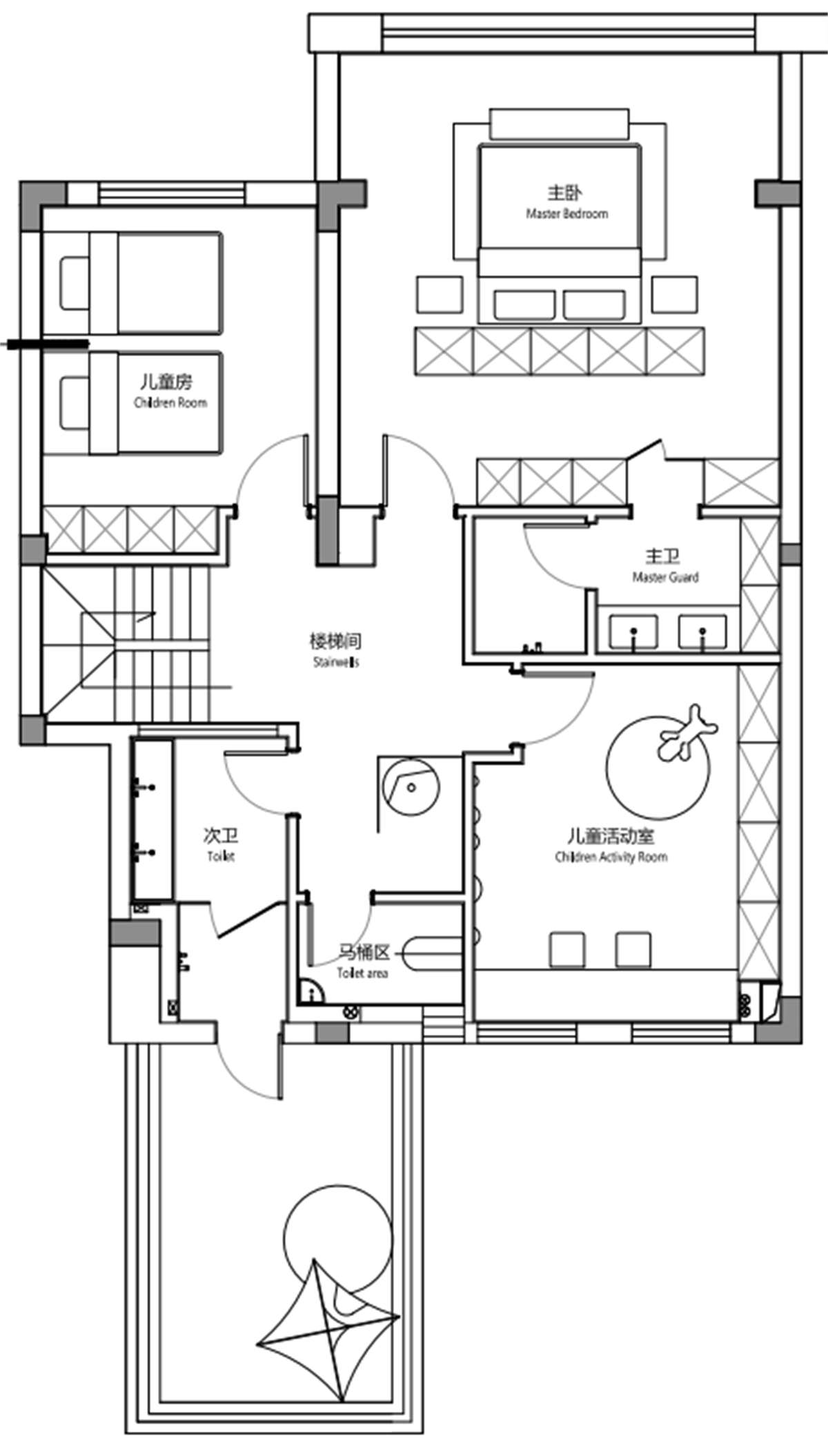
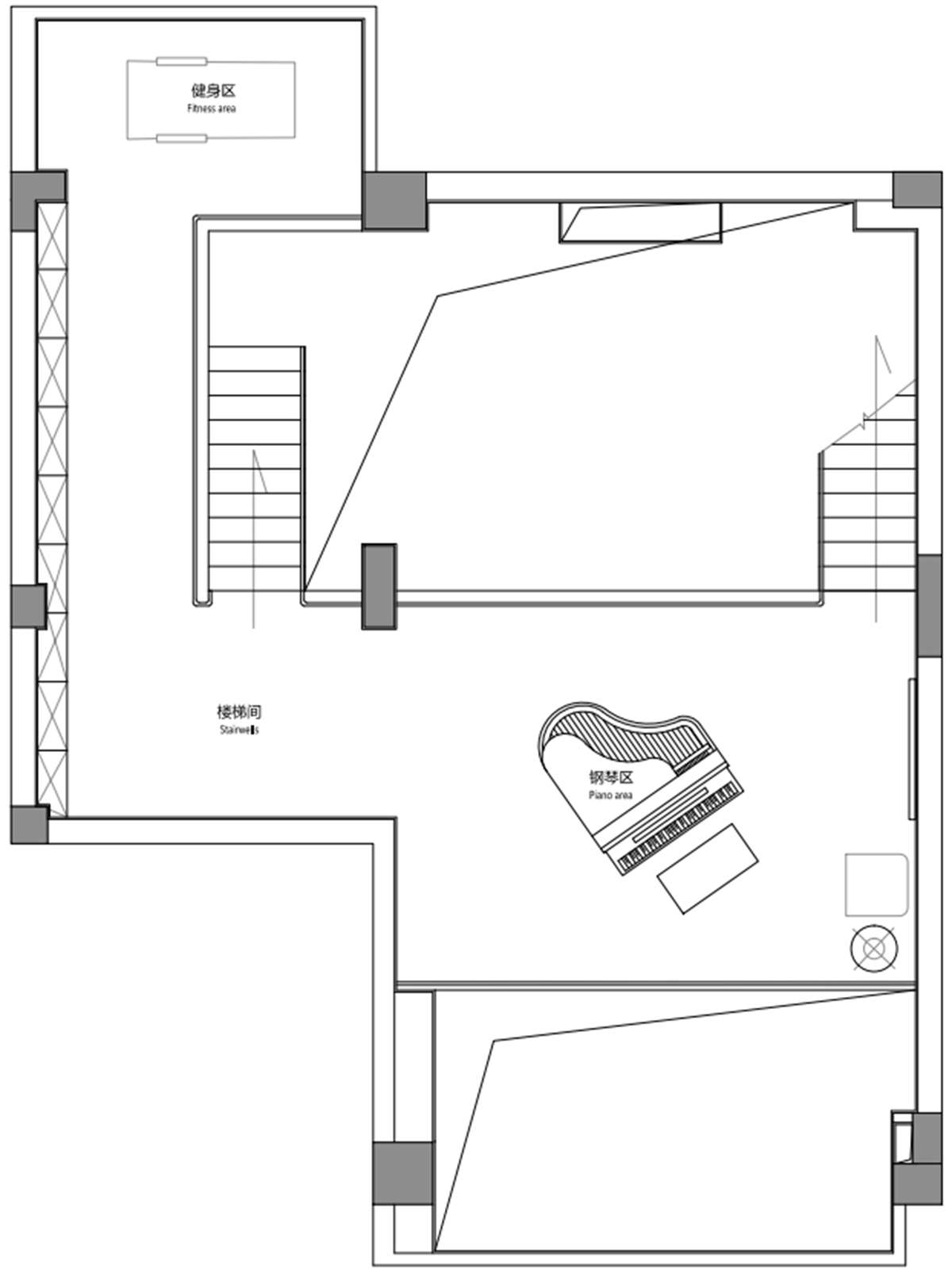
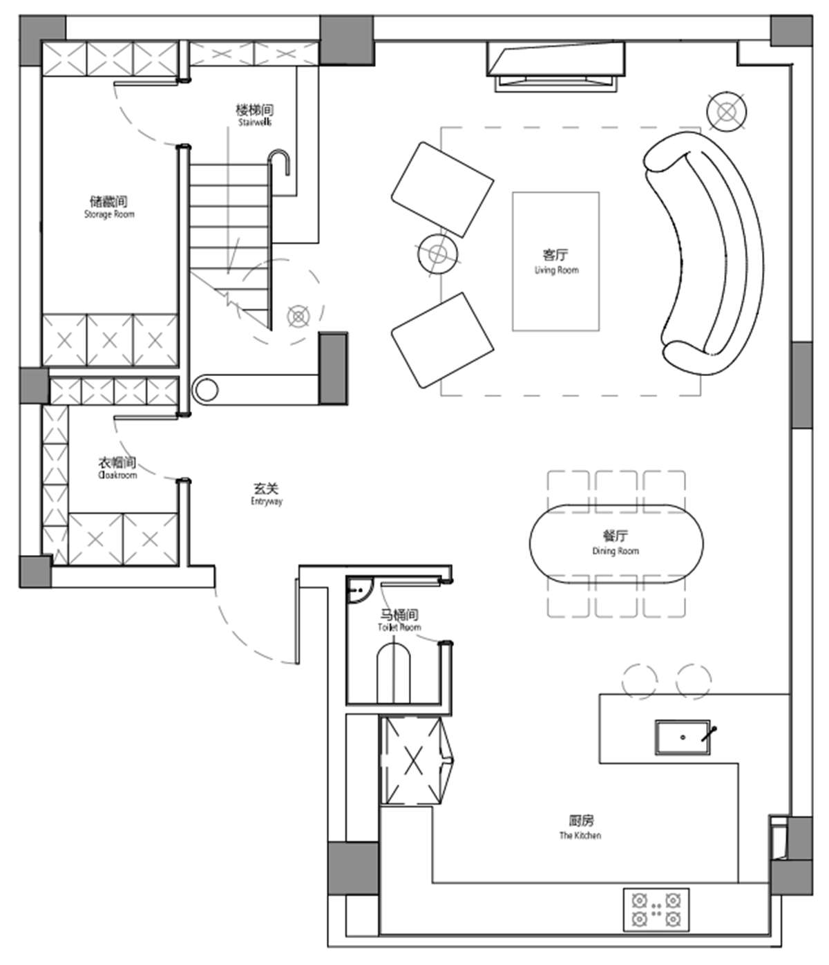
  • 优雅,海派,摩登是我们给这个家的关键词,像个飘洋过海,我们送给屋主的礼物。 本案家庭成员是一家四口。对于这个368㎡的叠墅来说,功能上是肯定不用受拘束的,所以如何让空间更显开阔的同时又能契合屋主社交与生活习惯是此次设计的源点。基于诉求,我们将负层空间打造成为社交主场,而地上空间则是私享空间,空间整体风格是法式中国风,在整体材质上选用了附有造型的硬装,辅之以高品质的材料、软装,打造一个温柔又浪漫的家。
  • 图片
  • 图片
  • 图片
  • 图片
  • 图片
  • 图片
  • 图片
  • 图片
  • 图片
  • 图片
  • 图片
  • 图片
  • 图片
  • 图片
  • 图片
  • 图片
  • 图片
  • 图片
  • 图片
  • 图片
  • 图片
  • 图片
  • 图片
  • 图片
  • 图片
  • 上一个 下一个
    2024第八届金腾奖 私宅(独居)丨私宅(多人居)丨餐饮丨酒店丨办公丨商业丨公共丨公益丨人物丨NEW100 jintengAWARD(小金_金腾奖组委会) 广州市海珠区琶洲大道68号华新中心21楼
    金腾奖视频号 金腾奖小红书号 监制:刘译遥
    统筹:张俊媚
    运营:赖钰炼 曹凯月 刘芳棋 小金
    新媒体:王贝贝 严洁 张文一
    技术:黄天佑 丁德昌
    最终解释权归金腾奖主办方所有