我的新家
作品详情
  • Details of the work 标题横线
    头像或者logo
    图片 宋金亮
    城市:长春
    公司: 独立设计师
    参赛作品: 我的新家
    空间类型:别墅
    个人/公司简介:
    从业十年有余 一直想做出好的作品 还未有成绩 但愿 初心不改
    设计说明 | Design Instruction
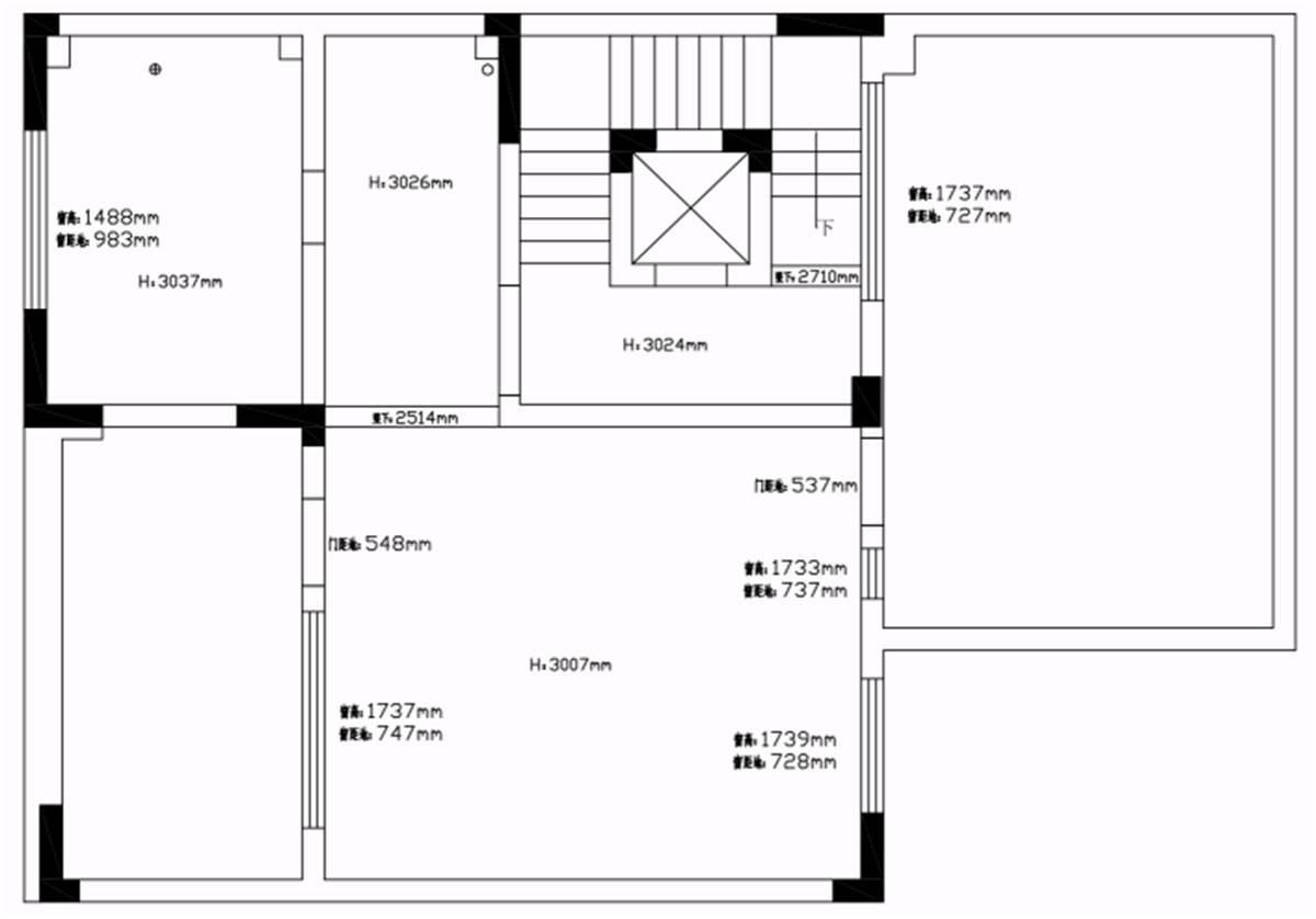
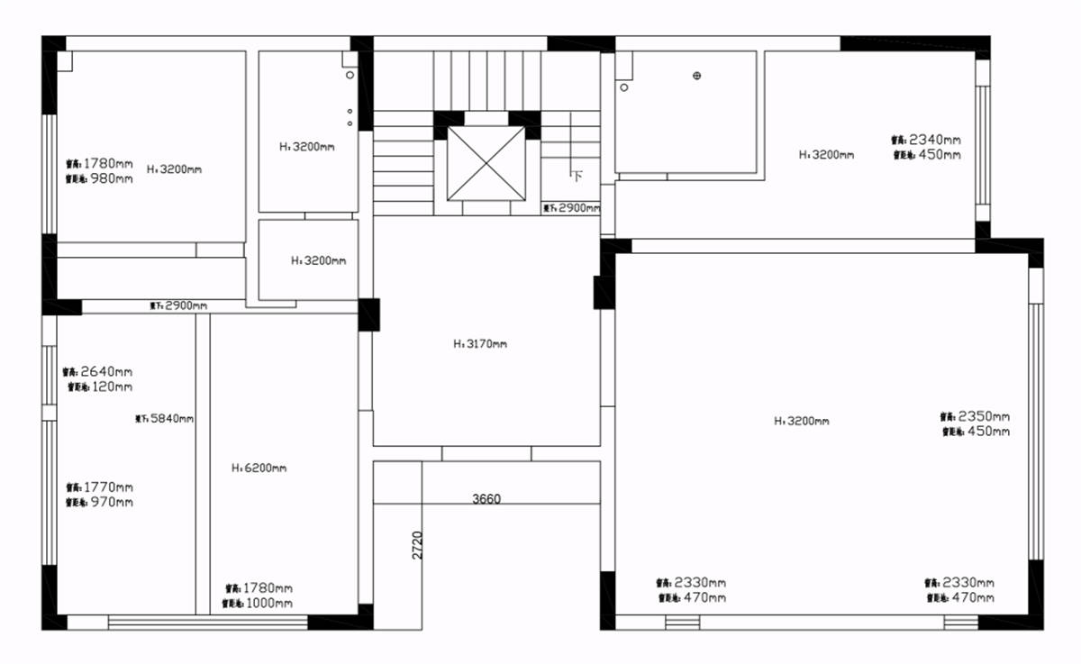
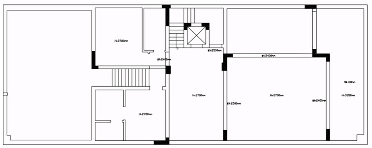
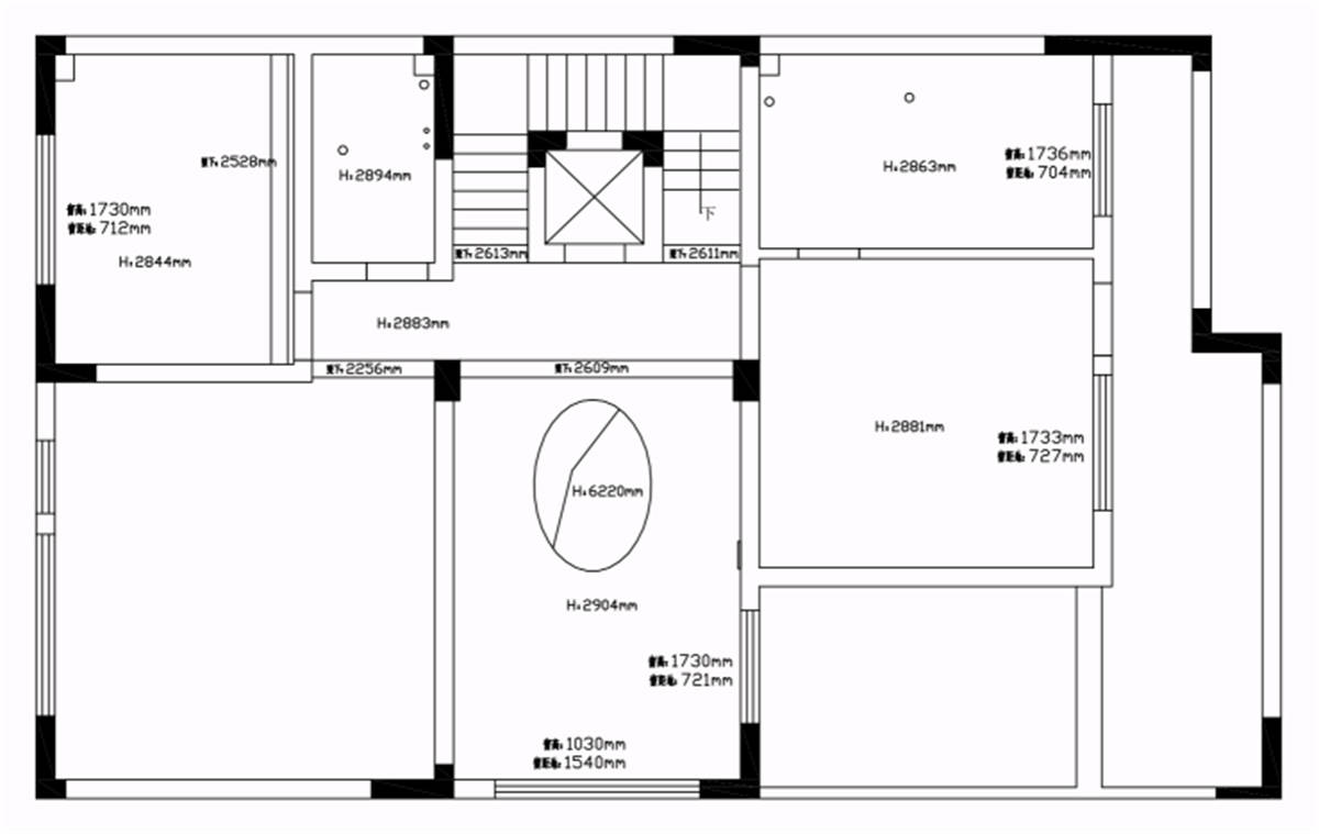
  • (现代日式) 松弛的感觉,回到家中去掉精英的外表 。 老师们好 这是一个连排西边户型,建筑面积约600平方,地下一层 地上三层,90后夫妻带着两个男宝宝和母亲居住。 负一层:基本上是留给了多功能区 设备间 洗衣间 公共卫生间 健身区 观影区 在阳光房下方做了佛堂。 一层:餐厨区 客厅 书房 公共卫生间 门厅。 二层:共三间卧室 分别 南侧 卧室套间卫生间 北侧则是两个卧室和一个公共卫生间。 三层:主卧套房 卫生间 衣帽间。 整个案子改动不是很大 主要优化了一层空间 餐厅与客厅的关系, 负一层健身区和多功能观影区,二层把原有北侧的挑空封上了 增加出一个房间来,但在一楼门厅的正上方依然做出了一个大概8平米的小挑空,让进户大门有所改变,三层则是改动很小 把主卧和衣帽间卫生间做了串联。
  • 图片
  • 图片
  • 图片
  • 图片
  • 图片
  • 图片
  • 图片
  • 图片
  • 图片
  • 图片
  • 图片
  • 图片
  • 图片
  • 图片
  • 图片
  • 图片
  • 图片
  • 图片
  • 图片
  • 图片
  • 图片
  • 图片
  • 上一个 下一个
    2024第八届金腾奖 私宅(独居)丨私宅(多人居)丨餐饮丨酒店丨办公丨商业丨公共丨公益丨人物丨NEW100 jintengAWARD(小金_金腾奖组委会) 广州市海珠区琶洲大道68号华新中心21楼
    金腾奖视频号 金腾奖小红书号 监制:刘译遥
    统筹:张俊媚
    运营:赖钰炼 曹凯月 刘芳棋 小金
    新媒体:王贝贝 严洁 张文一
    技术:黄天佑 丁德昌
    最终解释权归金腾奖主办方所有