Burst into bloom
作品详情
  • Details of the work 标题横线
    头像或者logo
    图片 高仲元
    城市:厦门
    公司: 一兀设计公司
    参赛作品: 绽放
    空间类型:别墅
    个人/公司简介:
    高仲元 一兀设计公司创始人|设计总监 国家注册设计师、高级室内建筑设计师、中国室内装饰协会会员、厦门室内设计师协会秘书长。 所获荣誉: -金腾奖 2019年度最佳办公空间金奖 -PDC(亚太室内设计精英邀请赛)大奖 -CIID(中国室内设计)大奖赛铜奖 -40 UNDER 40中国(福建)设计杰出青年 -金堂奖 年度优秀住宅 -国际艾特奖入围奖 -红棉中国设计奖 -IF I中国室内设计大赛 双优奖 -祝融照明全国大赛 -中国国际空间设计大赛 设计理念:设计不仅仅是为了实现视觉效果,更是创造一种艺术形式的体验与共创。为客户的需求和愿望而设计,为用户带来超越物质的人文享受。空间的设计,可以激发思想,表达灵魂。为创造有温度、有品质的生活空间而努力。
    设计说明 | Design Instruction
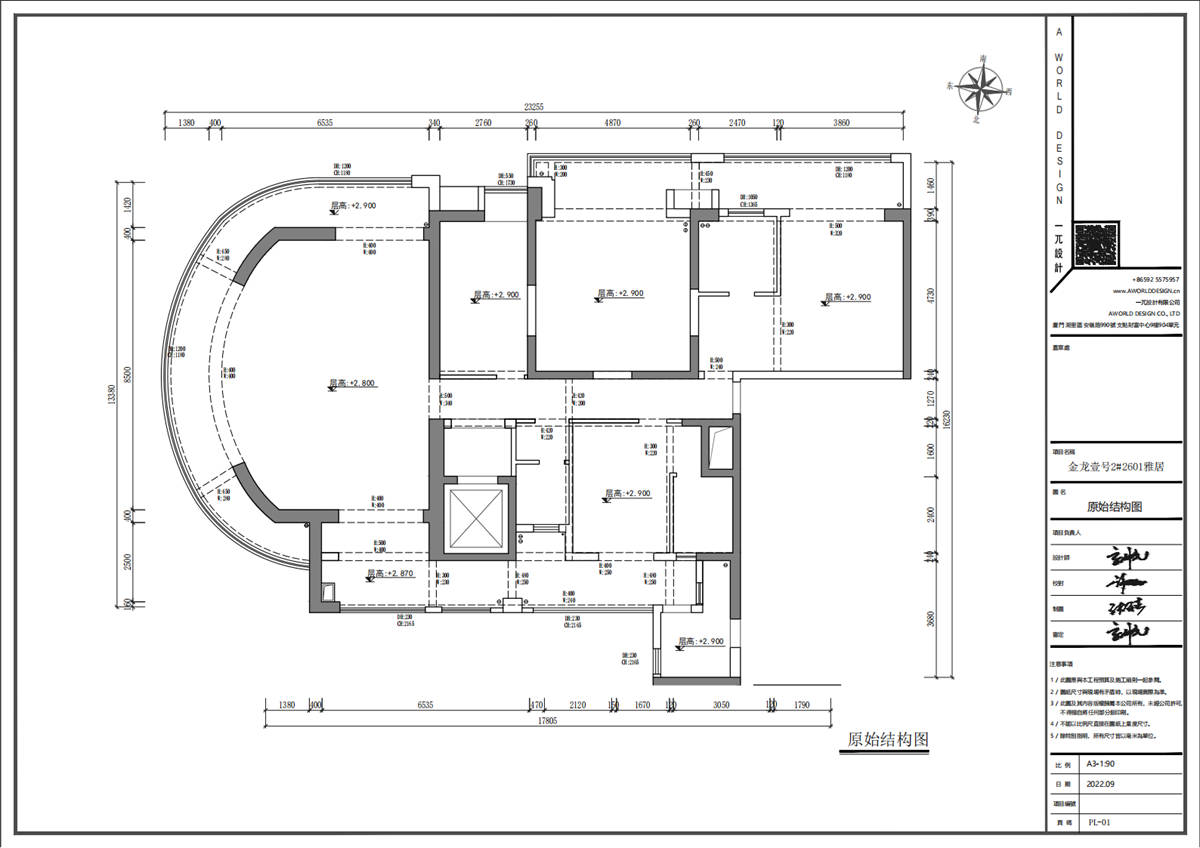
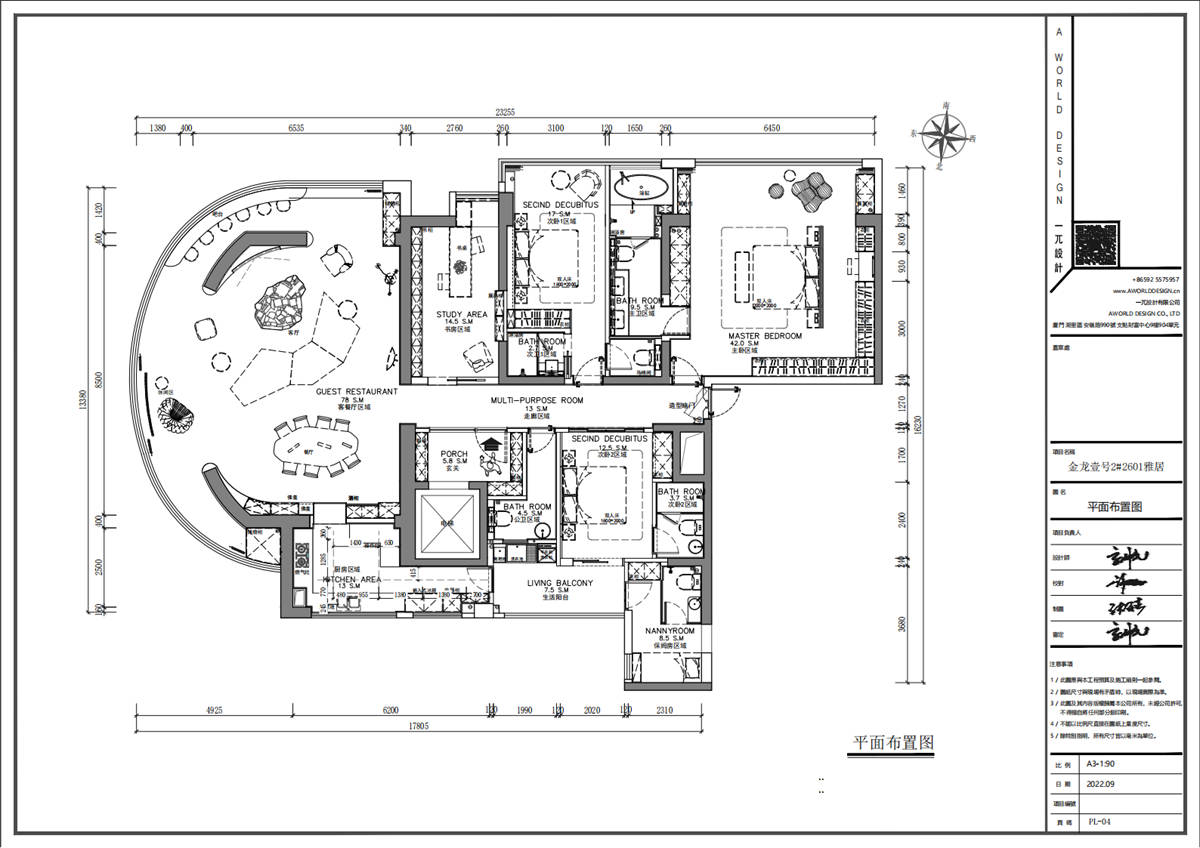
  • 绽放 在艺术的疆界,启动心灵的喜悦细胞,激活空间的善与美,从而带给居住者饱满的精神价值。这也是我们赋予业主的设计的意义。 时尚张扬与安静克制并存的艺术基调,将人物行为动线作为创作蓝图,为90后一家营造出心悦且安定的精神归宿。与业主合作的最大意义,就是看到他们眼里闪光的那一刻,因为这一刻我们为他们创造了惊喜! 客厅 应风水先生的要求,窗边需要做一个屏风。那么,如何结合设计,既保留落地窗的完整性,还能完整展示出屏风的造型,同时又可兼具屏风的功能性?最终设计师突发其想地将室内空间元素与室外的动态景观进行微妙融合,便有了如今的点睛之笔。 线条回旋、穿越,在动与静的态势中有了默契的秩序。以美为伍,共同构建一场关于身体与心灵完美融合的旅程。 餐厅 清新的绿色灵动其间,与经典的黑白灰碰撞出春日序曲,这份独特之美赋予空间热烈且稳重的自然调性。汲取具有美学能量的时刻,与丰盛的内在世界相联,便是极具生命力的当下。 过道 顶上的两根横梁,我们选择将空间弱势进行重塑,保证了过道层高,同时将金属的艺术质感与空间的整体美学进行统一与融合。冷峻的不锈钢过道墙面,与周围环境光反射交融。在看似冷酷的外表下,有着温暖纯粹的内在世界。 主卧 我们以最节省空间的方式让主卧显得更加开阔,床头背景墙与床周边形成一个环绕动线,背景墙后是一间精致的衣帽间,床对面是大片隐藏式的收纳柜。女主与设计师说:“没有一个人看到这个主卧不夸的。”这份轻松喜悦诠释了责任背后的肯定。 保留了大片城市画幅,与日月星辰共语,在云卷云舒时,当下便是与自在共处的静谧绽放。 设计满足了需求,在宽广的世界浇灌出永恒的心花怒放。带领团队秉承“为人们创造有温度、有品质的生活美学空间而努力”成为前行路上的使命!
  • 图片
  • 图片
  • 图片
  • 图片
  • 图片
  • 图片
  • 图片
  • 图片
  • 图片
  • 图片
  • 图片
  • 图片
  • 图片
  • 图片
  • 图片
  • 图片
  • 图片
  • 图片
  • 图片
  • 图片
  • 图片
  • 图片
  • 图片
  • 图片
  • 图片
  • 上一个 下一个
    2024第八届金腾奖 私宅(独居)丨私宅(多人居)丨餐饮丨酒店丨办公丨商业丨公共丨公益丨人物丨NEW100 jintengAWARD(小金_金腾奖组委会) 广州市海珠区琶洲大道68号华新中心21楼
    金腾奖视频号 金腾奖小红书号 监制:刘译遥
    统筹:张俊媚
    运营:赖钰炼 曹凯月 刘芳棋 小金
    新媒体:王贝贝 严洁 张文一
    技术:黄天佑 丁德昌
    最终解释权归金腾奖主办方所有