It burns with brilliance
作品详情
  • Details of the work 标题横线
    头像或者logo
    图片 陈涛
    城市:宜宾
    公司: 宜宾无境装饰设计有限责任公司
    参赛作品: 灼灼其华
    空间类型:别墅
    个人/公司简介:
    以缔造完美空间,开启生活无境之美为设计理念。 获得奖项: 2017中国建筑设计博览会十佳设计师 2022十间坊西南地区晋级设计师 2023中国四川40&40获奖设计师 2023中国金奖奖年度入围设计师
    设计说明 | Design Instruction
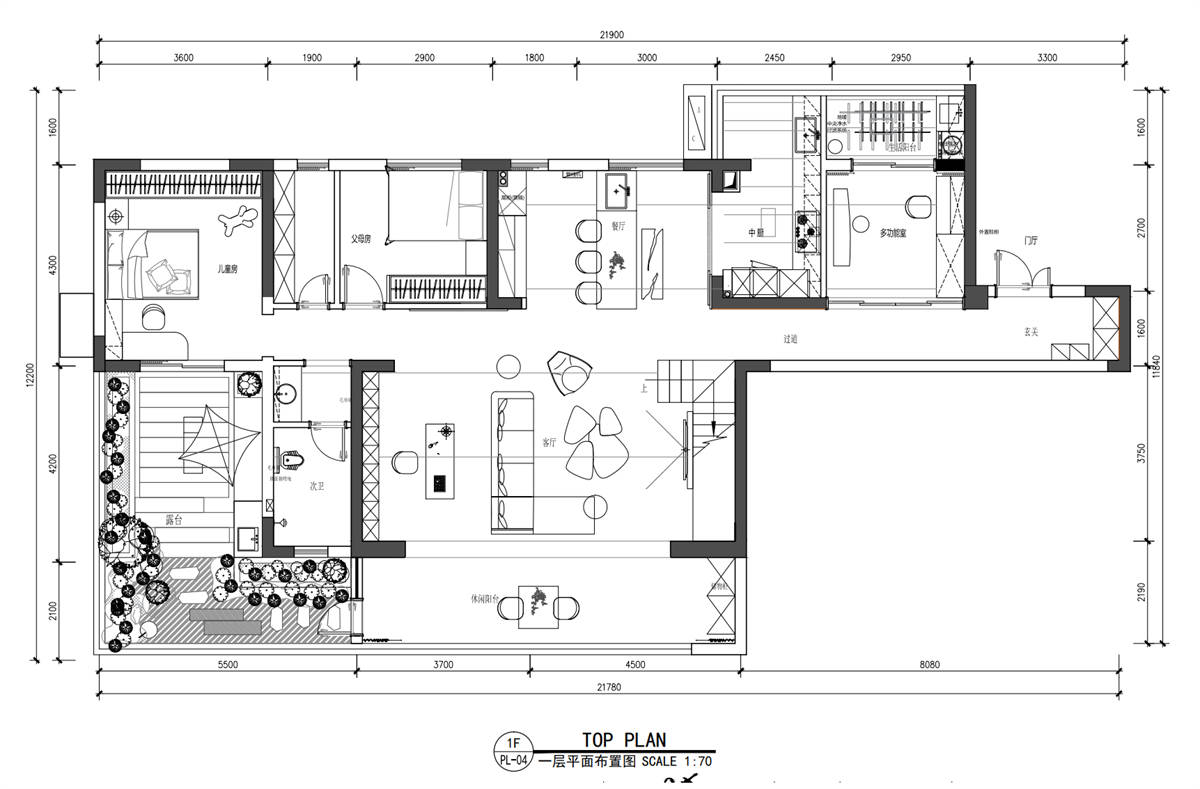
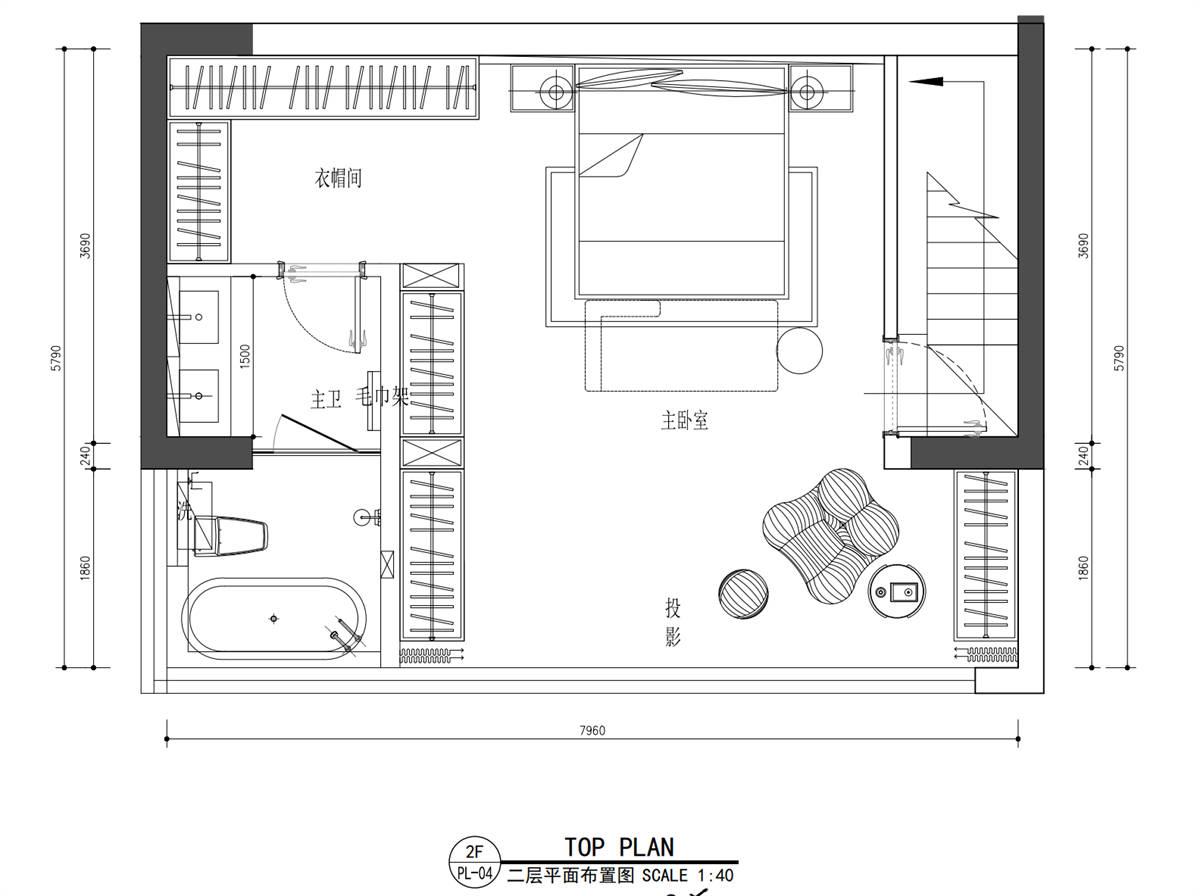
  • 【序】 以儒雅古拙的意境为基调,将古今概念巧妙糅合,并注入现代化的风格元素。深入挖掘住户对家居环境的需求,将室内设计与个性化要求相融,让整个住宅既充满诗意却又不乏现代生活的舒适感。 【客厅】 客厅整体色调沉稳而纯净,不仅在视觉上拓宽了空间,更增添了一种自然延伸的舒适感。以木色元素为点缀,展现出客厅温润的特质,在白色梦幻帘的掩映与衬托下,整个空间流露出一种淳朴而高雅的气质。 将阳台以地台的形式纳入客厅,延伸了空间,利用高度变化为整个房间制造错落有致的层次感,既注重美观,又考虑到实用功能,提升了居住者的生活幸福感。 客厅本就是比较宽阔的一片空间,经过精心的规划,以皮质沙发为界,巧妙地划分出两个区域,一侧作为观影和聊天的场所,另一侧则打造成古筝的天地,女主人在日光下抚琴击节,悠扬婉转,余音绕梁,声声入耳,琴瑟和鸣。 【餐厅】 餐厅增设了西厨与岛台餐桌,现代风格的金属灯具倒映在黑色石材的桌面上,营造出光怪陆离的美丽图景。岛台设计一方面满足了现代家庭生活的饮食需求,另一方面也丰富了生活乐趣,增添了一份仪式感。 与餐厅紧紧相连的厨房用玻璃推拉门做隔断,成排的柜子不仅扩充了储物空间,更让厨房显得整洁有序,不经意间展现出主人简约而高雅的审美品位。 【楼梯间】 楼梯间选用了白色石材铺设梯步,佐以玻璃扶手,借用灯光的照射,营造出干净通透的氛围感。同时,借用楼梯下方空间,做隐藏式储物收纳柜,满足主人的收纳需求,使整体的布局更加合理。 【儿童房】 儿童房别出心裁,在置物架采用了明亮的橘色,小木屋形状的造型增添了童心童趣,空间展现出独有的纯真烂漫,让孩子们感受到生命的活力。 【主卧】 二楼主卧打造成一个独立的套房,布局了休闲区、衣帽间、盥洗区和卫生间等多个功能区域。床头吊灯与台灯对称搭配,营造温馨的情调。房间临窗的角落放置休闲躺椅,更为主人休憩静坐留一方天地。 在主卧对床临窗的位置,安装投影幕布,满足晚上的观影需求,增添浪漫氛围,让主人能够在闲暇之时体悟生活之美。 主卫在临窗放置浴缸,以极简的风格搭配柔和的灯光,营造出放松的氛围,让主人能在舒适的空间卸下一身疲惫,沉浸于自己独享的世界。 【花园】 室外花园主人以种花植木寄托情怀,咏叹年华。绿植点缀着空间,也点缀着生活,让能量流转,让自然气息缓缓散发,一花一世界,一木一乾坤。
  • 图片
  • 图片
  • 图片
  • 图片
  • 图片
  • 图片
  • 图片
  • 图片
  • 图片
  • 图片
  • 图片
  • 图片
  • 图片
  • 图片
  • 图片
  • 图片
  • 图片
  • 图片
  • 图片
  • 图片
  • 图片
  • 图片
  • 图片
  • 图片
  • 图片
  • 图片
  • 图片
  • 图片
  • 图片
  • 图片
  • 图片
  • 图片
  • 图片
  • 图片
  • 上一个 下一个
    2024第八届金腾奖 私宅(独居)丨私宅(多人居)丨餐饮丨酒店丨办公丨商业丨公共丨公益丨人物丨NEW100 jintengAWARD(小金_金腾奖组委会) 广州市海珠区琶洲大道68号华新中心21楼
    金腾奖视频号 金腾奖小红书号 监制:刘译遥
    统筹:张俊媚
    运营:赖钰炼 曹凯月 刘芳棋 小金
    新媒体:王贝贝 严洁 张文一
    技术:黄天佑 丁德昌
    最终解释权归金腾奖主办方所有