Overseas Chinese Town
作品详情
  • Details of the work 标题横线
    头像或者logo
    图片 廖凤鸣
    城市:宜宾
    公司: 宜宾隐逸装饰工程有限公司
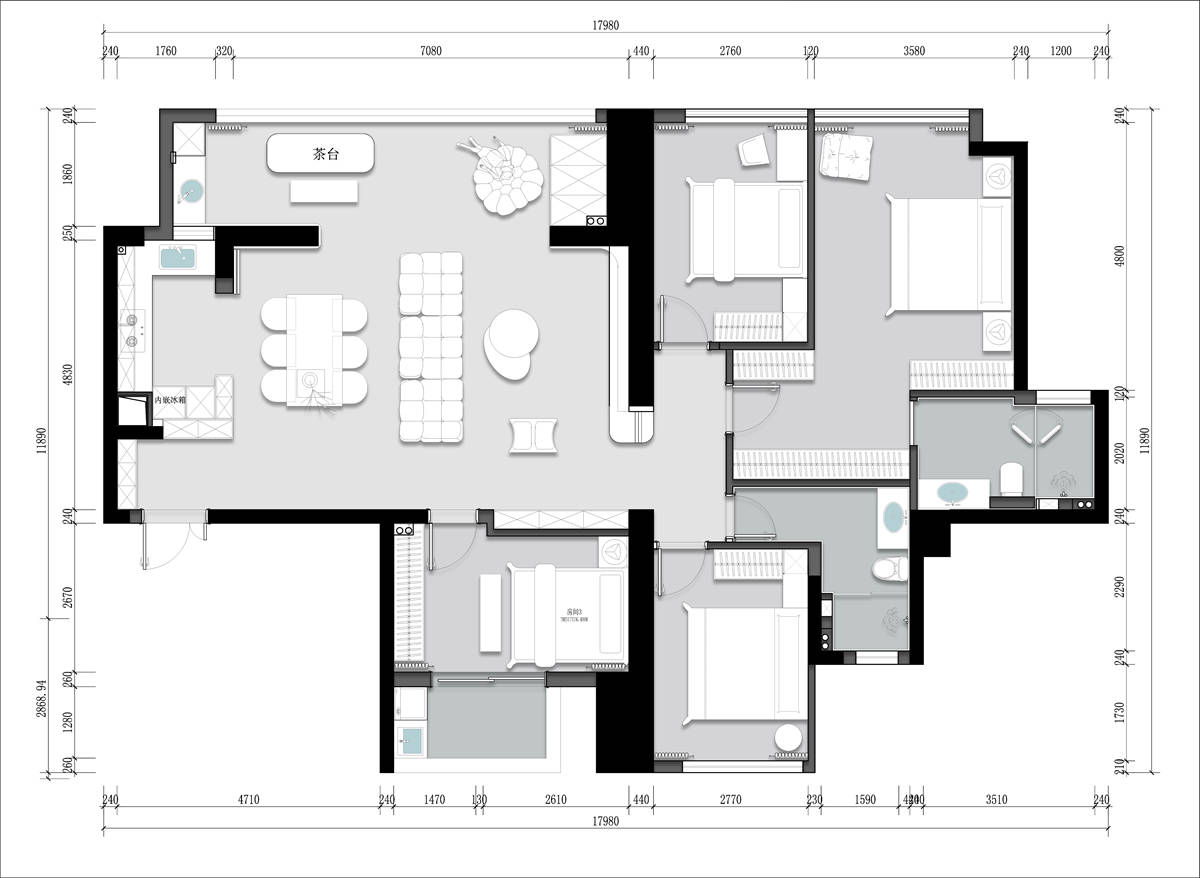
    参赛作品: 华侨城
    空间类型:别墅
    个人/公司简介:
    设计理念:将设计融于人性,将家居带入悠闲自在的境界 从事室内设计行业多年,有着丰富的设计经验,精通色彩心理学、空间规划、材料选择及施工流程等各个环节,能够确保设计方案的科学性、实用性和可实施性。紧跟设计潮流,不断学习最新的设计理念和技术手段 从业经历: 2002——2006宜宾学院环境与艺术设计 2006——2007宜宾九鼎装饰设计师 2008——2016宜宾腾翔装饰设计师 2016——2020本末设计合伙人 2020——至今隐逸设计合伙人
    设计说明 | Design Instruction
  • 该作品以“简约、纯净、冷静、高雅”为设计理念,力求将极简主义与现代风格完美融合,为居住者打造一个简约而不失格调,冷静而不失温度的生活空间。 在空间布局上,注重空间的通透感和流动性,通过合理的空间划分和流线设计,使空间显得宽敞而舒适。同时,利用简洁的线条和几何形状,强调空间感和层次感,打造出简约而时尚的室内氛围。在色彩选择上,以中性色为主调,如灰、白、黑等,营造出一种冷静、高雅的氛围在材质的选择上,大量运用了现代感强烈的材质,如玻璃、石材等,以展现现代极简的精致与性冷淡风格的冷静。 现代简约风格与个性化需求完美结合。通过巧妙的空间布局、色彩搭配和家具陈设,打造出一个既符合现代申美又充满个性的居佳空间。同时,注重细节的处理和品质的把控,使得整个空间呈现出一种精致而优雅的美感。该项目是对现代简约风格家居设计的一次深入探索和实践,也是对居住者需求和审美的一次精准把握。
  • 图片
  • 图片
  • 图片
  • 图片
  • 图片
  • 图片
  • 图片
  • 图片
  • 图片
  • 图片
  • 图片
  • 图片
  • 图片
  • 图片
  • 图片
  • 图片
  • 图片
  • 图片
  • 图片
  • 上一个 下一个
    2024第八届金腾奖 私宅(独居)丨私宅(多人居)丨餐饮丨酒店丨办公丨商业丨公共丨公益丨人物丨NEW100 jintengAWARD(小金_金腾奖组委会) 广州市海珠区琶洲大道68号华新中心21楼
    金腾奖视频号 金腾奖小红书号 监制:刘译遥
    统筹:张俊媚
    运营:赖钰炼 曹凯月 刘芳棋 小金
    新媒体:王贝贝 严洁 张文一
    技术:黄天佑 丁德昌
    最终解释权归金腾奖主办方所有