Shanghai Binjiang Art Private Residence, Empowering the Past with a Future
作品详情
  • Details of the work 标题横线
    头像或者logo
    图片 岩肆拾陆号建筑装饰设计(厦门)有限公司
    城市:厦门
    公司:岩肆拾陆号建筑装饰设计(厦门)有限公司
    参赛作品: 上海滨江艺术私邸 , 让过去拥有未来
    空间类型:别墅
    个人/公司简介:
    岩肆拾陆号建筑装饰设计(厦门)有限公司成立于2018年,是一家专注于实景全案设计落地为一体的设计公司。设计范围涵盖、建筑、景观、会所、办公、住宅等空间,设计以人为本,尊重自然,根据每个空间的属性及需求,创作出符合空间语境、空间美学、空间温度、空间情感等以满足每个客户内心深处的诉求……
    设计说明 | Design Instruction
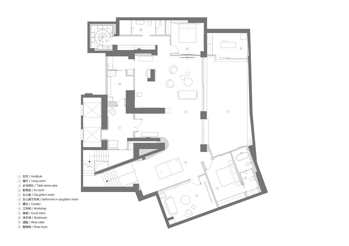
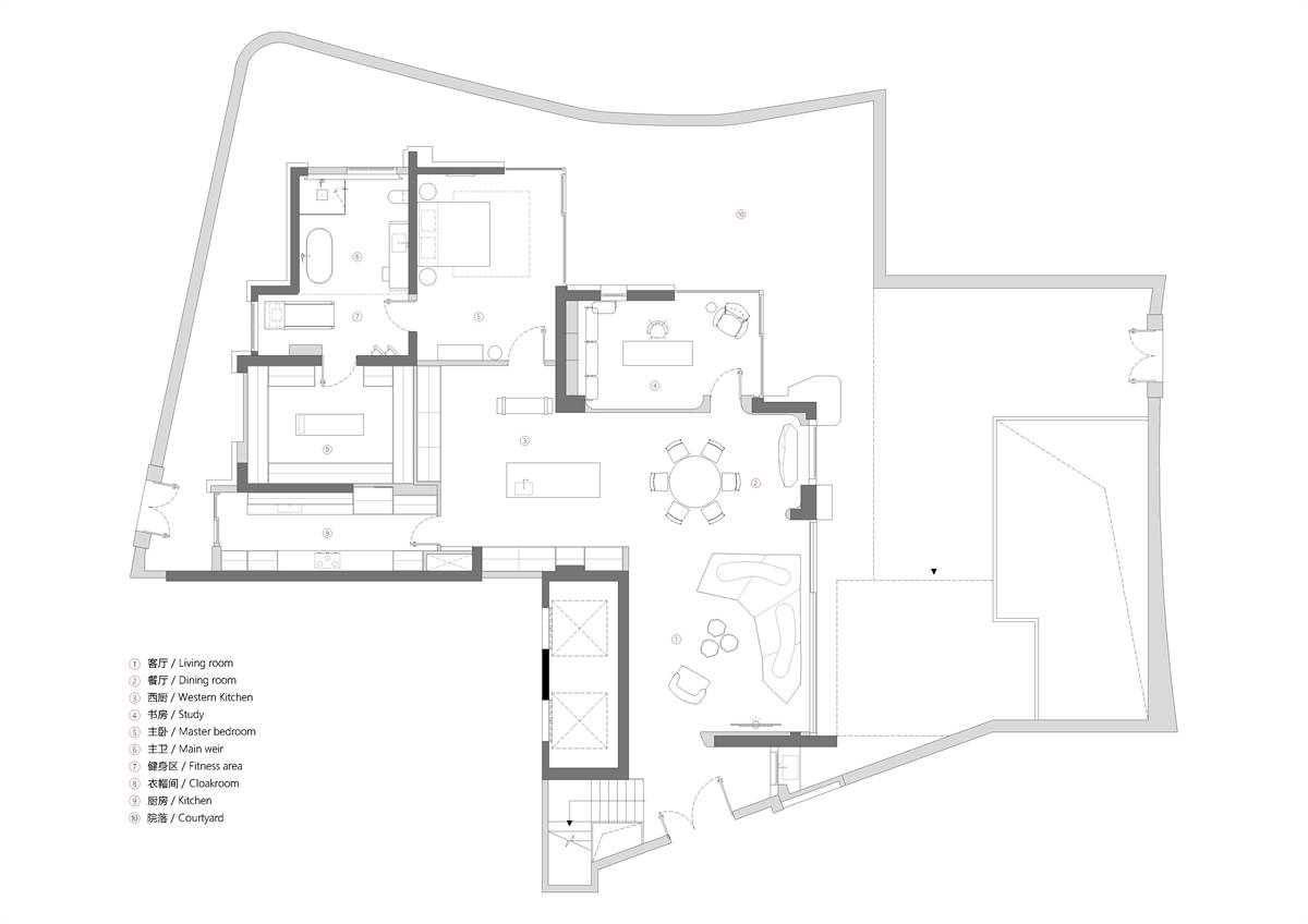
  • 上海滨江艺术私邸 · 让过去拥有未来 本案地理位置有着这座城市罕见的空旷感。 途经会客区,餐厅,西厨等区域,不同的空间节奏,光线的高度错落,时而开阔,时而隐蔽。视线焦点在“画”中游弋,移步换景。设计师为主人们量身打造了流畅,开放,艺术性住宅,且所被珍视的艺术作品们得以妥善安置。 来自闫平|《在那高山顶上》也是屋子主人钟爱的藏品之一,被悬挂在餐桌对面空间的墙壁之上,用餐间隙一抬头便可瞥见。 艺术史学家巫鸿老师曾在《“空间”的美术史》中阐述了空间与总体艺术的概念:“总体艺术”是一种汇集了多种艺术形式的总体展示方式。而此时的空间,无形中拥有了物质空间,知觉空间,经验空间这三个层次。屋子主人的收藏以70.80后当代中国艺术家的作品为主,延伸到油画和雕塑等不同媒介,笔笔都是天意,艺术成为生活的一部分,体会艺术生活的滋养。 产品自身就具备了美学和艺术价值。富含了前瞻性人文思考在内的空间,总是让人找不到最为妥当的文字去表达内心的尊敬。 近至细节,迂回的墙面散布着大尺幅门作,彷佛一间美术馆的开启,细敲之后发现,每一处的门竟然都拥有各自的特色,开启各自不同的体验。 一道随时可以被打开的门,藏着百年后手艺人的“匠心”,是技术与创意的交融。创意永远存在,没有想法,没有边界。裸露的清水混凝土彰显着原始的气息,浑然一体又有着自己的纹理和规律,脱膜般丝滑的墙面触感,以本真的姿态,诉说着纯粹与坚韧。 全透明的乒乓球桌极简线条是未来的轮廓,为家增添了一抹前卫与时尚的气息。 “一切意识皆是时间的起源”看似随意的书架摆放了精心淘来的各类时期的书籍,极具造型感的装饰柜却带有葡萄牙风情。甚至不知道是哪个年代的藤椅,一些老的茶具,器皿抑或是业主心中的艺术品.....“不同历史,不同地域,不同文化的东西布置在一起,相互之间有了视觉冲击,又有文化上的互补。最终成就了主人的心灵场所。 一层巨大的落地推拉门给了环境极致的慷慨。有些情景之所以迷人,是因为总能能唤醒人们的感官。旋转楼梯链接上下两层,以流动的线条缓和该区域的本体的刚硬,低调暗沉的环境光此时成了释放感知的灵光。成品渐渐显现之前,或许从未想象过此处是一个酒窖。理性的手法与浪漫的意式美学充分对话,让看似沉默的建筑空间拥有了自己的灵魂栖息地。 人生寂静处,回归本我。在这里,可以见证不同的时代切片,从十六世纪的布局到当代设计的融入,古老风格被尊重传承,新的设计风格又被创造和前瞻。
  • 图片
  • 图片
  • 图片
  • 图片
  • 图片
  • 图片
  • 图片
  • 图片
  • 图片
  • 图片
  • 图片
  • 图片
  • 图片
  • 图片
  • 图片
  • 图片
  • 图片
  • 图片
  • 图片
  • 图片
  • 图片
  • 图片
  • 图片
  • 图片
  • 图片
  • 图片
  • 图片
  • 图片
  • 图片
  • 图片
  • 图片
  • 图片
  • 图片
  • 图片
  • 图片
  • 图片
  • 图片
  • 图片
  • 图片
  • 图片
  • 上一个 下一个
    2024第八届金腾奖 私宅(独居)丨私宅(多人居)丨餐饮丨酒店丨办公丨商业丨公共丨公益丨人物丨NEW100 jintengAWARD(小金_金腾奖组委会) 广州市海珠区琶洲大道68号华新中心21楼
    金腾奖视频号 金腾奖小红书号 监制:刘译遥
    统筹:张俊媚
    运营:赖钰炼 曹凯月 刘芳棋 小金
    新媒体:王贝贝 严洁 张文一
    技术:黄天佑 丁德昌
    最终解释权归金腾奖主办方所有