Miyama
作品详情
  • Details of the work 标题横线
    头像或者logo
    图片 陈涛
    城市:宜宾
    公司: 宜宾无境装饰设计有限责任公司
    参赛作品: 见山
    空间类型:别墅
    个人/公司简介:
    以缔造完美空间,开启生活无境之美为设计理念。 获得奖项: 2017中国建筑设计博览会十佳设计师 2022十间坊西南地区晋级设计师 2023中国四川40&40获奖设计师 2023中国金奖奖年度入围设计师
    设计说明 | Design Instruction
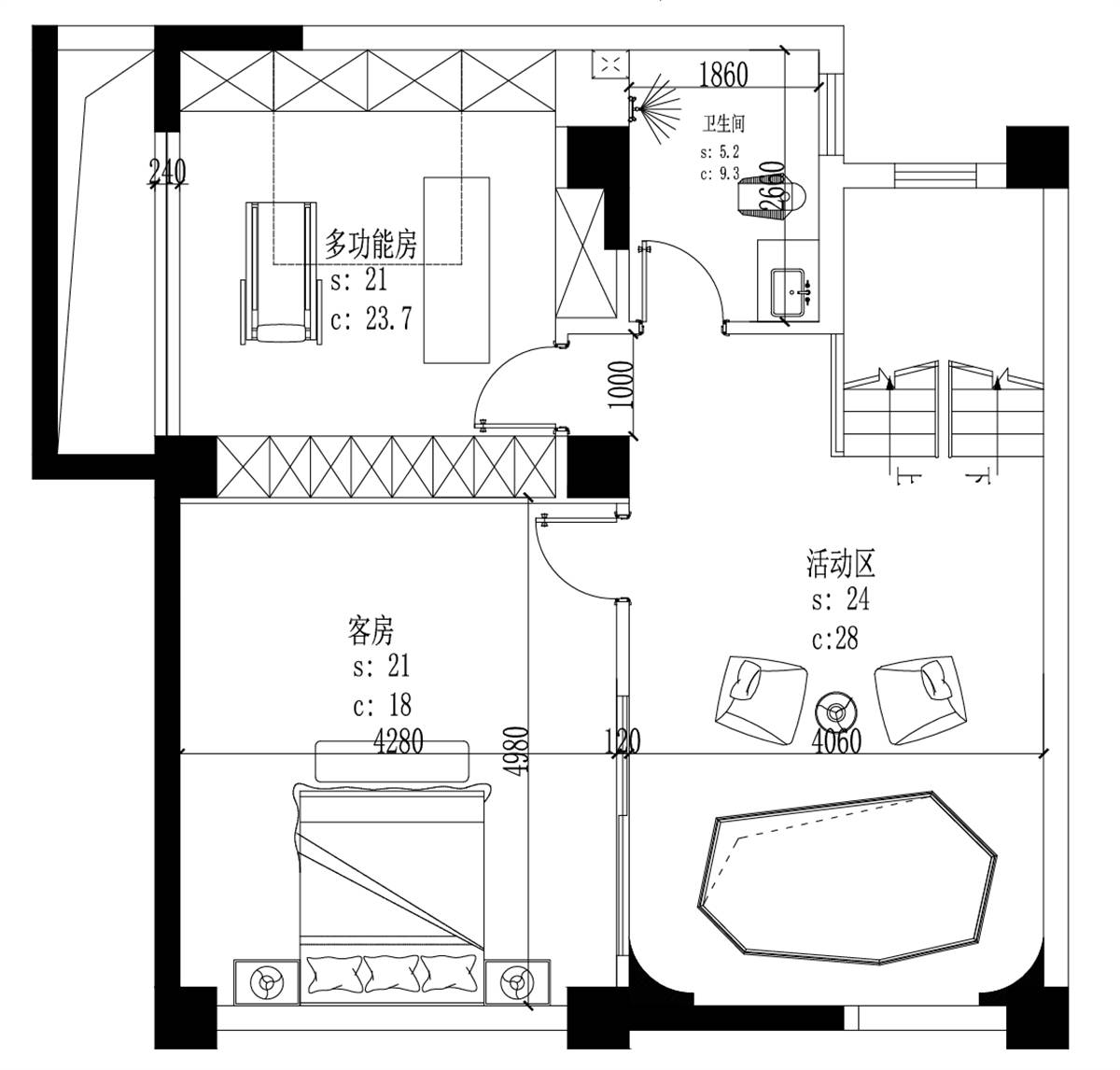
  • 青山为引,绿水作韵,在山形山影的虚实对比之间,将东方意趣与现代材料结合演绎,诠释出中式美学的雅致韵味。 【一楼入户】 玄关以狭长的廊道作为入户的情绪转换,在日光的照耀下,庭院的景象被倒映于天花之上,建筑与环境的平衡,让居者在静谧空间与山水对话,打造出落于自然的避世之所。 【一楼客厅】 提取内敛、静谧的东方美感,成为浸透场域的基调,用现代的设计手法和材料,成就形式与功能在当下最为恰当的设计语言。客厅以材质强调格调表达,岩板茶几的自然纹理,沉淀着漫长岁月的变迁,结合弧形穹顶,空间如自然沉积的岩石,划分出细腻丰富的维度。 【一楼书房】 开放的空间界面,呈现出与不同场景的呼应和共振,光影流动、内敛淳然,尽显大美至简的东方风华之境。中式书房贵在情韵之中,在禅意美学的主基调下,遵循原有结构,利用咬合与穿插的设计手法,赋予雅致空间先锋质感。 【一楼餐厅】 餐厅与客厅相连,创造出开阔的空间视野,顶面体块的分隔,界定了区域间的功能属性。光泽的岩板圆桌与舒适的布艺餐椅构成硬朗与柔软的肌理对比,配以不规则的异形吊灯,营造出温馨舒适的就餐氛围,时有家人闲坐的谈笑风生,时有朋友小聚的惬意松弛。 【一楼厨房】 摒弃繁杂的装饰形式,以现代简约的设计手法,强调功能与美学的并重。U型的空间布局,扩大了厨房的使用面积,让下厨动线更为流畅、有序。 【一楼前花园】 把山野意趣引入庭院,于院中造山理水,营造清幽恬静、凝练素雅的城中自然山居,使居者回归内心深处的宁静,于隐逸安宁的栖心之所寻找另一种内敛的奢华。砾石、清潭、苔藓为庭院注入新的生机,观者清净身心,迅速进入这山林野趣之中,每一块石板的摆置,植物的搭配,都承载着传统文化的灵动与厚重,践行着传统的造庭理念。 【一楼后花园】 闲看庭院花开花落,漫随天上云卷云舒,潺潺流水搭配植物景观,意趣横生。拆除客厅与花园之间的墙体,用可灵活开合的玻璃门,使室内外环境通透协调,让空间具有悠然回转的视觉深度,在顷刻之间使庭院与室内融为一体。 【二楼儿童房】 儿童房顺应孩子的天性,在简洁的基调上糅合太空元素,搭配趣味十足的蓝色床品,让孩子尽可能地在充满奥秘的世界里畅游,激发无限的想象力和探索欲。 【二楼主卧】 将生活方式塑造成独有的形态,线条和几何结构简而清晰,轻盈温润的家具选择,让氛围圆融聚合,呈现出舒适的包裹感。而留白的语境里,想象在空间中肆意生长,使居者在纯粹与简淡里觅得真正的惬意松弛。
  • 图片
  • 图片
  • 图片
  • 图片
  • 图片
  • 图片
  • 图片
  • 图片
  • 图片
  • 图片
  • 图片
  • 图片
  • 图片
  • 图片
  • 图片
  • 图片
  • 图片
  • 图片
  • 图片
  • 图片
  • 图片
  • 图片
  • 图片
  • 图片
  • 图片
  • 图片
  • 图片
  • 图片
  • 图片
  • 图片
  • 图片
  • 图片
  • 图片
  • 图片
  • 上一个 下一个
    2024第八届金腾奖 私宅(独居)丨私宅(多人居)丨餐饮丨酒店丨办公丨商业丨公共丨公益丨人物丨NEW100 jintengAWARD(小金_金腾奖组委会) 广州市海珠区琶洲大道68号华新中心21楼
    金腾奖视频号 金腾奖小红书号 监制:刘译遥
    统筹:张俊媚
    运营:赖钰炼 曹凯月 刘芳棋 小金
    新媒体:王贝贝 严洁 张文一
    技术:黄天佑 丁德昌
    最终解释权归金腾奖主办方所有