Dried paper Crane country House
作品详情
  • Details of the work 标题横线
    头像或者logo
    图片 肖瑶
    城市:成都
    公司: 成都回象空间艺术设计有限公司
    参赛作品: 干纸鹤乡村别墅
    空间类型:别墅
    个人/公司简介:
    回象空间设计是一家专注于地产,文旅,商业,私宅提供室内外设计及陈设设计的专业设计团队。我们致力于在空间创意、策划统筹及软装整合领域成为优秀的传播者。 我们秉承人性与美学的互通,哲学与艺术的碰撞,以空间创意定义品牌文化,以营销思维塑造品牌影响力,赋予每个设计项目以鮮明的个性和旺盛的生命力,着力于实现商业空间市场回报效益最大化。 我们遵循创新,融合,共享的发展理念,挖掘传统文化产业的中的可能性,换位思考审视项目可行性,以设计初心提炼项目其市场价值,为投资者提供功能与价值并存的系统打造方案。 我们融汇文化、艺术、哲学的提炼和运用,整合现代美学优质资源,以国际前卫的设计语言为航标,完善资源信息智库,以客户之名解决项目刚需,还原设计落地之张力。
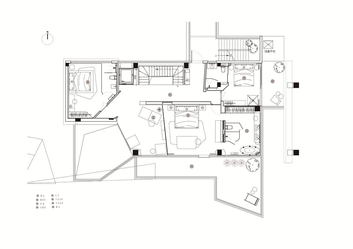
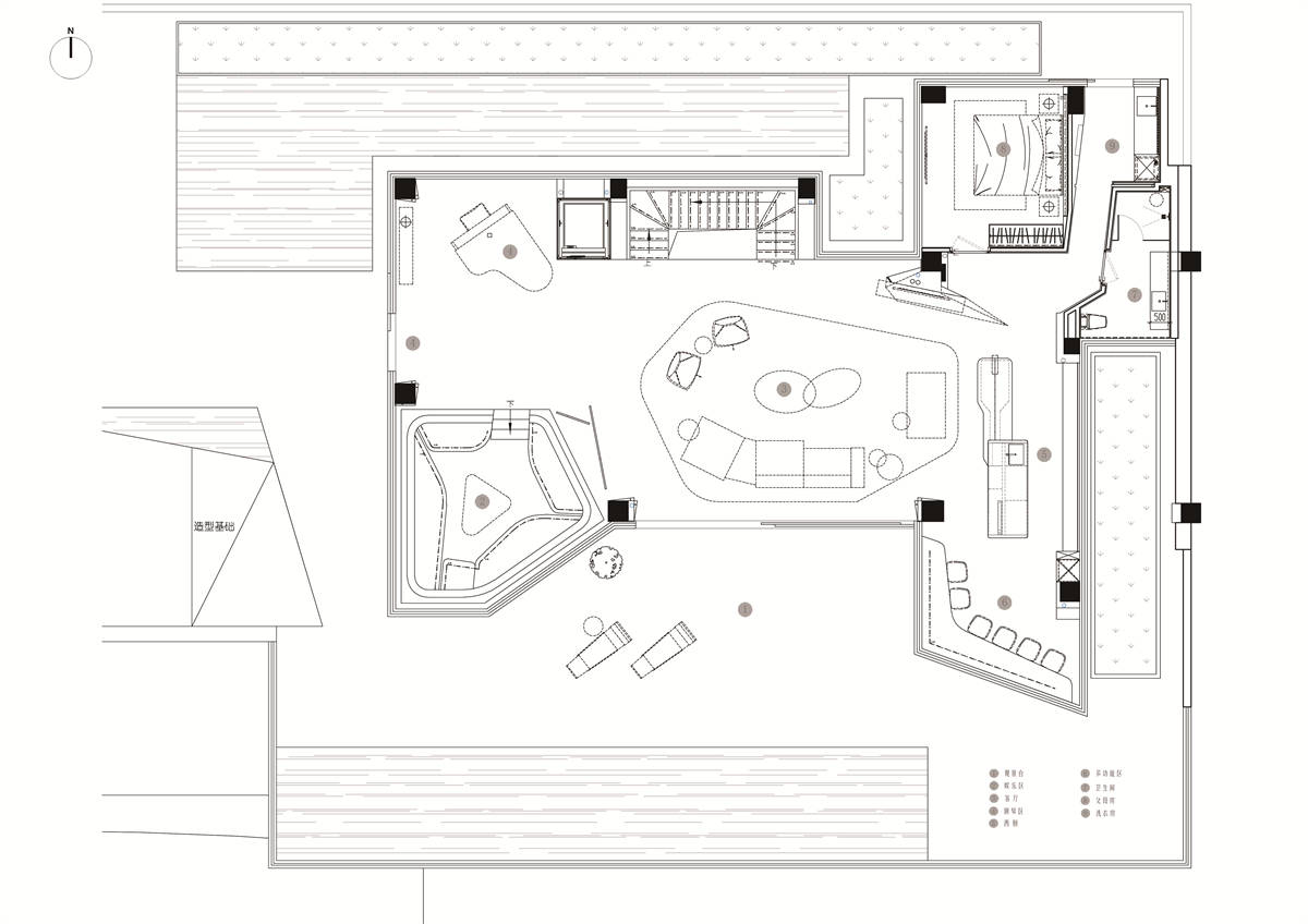
    设计说明 | Design Instruction
  • 朋友一直有个梦想--在老家拥有和自己精神契合的理想居所。为实现它,我们结合她的经历,从干纸鹤的折纸艺术中获取灵感,规划了多元丰富的生活场景,强调回归乡村生活的意义。 总的来说,这个梦想的实现过程是一个充满乐趣和创意的旅程,打造出一个独一无二的理想居所,让朋友及其家人可以在这里拥抱灵感和热爱。 这是一个艺术之家,有很多原创的设计。1、下沉式休闲区的沙发以花瓣为灵感,由不同的花瓣形态组合而成,在空间简练的异形空间线条下,柔化空间,满足客户内心深处柔软浪漫的一面。2、主卧的艺术墙图案,由于客户对现成的图案都不满意,设计师采用数字手段,独立创作了一幅适合空间效果又有艺术性的画作。基于这是居家环境,想用更加内秀的方式表达这幅画。图案用艺术夹丝玻璃的方式呈现,表层再装饰不锈钢冲孔板。不开灯的情况下,是发现不了这幅画的,开了灯才能慢慢呈现出来。3、利用西厨背后的建筑死角,种上绿植,用橱柜框出异形的取景框,变成空间亮点。
  • 图片
  • 图片
  • 图片
  • 图片
  • 图片
  • 图片
  • 图片
  • 图片
  • 图片
  • 图片
  • 图片
  • 图片
  • 图片
  • 图片
  • 图片
  • 图片
  • 图片
  • 图片
  • 图片
  • 图片
  • 图片
  • 图片
  • 图片
  • 图片
  • 图片
  • 图片
  • 图片
  • 图片
  • 图片
  • 图片
  • 图片
  • 图片
  • 图片
  • 图片
  • 图片
  • 图片
  • 图片
  • 上一个 下一个
    2024第八届金腾奖 私宅(独居)丨私宅(多人居)丨餐饮丨酒店丨办公丨商业丨公共丨公益丨人物丨NEW100 jintengAWARD(小金_金腾奖组委会) 广州市海珠区琶洲大道68号华新中心21楼
    金腾奖视频号 金腾奖小红书号 监制:刘译遥
    统筹:张俊媚
    运营:赖钰炼 曹凯月 刘芳棋 小金
    新媒体:王贝贝 严洁 张文一
    技术:黄天佑 丁德昌
    最终解释权归金腾奖主办方所有