self
作品详情
  • Details of the work 标题横线
    头像或者logo
    图片 宋涛
    城市:宜宾
    公司: 宜宾润屋工程设计咨询有限公司
    参赛作品: 悦己
    空间类型:别墅
    个人/公司简介:
    宜宾润屋工程设计咨询有限公司创始人 毕业于四川美术学院室内装潢设计专业 有多年的室内装潢设计经验,对色彩质地及流行时尚有敏锐的感知和认识;对于软装设计有独特的灵感.对软装行业也有一定的了解,善于发现和创新吸取经验;熟悉软装市场,尤其是对软装配饰摆设方面,有良好的审美能力。对物料尺寸比例及空间有较好的把握能力。能掌握基本的装饰材料种类,性能及运用。能独立负责正规项目的配饰设计,有家装样板房展厅摆场设计经验
    设计说明 | Design Instruction
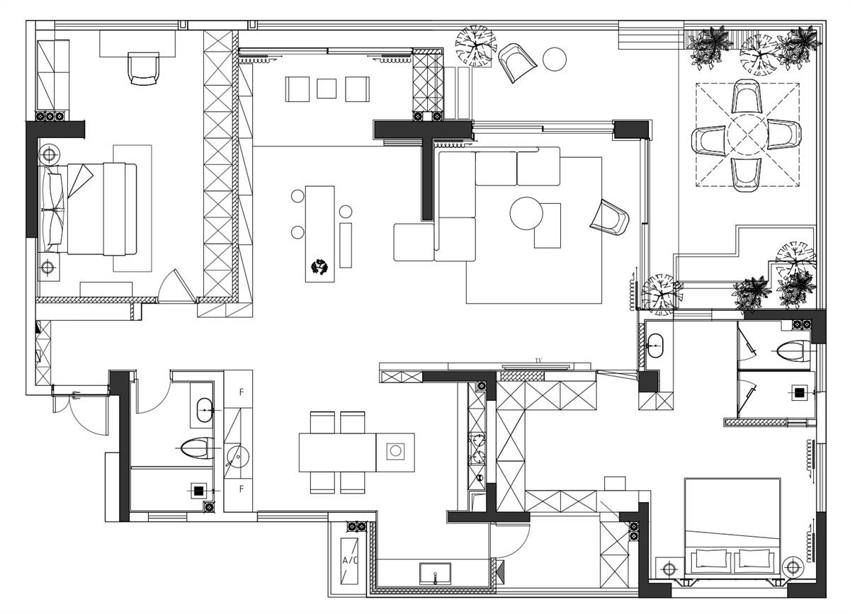
  • 悦己,是自在,是随心,是放肆,是终身浪漫的开始。 悦己、悦家,让生活的幸福感与故事感,串联起一个有温度的舒适栖居。 原户型客厅占据面积较大,布局合理度较低,房间闭塞不通透,生活动线不合理。围绕业主的生活方式为改造中心,通过对部分墙体的移除、变换,使各个空间呈现出便捷的交互联通。同时将自然景观与人文精神融入其中,感受室内与自然共生的关系。 【客厅】 利用入户柜的黑色拉手槽向上延伸,与线灯形成映衬,光影与线条相持相长,于光的流转中,强调了几何线条的韵律,延伸客厅的空间感。拆除部分墙体,以玻璃推拉门最大限度的将自然光线与庭院景色引入室内,随着光影的变换,感受时间一寸寸摩挲而产生的触感,影影绰绰间自得其境。 以墙体原有结构,定制模块式沙发绕承重柱摆放,以此弱化柱体结构,给空间搭配带来更多可能性。 【厨房与餐厅】 原始厨房面积较小,采光较差,我们拆除部分墙体,通过半开放式的餐厨一体化设计,将客厅与餐厨空间进行串联,视线长度和功能流线都因此得以延长。黑白灰色系的有序排列,将整洁现代的日常生活加入理性的生活秩序。 【儿子房】 将部分客厅、阳台空间纳入儿子房,以一字型布局延伸整个场域的深度与广度,实现睡眠、储物、学习、休闲需求的同时满足。 【主卧】 住户仅有两室需求,将次卧纳入主卧空间,拆除次卧部分墙体,通过电视背景墙的隐形门与家政阳台进入主卧,实现集睡眠区、衣帽区、卫浴区为一体的双入口空间。以冷色调为空间基调,结合现代的简明线条勾勒,加上结构与材质的语言表达,将理性的优雅美丽展现得淋漓尽致。 【露台花园】 为保障主卧的私密性与通透性,通过镂空化的处理方式刻画内外间的光影关系,以"框景" 带来 "花影移墙,峰峦当窗,宛然若画,静中生趣" 的游园之意,将露台的自然小景引入室内。墙体的黑白与植物的绿形成了柔和的对比,从视觉层面上赋予了空间东方的诗意。
  • 图片
  • 图片
  • 图片
  • 图片
  • 图片
  • 图片
  • 图片
  • 图片
  • 图片
  • 图片
  • 图片
  • 图片
  • 图片
  • 图片
  • 图片
  • 图片
  • 图片
  • 图片
  • 图片
  • 图片
  • 图片
  • 图片
  • 图片
  • 图片
  • 图片
  • 图片
  • 图片
  • 图片
  • 图片
  • 图片
  • 图片
  • 图片
  • 图片
  • 图片
  • 图片
  • 图片
  • 上一个 下一个
    2024第八届金腾奖 私宅(独居)丨私宅(多人居)丨餐饮丨酒店丨办公丨商业丨公共丨公益丨人物丨NEW100 jintengAWARD(小金_金腾奖组委会) 广州市海珠区琶洲大道68号华新中心21楼
    金腾奖视频号 金腾奖小红书号 监制:刘译遥
    统筹:张俊媚
    运营:赖钰炼 曹凯月 刘芳棋 小金
    新媒体:王贝贝 严洁 张文一
    技术:黄天佑 丁德昌
    最终解释权归金腾奖主办方所有