家之家
作品详情
  • Details of the work 标题横线
    头像或者logo
    图片 未来节拍工作室
    城市:广州
    公司:未来节拍工作室
    参赛作品: 家之家
    空间类型:别墅
    个人/公司简介:
    中文名:未来节拍工作室 英文名:FutureStudio 公司简介:未来节拍工作室FutureStudio,由王士侨和周庭创立于2020年,是一位于广州的独立设计事务所。未来节拍从对生活方式的思考出发,通过空间和材料的研究,和设计细节的推敲,为每个项目带来富有创意体验和独特的美学气质。未来节拍希望通过创意与技术,过去与未来的结合,在设计与艺术之间找到平衡,打破思维的边界。
    设计说明 | Design Instruction
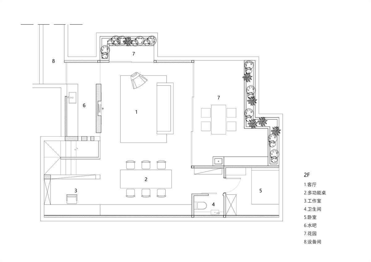
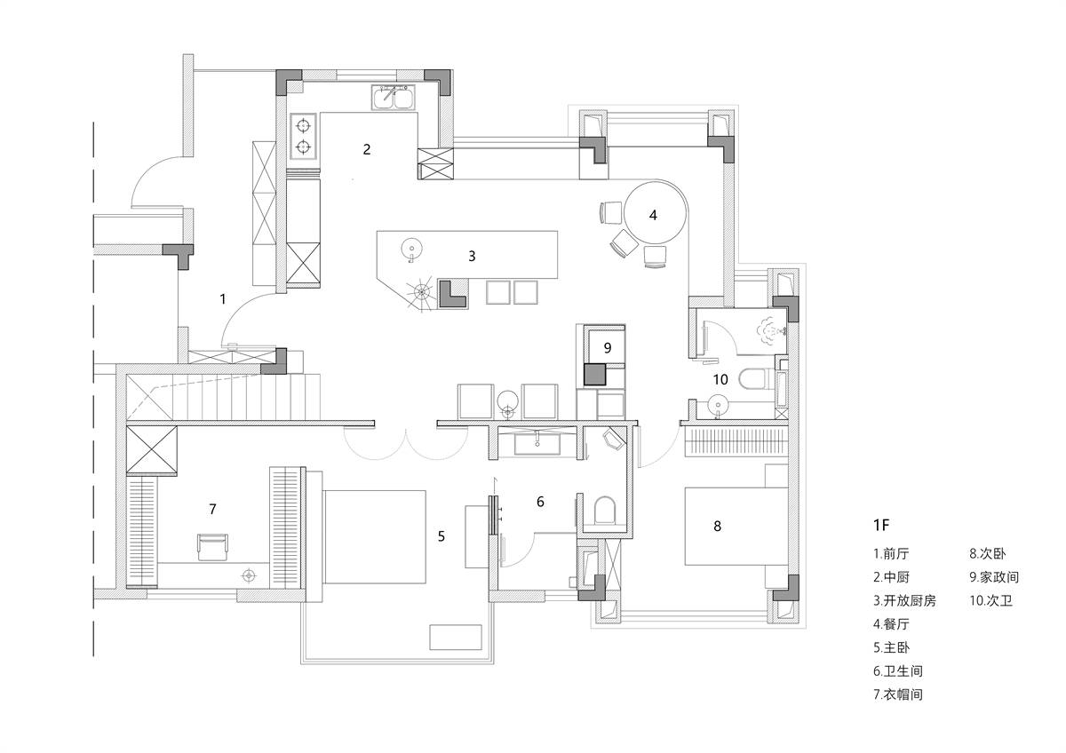
  • 家之家是位于广州市一个200㎡的二层复式住宅,我们夫妇二人既是这里的设计者也是使用者,设计始于2020年8月,2023年10月入住。在我们的畅想里,这里是 “家”,而非一件设计作品,所以在设计的过程中,刻意回避了理论,手法,意义,风格,转而更关注“我想要什么的生活”。 我们认为好的住宅,是风格退让,生活前置,内收而非外放;亲和而有力;仅由一个片段,即可联想到生活的整体场景。 在这个家中,最令人记忆深刻的应该是空间中那一抹”薄荷蓝”。在“极简”概念泛滥的当下,我们并不希望这个家是单调、统一和乏味的感受,我们希望在空间当中表达一种令人愉悦,平静,自然的氛围和一些视觉上的冲突。回忆起曾经我们去过的大卫霍克尼画展和拉图雷特教堂,答案便出现在脑海里了。之后的“薄荷蓝”并没有被泛滥的运用在软装上,而是被用在了书柜和柱子这种无法被轻易替换的材质上,原因在于我们希望色彩对空间的影响是持久的,克制的,具有时间性的,而非短时间的一蹴而就。而 “色彩的内在力量“是男主人在研究生时期便开始研究的课题,在这里也进行了实践。 除了“个人化”的色彩之外,空间功能的布局也基于我们的生活方式。在两层楼的规划当中,一层为餐厨空间和卧室,二层为客厅和工作室,且入户进门既是厨房而非客厅,这与传统的布局似乎背道而驰。我们认为在“家”的文化中,家庭感往往来自于团聚和吃饭,在家庭活动中人的表达往往要比坐在沙发上面对这电视机的表达要轻松得多。所以在布局中我们强调了“餐厨空间”在生活当中的重要性,并把一层的一半面积留给了餐厨,也把预算的一半留给了餐厨。这是我们对空间的实验,在这个家生活了半年,家庭聚会大多数也是围绕着这个餐厨空间发生的,做饭者变成了表演者,吃饭者变成了参与者,好的交流是“家”的催化剂,事实证明空间的确会影响生活。 第三个“个人化”是关于二楼的工作室,在规划之初我们便设想在公司和家之外需要一个第三空间来满足专业工作之外的工作和生活需求,我们希望这个空间更加开放和放松,我们并没有在室内的设计上做太多的文章而是更多的把视线引向自然,于是我们在天花上开了天窗去欣赏一天中太阳的变化,放了双向的沙发让这个空间与对面的山景有更多的互动,用8米长的书柜来收纳展示我们在旅行中收藏的各种物品。 家之家可以看作是我们二人第一次对住宅设计理解的实验和实践,强调”家“的原因是希望设计能够回归生活本身,对”家“的本质有更多的观察和思考。
  • 图片
  • 图片
  • 图片
  • 图片
  • 图片
  • 图片
  • 图片
  • 图片
  • 图片
  • 图片
  • 图片
  • 图片
  • 图片
  • 图片
  • 图片
  • 图片
  • 图片
  • 图片
  • 图片
  • 图片
  • 图片
  • 图片
  • 图片
  • 图片
  • 图片
  • 图片
  • 图片
  • 图片
  • 图片
  • 图片
  • 图片
  • 图片
  • 图片
  • 图片
  • 图片
  • 图片
  • 上一个 下一个
    2024第八届金腾奖 私宅(独居)丨私宅(多人居)丨餐饮丨酒店丨办公丨商业丨公共丨公益丨人物丨NEW100 jintengAWARD(小金_金腾奖组委会) 广州市海珠区琶洲大道68号华新中心21楼
    金腾奖视频号 金腾奖小红书号 监制:刘译遥
    统筹:张俊媚
    运营:赖钰炼 曹凯月 刘芳棋 小金
    新媒体:王贝贝 严洁 张文一
    技术:黄天佑 丁德昌
    最终解释权归金腾奖主办方所有