仲夏夜之梦
作品详情
  • Details of the work 标题横线
    头像或者logo
    图片 陈虎 云上设计师俱乐部特约推荐
    城市:南京
    公司: 龙瑞装饰
    参赛作品: 仲夏夜之梦
    空间类型:别墅
    个人/公司简介:
    设计师-陈虎 龙瑞首席设计师 16年室内设计工作经验 擅长风格:现代简约、轻奢、新中式、美式、欧式古典..... 擅长户型:别墅、叠墅、平墅 进修于中央工艺美院 中国建筑装饰协会高级住宅室内设计师 陈设委员会高级陈设设计师 曾南京金陵科技学院艺术系’南京 正德学院-室内设计客座教授 近几年多次多次参加广东设计周、上海米兰设计周等、国内外陈设家居设计大展 作品多次刊登南京晨报、广东设计周全国十佳设计师采访、江苏省室内设计D-Life杂志等 设计理念:每一个家庭都有一个故事,这个故事是有生命的,是人们生活的延续。“家”它要具有可以回忆的过去往事,但也要具有撰写新故事的能力。
    设计说明 | Design Instruction
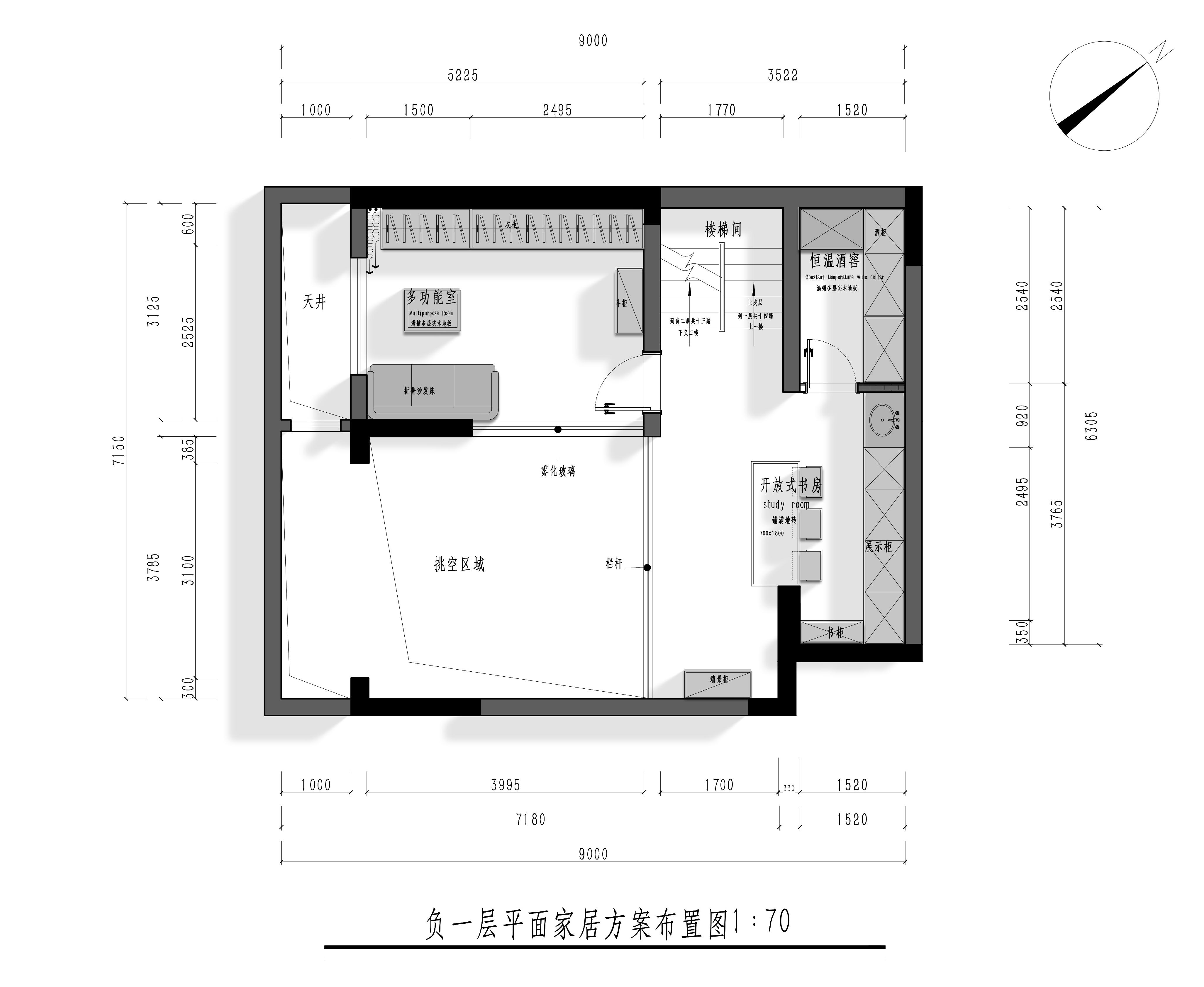
  • 设计现代美式叠墅 本设计是一个四层的叠墅,结合了现代和美式设计风格,为居住者提供了舒适和多功能的居住空间。以下是各层的设计说明: 1. 负二层娱乐空间: - 瑜伽室:为居住者提供放松身心的空间,配备舒适的瑜伽垫和自然光线。 - 影视会客厅:提供一个家庭娱乐的场所,配备舒适的沙发和大屏幕电视。 2. 负一楼客房兼书房功能: - 客房:设计为多功能的客房,可以用作客人的住宿空间,也可以作为书房使用。 - 钢琴空间:为音乐爱好者提供一个专门的区域,放置钢琴和其他乐器。 3. 一楼客厅、厨房和花园: - 客厅:设计为宽敞明亮的客厅,提供舒适的休息和娱乐空间。 - 中厨房和西厨:中厨房用于日常烹饪,西厨则用于烹饪西式菜肴。 - 父母房:为父母提供一个私密的休息空间。 - 大院子休闲烧烤花园种菜:设计了一个宽敞的院子,可以用于休闲、烧烤和种植蔬菜,让居住者可以享受户外活动和自给自足的生活方式。 4. 二楼主卧室和儿子房: - 主卧室:设计为宽敞舒适的主卧室,配备独立的卫生间和浴室。 - 儿子房:为孩子设计的卧室,提供一个舒适的休息和学习空间。 - 独立衣帽间:为主卧室提供一个独立的衣帽间,方便居住者整理衣物和配饰。 这个四层的叠墅设计充分考虑了居住者的需求和生活方式,提供了多功能的空间,让居住者可以根据自己的喜好和需求进行布置和使用。同时,现代和美式设计风格的结合,使整个叠墅既时尚又温馨,给人一种舒适和宜居的感觉。
  • 图片
  • 图片
  • 图片
  • 图片
  • 图片
  • 图片
  • 图片
  • 图片
  • 图片
  • 图片
  • 图片
  • 图片
  • 图片
  • 图片
  • 图片
  • 图片
  • 图片
  • 图片
  • 图片
  • 图片
  • 图片
  • 图片
  • 图片
  • 图片
  • 图片
  • 图片
  • 图片
  • 图片
  • 图片
  • 图片
  • 图片
  • 图片
  • 图片
  • 上一个 下一个
    2024第八届金腾奖 私宅(独居)丨私宅(多人居)丨餐饮丨酒店丨办公丨商业丨公共丨公益丨人物丨NEW100 jintengAWARD(小金_金腾奖组委会) 广州市海珠区琶洲大道68号华新中心21楼
    金腾奖视频号 金腾奖小红书号 监制:刘译遥
    统筹:张俊媚
    运营:赖钰炼 曹凯月 刘芳棋 小金
    新媒体:王贝贝 严洁 张文一
    技术:黄天佑 丁德昌
    最终解释权归金腾奖主办方所有