空间与人
作品详情
  • Details of the work 标题横线
    头像或者logo
    图片 陈虎 云上设计师俱乐部特约推荐
    城市:南京
    公司: 龙瑞装饰
    参赛作品: 空间与人
    空间类型:别墅
    个人/公司简介:
    16年室内设计工作经验 擅长风格:现代简约、轻奢、新中式、美式、欧式古典..... 擅长户型:别墅、叠墅、平墅 进修于中央工艺美院 中国建筑装饰协会高级住宅室内设计师 陈设委员会高级陈设设计师 曾南京金陵科技学院艺术系’南京 正德学院-室内设计客座教授 近几年多次多次参加广东设计周、上海米兰设计周等、国内外陈设家居设计大展 作品多次刊登南京晨报、广东设计周全国十佳设计师采访、江苏省室内设计D-Life杂志等 设计理念:每一个家庭都有一个故事,这个故事是有生命的,是人们生活的延续。“家”它要具有可以回忆的过去往事,但也要具有撰写新故事的能力。
    设计说明 | Design Instruction
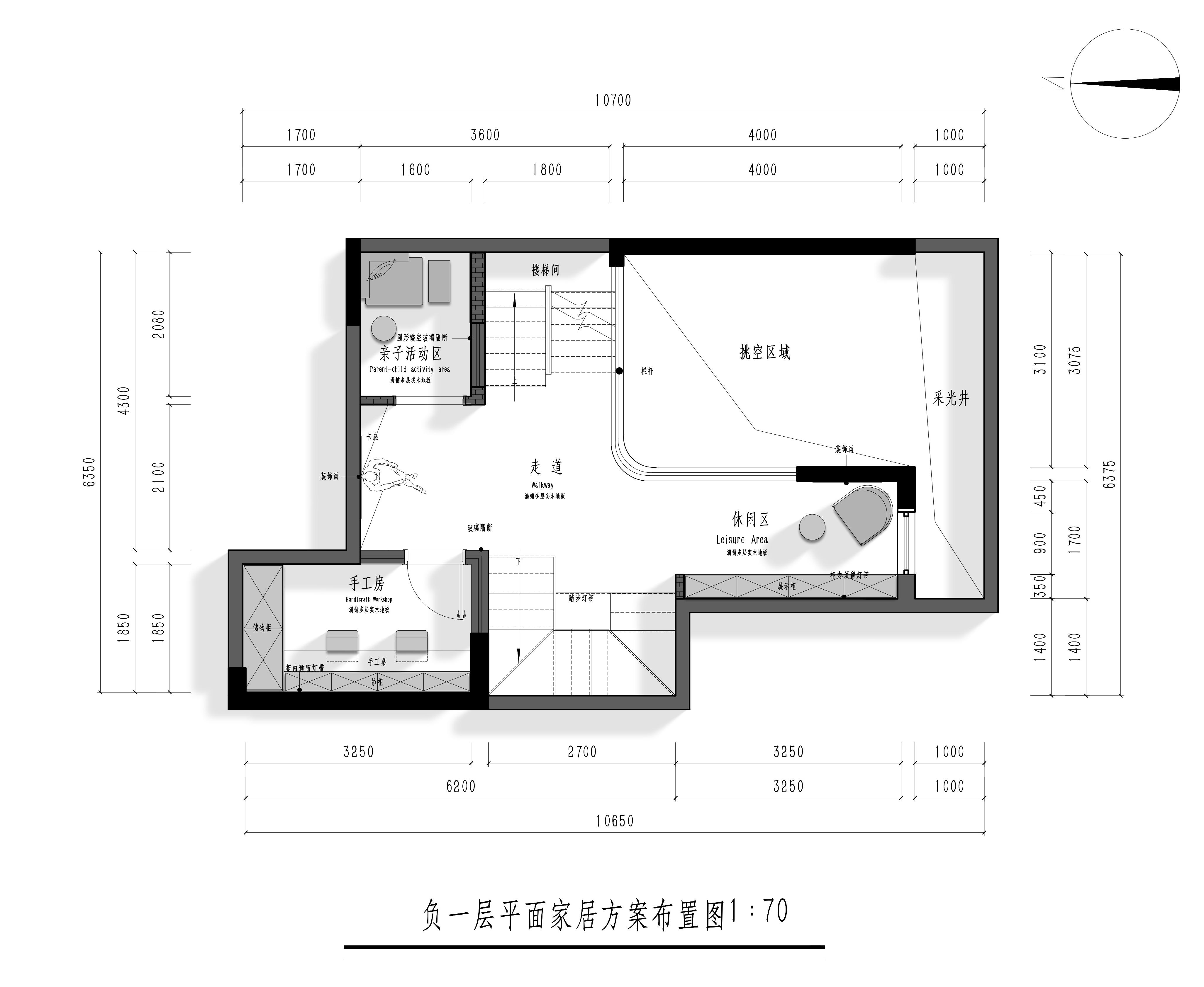
  • 现代极简意式风格设计说明 本设计以现代极简和意式风格为主题,注重简洁、舒适和功能性。以下是各层的设计说明: 1. 负二层入户门厅和影视会客厅: - 入户门厅:设计一个仪式感门厅,通过精心选择的材料和灯光,营造出高雅的氛围。 - 影视会客厅:提供一个舒适的休息和娱乐空间,配备舒适的沙发和大屏幕电视。 - 亲子空间瑜伽地台:为家庭成员提供一个共同锻炼身心的空间,设计一个瑜伽地台,方便进行瑜伽和伸展运动。 - 负一楼挑空天窗设计:通过挑空天窗设计,引入自然光线,使整个空间更加明亮和通透。 - 楼梯选择无踢脚线:为了保持整体的简洁和流畅,选择无踢脚线的楼梯设计,使空间更加简洁和现代感。 - 外墙石材和灰泥一体设计:采用外墙石材和灰泥一体设计,营造出意式建筑的质感和风格。 2. 负一楼手工间、暖空设备间和小书吧: - 手工间:为居住者提供一个专门的手工艺和创作空间,方便进行手工制作和艺术创作。 - 暖空设备间:设计一个专门的设备间,用于存放暖空设备,保持整个居住空间的温暖和舒适。 - 小书吧:为居住者提供一个安静的阅读空间,设计一个小书吧,放置书籍和舒适的座椅。 3. 一楼餐厅岛台设计和预留父母房: - 餐厅岛台设计:将餐厅设计为岛台形式,增加了用餐的灵活性和交流的便利性。 - 嵌入式冰箱:为了保持整体的简洁和流畅,选择嵌入式冰箱,使厨房空间更加整洁和美观。 - 预留卡座:设计一个预留的卡座,方便居住者与家人和朋友共进餐食。 - 预留父母房:为父母预留一个私密的休息空间,提供舒适和隐私。 4. 二层大套房和儿童房: - 大套房中预留书房:为主卧室预留一个书房区域,方便居住者进行学习和工作。 - 儿童房:将儿童房设计在二楼,方便照看和照顾孩子,同时保持与主卧室的亲密性。 - 双开门设计:为了增加空间的流通性和通风性,选择双开门设计,使整个楼层更加开放和通透。 这个现代极简意式风格的设计注重简洁、舒适和功能性,通过精心的布局和材料选择,营造出一个现代而又温馨的居住空间。同时,意式风格的元素和细节,为整个设计增添了一份独特的魅力和品味。
  • 图片
  • 图片
  • 图片
  • 图片
  • 图片
  • 图片
  • 图片
  • 图片
  • 图片
  • 图片
  • 图片
  • 图片
  • 图片
  • 图片
  • 图片
  • 图片
  • 图片
  • 图片
  • 图片
  • 图片
  • 图片
  • 图片
  • 图片
  • 图片
  • 图片
  • 图片
  • 图片
  • 图片
  • 图片
  • 图片
  • 图片
  • 图片
  • 图片
  • 图片
  • 图片
  • 图片
  • 图片
  • 图片
  • 图片
  • 上一个 下一个
    2024第八届金腾奖 私宅(独居)丨私宅(多人居)丨餐饮丨酒店丨办公丨商业丨公共丨公益丨人物丨NEW100 jintengAWARD(小金_金腾奖组委会) 广州市海珠区琶洲大道68号华新中心21楼
    金腾奖视频号 金腾奖小红书号 监制:刘译遥
    统筹:张俊媚
    运营:赖钰炼 曹凯月 刘芳棋 小金
    新媒体:王贝贝 严洁 张文一
    技术:黄天佑 丁德昌
    最终解释权归金腾奖主办方所有