Luminous Wood Bath
作品详情
  • Details of the work 标题横线
    头像或者logo
    图片 陈芷庭
    城市:新北
    公司: 沐水设计
    参赛作品: 光合木浴
    空间类型:公寓(150㎡以下)
    个人/公司简介:
    我们善于各式设计风格,设计以舒适为目的;我们对于与您的沟通为首要目标,为您设想;对于您重视的收纳空间、理想格局、明亮舒服的灯光设计、流畅舒服的生活动线;我们重视循环再利用的建材使用,在每个作品中致力打造充满绿意及阳光的空间,将您梦想中的居家空间完整呈现。
    设计说明 | Design Instruction
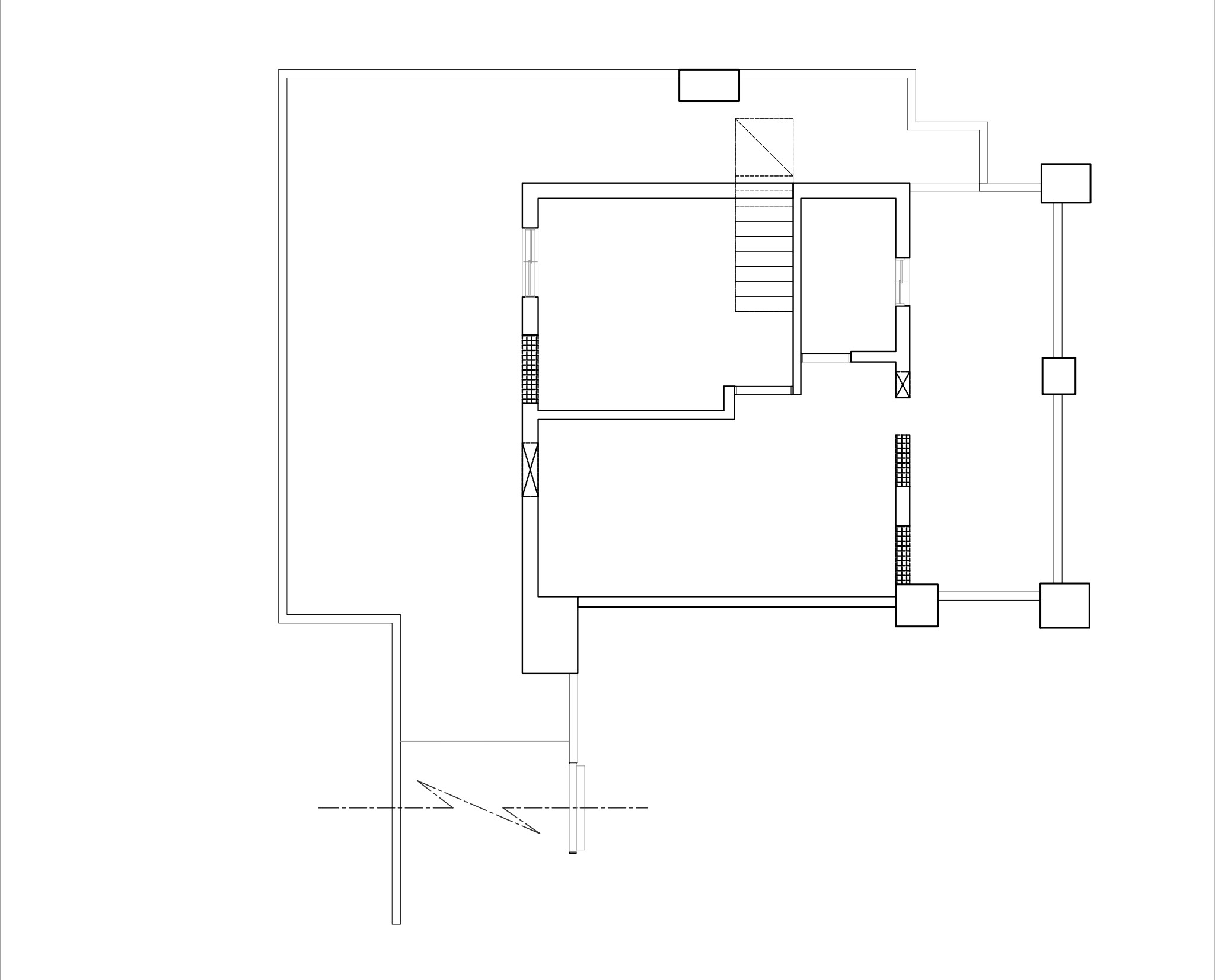
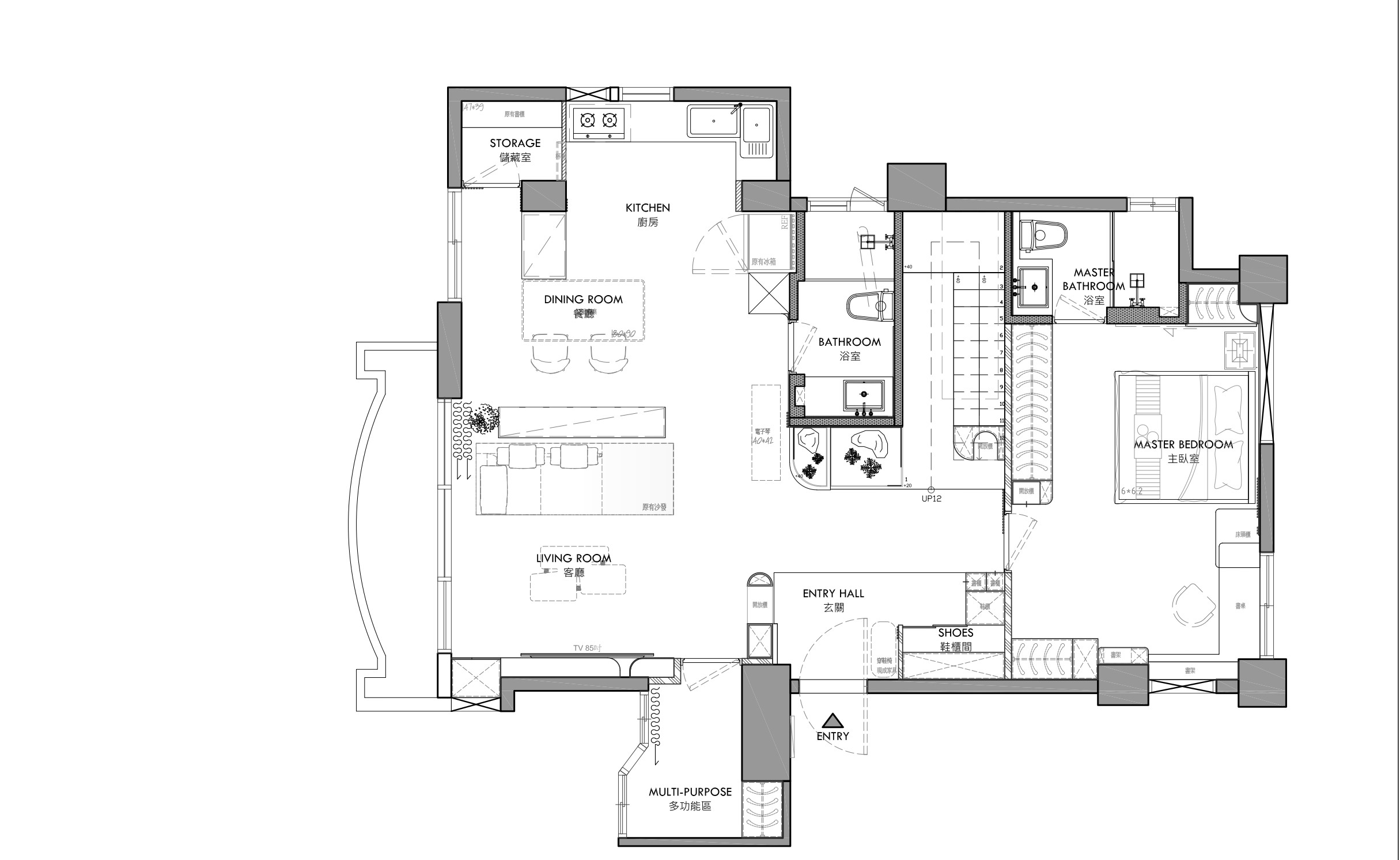
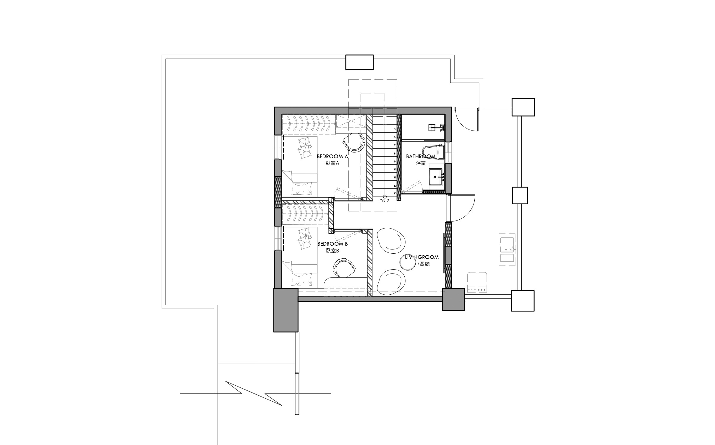
  • 钟情于木质调的屋主,期盼空间里能展现材质的原始肌理,因此大量使用不同纹理、色调的木纹,结合温润的采光、绿意植栽,让这复层空间,不仅满足机能需求,更成为城市里的宁静绿洲。开放性的布局实践流畅的动线,木质的连贯为主轴,米色涂料筑起墙面底色,搭配跳色的沙发、灰阶窗帘,以清新的大地色系创造生动的家景。 冷棕色的木纹搭配枯木造景,成为玄关处的自然风景。手工制作的盆器基底,搭配柔和的光源,营造出温馨的氛围,简单而耐人寻味。左侧的收纳柜与圆拱形展示台巧妙结合,既区分了客厅和玄关,又保留了一丝隐私感。循着木质地坪步入客厅,自然木节与利落格栅堆栈出主墙的层次变化,却因同色系的串联使画面不失和谐性,同时也藉由笔直的沟缝配置一道隐藏门,呈现简而不减的设计细节。半高的矮墙划分客餐厅的配置,拓开了视线也收纳最丰沛的采光量。厨房壁面上采用壁龛设计嵌入展示柜,摆放屋主各地旅游搜集的马克杯,大地色系的厨具呼应空间调性,维持一致的家居美学。卧室延续公领域的自然惬意,天幕援引曲弧的流畅弱化矮量的压迫性,木质的铺排筑起舒适的睡眠情境。
  • 图片
  • 图片
  • 图片
  • 图片
  • 图片
  • 图片
  • 图片
  • 图片
  • 图片
  • 图片
  • 图片
  • 图片
  • 图片
  • 图片
  • 图片
  • 图片
  • 图片
  • 图片
  • 图片
  • 图片
  • 图片
  • 图片
  • 图片
  • 图片
  • 图片
  • 图片
  • 图片
  • 图片
  • 图片
  • 上一个 下一个
    2024第八届金腾奖 私宅(独居)丨私宅(多人居)丨餐饮丨酒店丨办公丨商业丨公共丨公益丨人物丨NEW100 jintengAWARD(小金_金腾奖组委会) 广州市海珠区琶洲大道68号华新中心21楼
    金腾奖视频号 金腾奖小红书号 监制:刘译遥
    统筹:张俊媚
    运营:赖钰炼 曹凯月 刘芳棋 小金
    新媒体:王贝贝 严洁 张文一
    技术:黄天佑 丁德昌
    最终解释权归金腾奖主办方所有