Soothing Symmetry
作品详情
  • Details of the work 标题横线
    头像或者logo
    图片 詹晧
    城市:桃园市
    公司: 詹晧室内设计
    参赛作品: 潤方圓
    空间类型:公寓(150㎡以下)
    个人/公司简介:
    詹晧室内设计由詹晧设计师主导服务。詹晧沉浸室内设计装修领域已累积十多年经验,擅长各种室内设计风格,在人的生活与室内设计艺术之间取出最平衡的设计,我们非常重视屋主全程的服务感受,所有的设计图绘制皆由詹晧设计师亲自绘制设计,始终坚持设计图不假手于其他设计师或助理绘制设计,装修工程施工期间的工程管理全程由詹晧设计师本人管理服务,让屋主从设计到工程都可以对到詹晧设计师本人,以屋主角度为核心本质出发,依屋主需求规划设计出最舒适的住宅环境以及氛围,打造出符合屋主期待的优质设计。
    设计说明 | Design Instruction
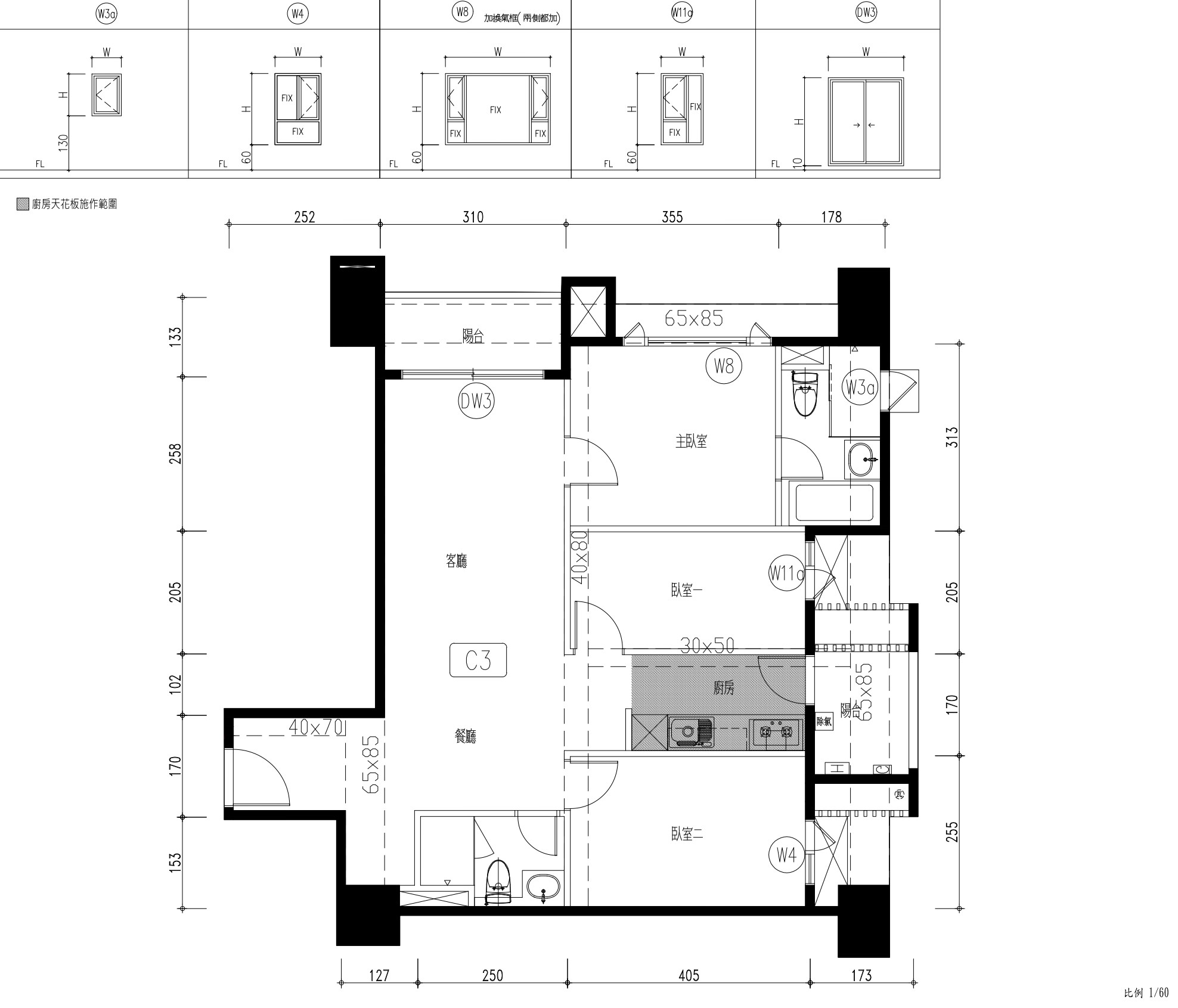
  • 设计需求与原况 : 本案约70平方公尺,狭长型空间,楼高不足,夫妻皆为医护人员,工作繁忙。 这对屋主喜爱中岛型餐桌,并希望在设计中融入玄关、封闭式厨房以及更衣区的需求。此外,他们未来也有育儿的计划,妻子偏好温馨的浅色调,而丈夫则更钟爱沉稳的深色系。 空间策略 : 1. 流畅动线 : 中岛吧台的布局至关重要,不仅要为未来家庭成员的增加预留弹性空间,还需合理安排椅子的摆放方向,预留足够宽度的廊道,以形成回字型动线,使从玄关到客厅、厨房和卧室的移动都十分便捷。 私领域隐藏在电视墙面的推门后,收整廊道动线,也创造一处利落立面。将吊隐式设备与检修口隐藏于餐厅处的木质天花板加上垂吊餐灯,保留足够的高度给客厅,给予流畅的视觉画面。主卧室设计了灵活的更衣区,将功能区与睡眠区巧妙分隔,同时保障动线的流畅性。 2. 色彩 : 公领域使用妻子喜欢的温馨浅色调,放大空间清透性 ; 主卧室则使用沉稳静谧的深色系,既满足双方美感上的喜好,又不失空间机能。 选材策略 1. 异材质调控比例 : 主卧、厨房、展示柜、次卧开门位置位落同侧,分别使用木质、皮革、涂料、金属格栅、黑玻等异材质墙面结合,使客厅电视墙延展,同时修饰门与门间的排列,形成一道具有视觉艺术的主墙。考虑动线舒适度而未置中摆放的中岛吧台,同样透过金属格栅、皮革与涂料的墙面比例,模糊视觉,弱化焦点。 2. 多元和谐对称:设计师于客厅与玄关交界处,保留了宽敞的转折空间,其墙面以尺寸不同的圆型装饰,大型圆镜对应玄关的石英石砖 ; 中型圆镜对应中岛的石纹 ; 小型圆镜对应玄关镜面 ; 最小圆镜则对应皮革墙,所有圆型外框以金属格栅包边,整体主墙再与屋主喜爱的沙发饰灯呼应,形成多元和谐的对称比例。
  • 图片
  • 图片
  • 图片
  • 图片
  • 图片
  • 图片
  • 图片
  • 图片
  • 图片
  • 图片
  • 图片
  • 图片
  • 图片
  • 图片
  • 图片
  • 图片
  • 图片
  • 图片
  • 图片
  • 图片
  • 图片
  • 图片
  • 图片
  • 上一个 下一个
    2024第八届金腾奖 私宅(独居)丨私宅(多人居)丨餐饮丨酒店丨办公丨商业丨公共丨公益丨人物丨NEW100 jintengAWARD(小金_金腾奖组委会) 广州市海珠区琶洲大道68号华新中心21楼
    金腾奖视频号 金腾奖小红书号 监制:刘译遥
    统筹:张俊媚
    运营:赖钰炼 曹凯月 刘芳棋 小金
    新媒体:王贝贝 严洁 张文一
    技术:黄天佑 丁德昌
    最终解释权归金腾奖主办方所有