Riding the wind
作品详情
  • Details of the work 标题横线
    头像或者logo
    图片 靳成
    城市:合肥
    公司:
    参赛作品: 风起
    空间类型:公寓(150㎡以下)
    个人/公司简介:
    壹研设计师--靳成 有限空间,无限价值,做每一个能治愈,有温度的空间 18年从事设计至今,每每感动于每个平凡人对独属于自己的房子里寄予的无限期待与希冀,希望通过在不断的实践设计中获得的经验去为更多人展现出更加适合,贴近生活,能提供正向情绪价值的空间设计。
    设计说明 | Design Instruction
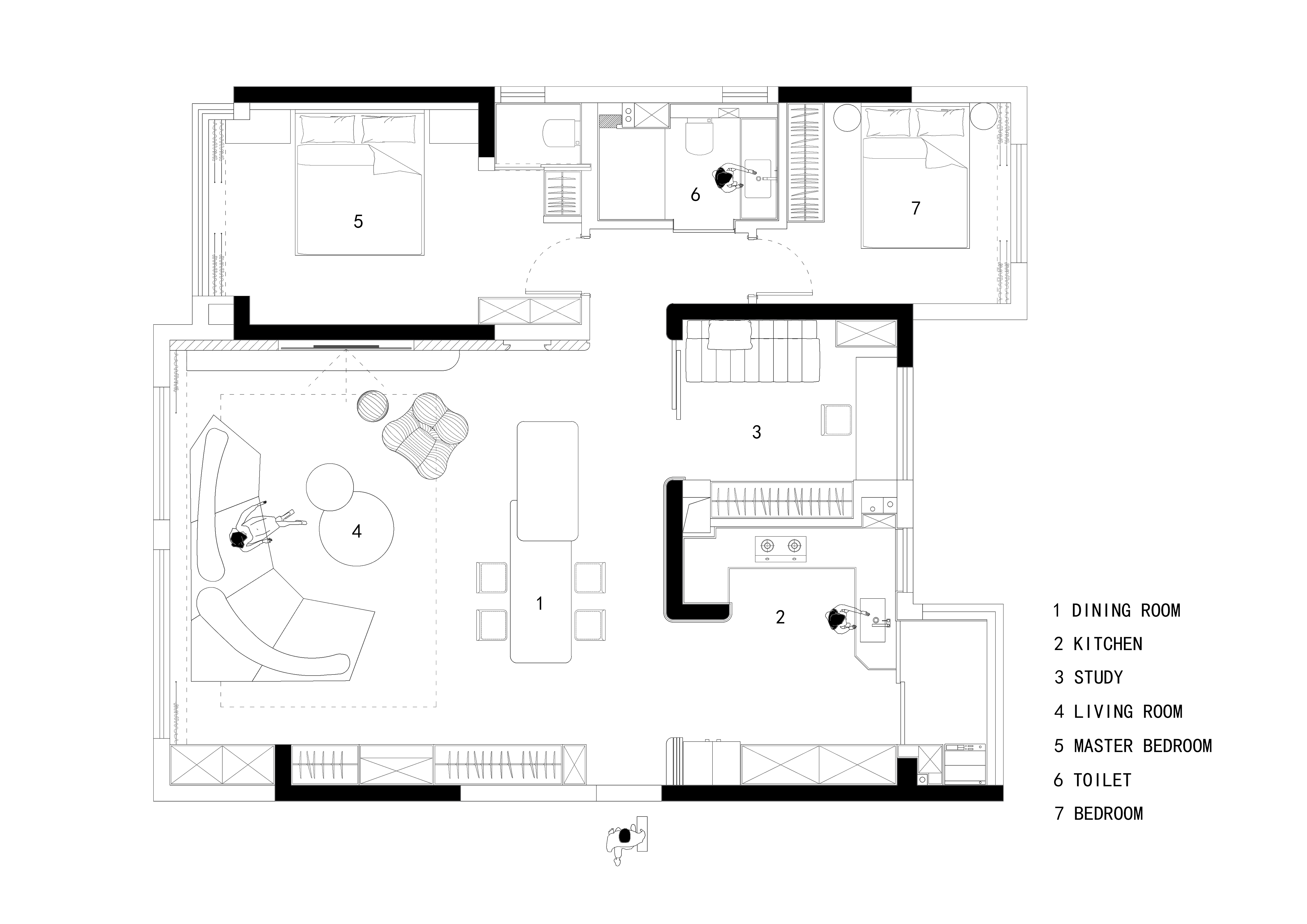
  • 设计说明 本案是一对95后情侣的婚房。旨在拓展空间视野和互动性、强化空间功能使用的舒适度与体验感。通过空间的相互借用、融合来解决空间分布不均的问题。 将阳台纳入客厅,借用宽大的落地窗引光入室,增加空间的通透性; 客厅比例过大,空间利用不高,是公区的痛点;故以增设了社交餐厅,与休闲空间融为一体。 进门左侧的储物柜集合了鞋帽、衣物、水吧、家政等功能的收纳,化零为整,使空间简洁统一; 材质上以浅灰色柜体和黑色木纹相结合,水吧区域点缀黑白根岩板,增加立面层次,与整体空间呼应。 将原有餐厅、厨房空间合二为一,采光,视野,空间都得以改善,解决厨房过小,无法满足日常生活需求的问题; 北阳台设为家政区,以玻璃门分割视野,避免凌乱景象; 同时书房向厨房借用部分空间,增加收纳,空间重组,合理划分各区域的比例。 原有卫生间空间紧凑,主卧收纳不足,而次卧空间有些浪费; 设计师将这一板块重新规划,增加主卧的收纳空间,也提升了卫浴功能的舒适度。
  • 图片
  • 图片
  • 图片
  • 图片
  • 图片
  • 图片
  • 图片
  • 图片
  • 图片
  • 图片
  • 图片
  • 图片
  • 图片
  • 图片
  • 图片
  • 图片
  • 图片
  • 图片
  • 图片
  • 图片
  • 图片
  • 图片
  • 图片
  • 图片
  • 图片
  • 图片
  • 上一个 下一个
    2024第八届金腾奖 私宅(独居)丨私宅(多人居)丨餐饮丨酒店丨办公丨商业丨公共丨公益丨人物丨NEW100 jintengAWARD(小金_金腾奖组委会) 广州市海珠区琶洲大道68号华新中心21楼
    金腾奖视频号 金腾奖小红书号 监制:刘译遥
    统筹:张俊媚
    运营:赖钰炼 曹凯月 刘芳棋 小金
    新媒体:王贝贝 严洁 张文一
    技术:黄天佑 丁德昌
    最终解释权归金腾奖主办方所有