Home is the way you like it
作品详情
  • Details of the work 标题横线
    头像或者logo
    图片 汪洋
    城市:宁波
    公司: 一启设计
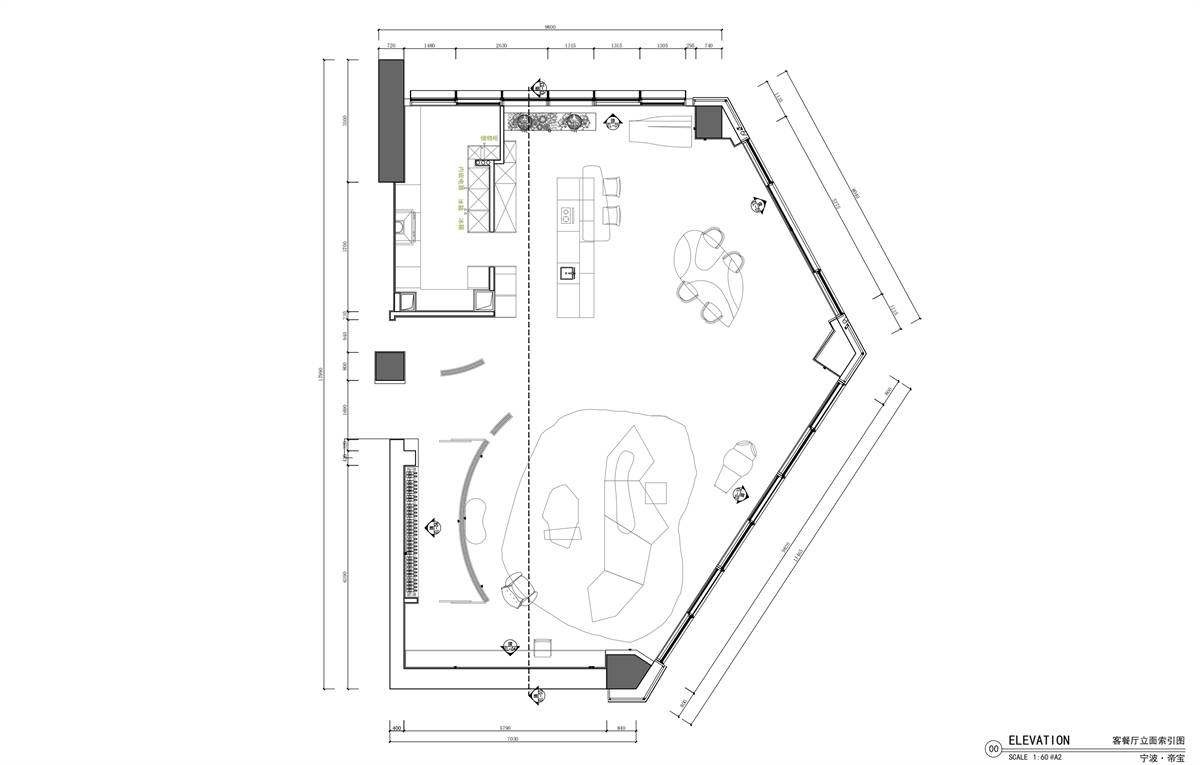
    参赛作品: 家是你喜欢的样子
    空间类型:别墅
    个人/公司简介:
    一启设计创始人/创意总监 T10设计联盟联合创始人旅行达人、大学老师、中古家具发烧友、咖啡馆合伙人...... CIDA中国室内设计大奖最佳商业空间大奖 现代装饰国际传媒奖—十大精英设计团队(宁波) 金堂奖优秀作品奖 金美奖最佳空间设计大奖 ANNUAL CITIES TOP 10 设计创造价值精英人物年度城市十强 金腾奖—-全国new100标杆设计团队 设计理念:认真地“玩”设计 设计是一个解决问题或不断优化的过程,从形式表象到功能体块,再到心理情绪,它是多维的考量。因此,设计师必须以一种严谨和克制的态度去面对每一个项目,力求做到从设计到落地的精准实践。同时,以共情心去精准地抓取业主想要表达的情绪,让空间呈现恰当的氛围。
    设计说明 | Design Instruction
  • 在一座城市的心脏地带,隐入云端760㎡的大平层,合该是什么样子的?是持重贵族的瑰丽奢华?还是引领潮流的意式极简?又或是新新人类的大胆前卫?这一次,年轻的业主和设计师给了我们全新的答案:家,可以是你喜欢的任何样子,豪宅,也可以不那么一本正经。 在一步步搭建设计愿景的过程中,一启设计与业主有过多次真实切肤的探讨:当我们在讨论生活与居住的本质时,我们究竟在讨论什么?房子是居住的机器,器与物,终归是要服务人的幸福本身。 显贵身份,声名鹊起亦或者物质丰盈并不是真正的出发点和到达,在风起云涌的时代变幻里,在手可摘星辰的云端里,依然保有内心的平静柔软与清泉,不为外物所累,不为得失牵绊,在这方小天地里,舒展自由无所限,家人温情脉脉述衷肠,大概就是家的真正模样吧。
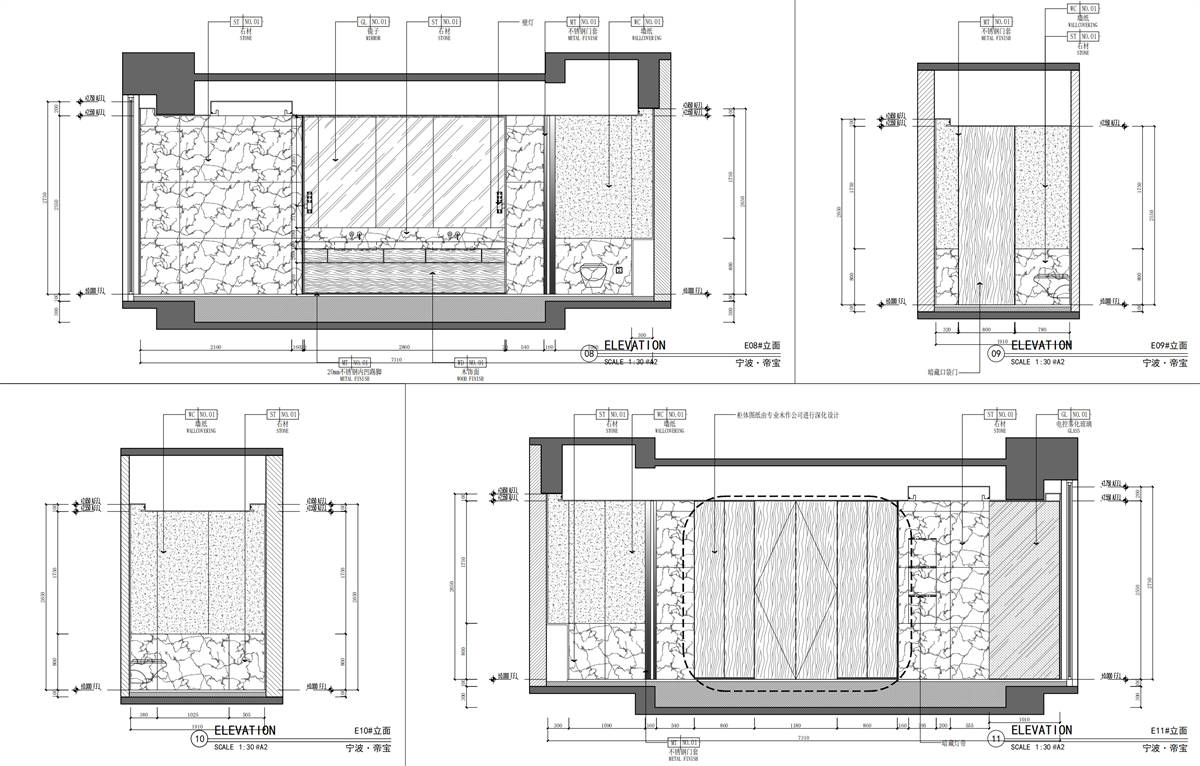
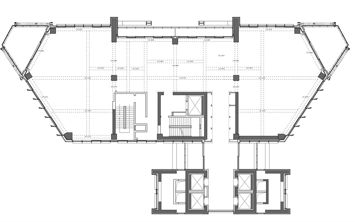
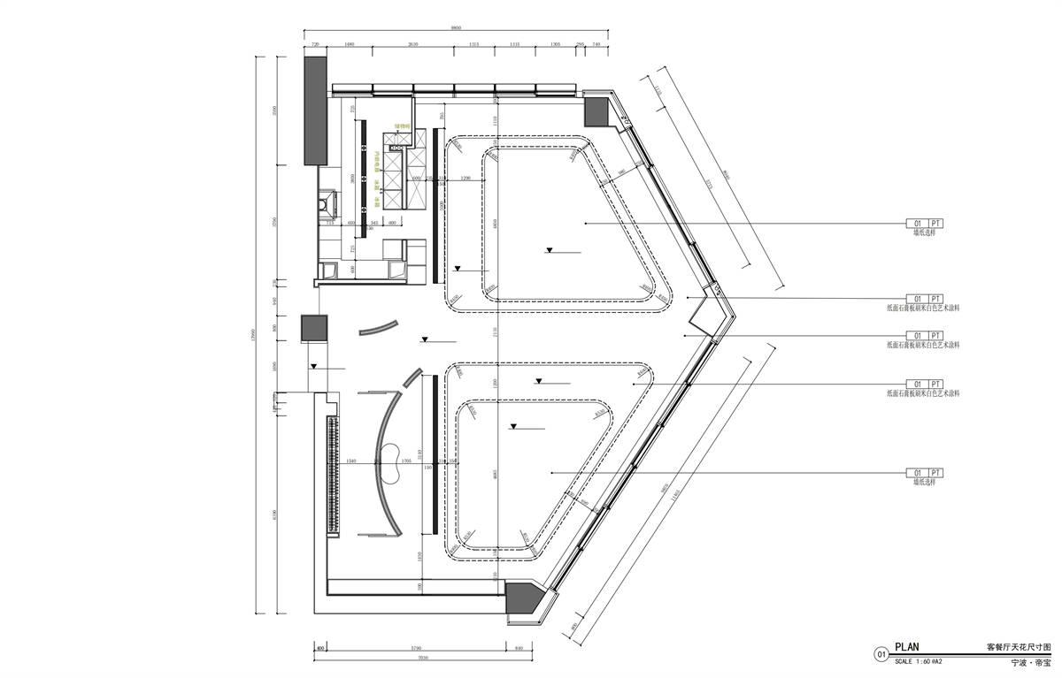
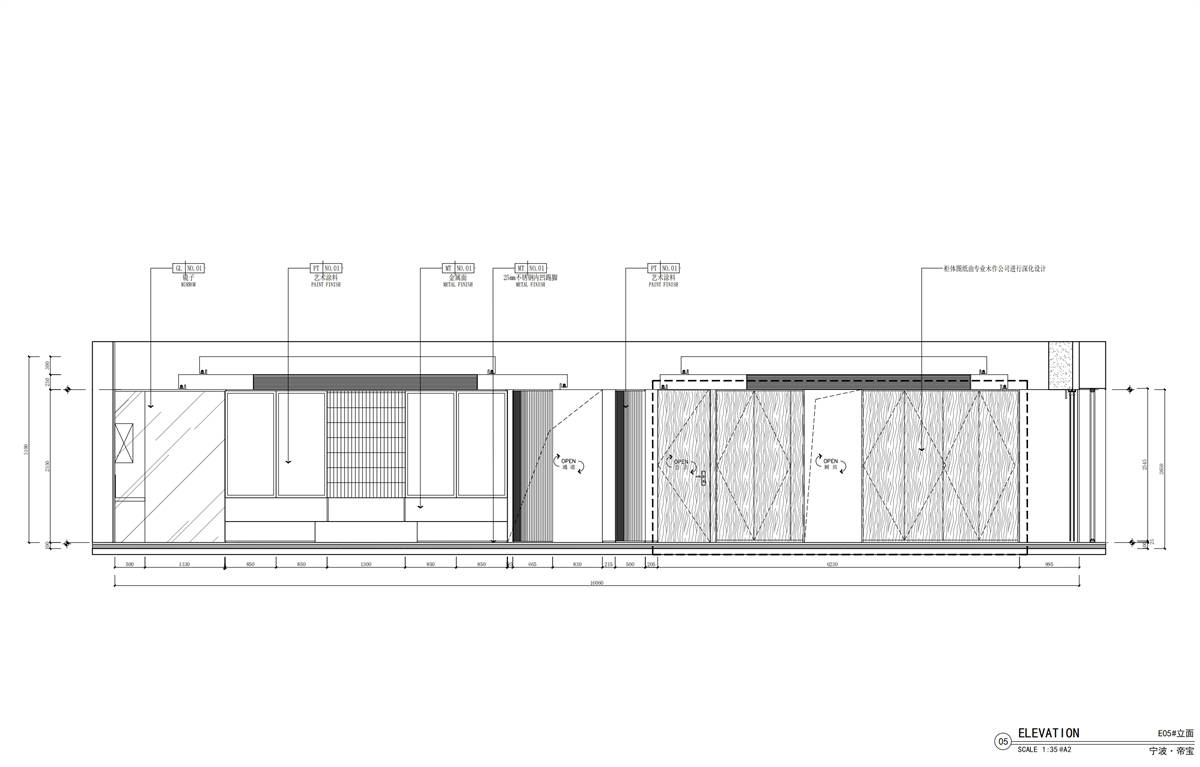
  • 图片
  • 图片
  • 图片
  • 图片
  • 图片
  • 图片
  • 图片
  • 图片
  • 图片
  • 图片
  • 图片
  • 图片
  • 图片
  • 图片
  • 图片
  • 图片
  • 图片
  • 图片
  • 图片
  • 图片
  • 图片
  • 图片
  • 图片
  • 图片
  • 图片
  • 图片
  • 图片
  • 图片
  • 图片
  • 图片
  • 图片
  • 图片
  • 图片
  • 图片
  • 图片
  • 图片
  • 图片
  • 图片
  • 图片
  • 图片
  • 图片
  • 图片
  • 图片
  • 图片
  • 图片
  • 图片
  • 图片
  • 图片
  • 图片
  • 图片
  • 图片
  • 图片
  • 图片
  • 图片
  • 图片
  • 图片
  • 图片
  • 图片
  • 图片
  • 上一个 下一个
    2024第八届金腾奖 私宅(独居)丨私宅(多人居)丨餐饮丨酒店丨办公丨商业丨公共丨公益丨人物丨NEW100 jintengAWARD(小金_金腾奖组委会) 广州市海珠区琶洲大道68号华新中心21楼
    金腾奖视频号 金腾奖小红书号 监制:刘译遥
    统筹:张俊媚
    运营:赖钰炼 曹凯月 刘芳棋 小金
    新媒体:王贝贝 严洁 张文一
    技术:黄天佑 丁德昌
    最终解释权归金腾奖主办方所有