云著
作品详情
  • Details of the work 标题横线
    头像或者logo
    图片 界识设计
    城市:厦门
    公司:界识设计
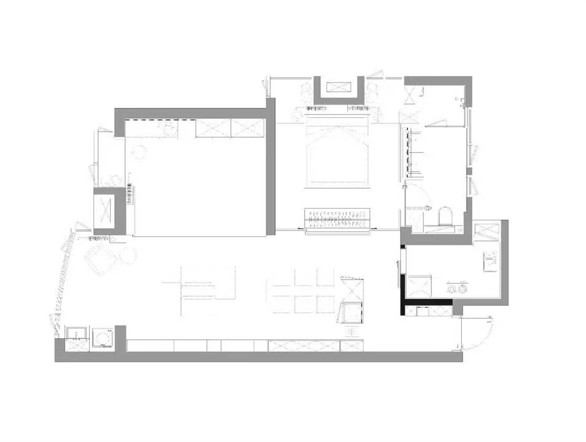
    参赛作品: 云著
    空间类型:公寓(150㎡以下)
    个人/公司简介:
    界识设计是一间位于厦门的新锐设计机构,创立于2019年,致力于打破设计的边界,对话人文、艺术与城市等多元体系,营造具有识别度的当代空间。
    设计说明 | Design Instruction
  • 套房是由一处隔挡遮蔽的玄关,依稀若隐若现室内的环境。木饰面的隔挡和暖黄色的鞋柜灯光,将人的思绪从繁杂中抽离,进入一个温馨安逸的氛围。 业主喜好收藏,家中挂画、手办、香氛等摆件,都是业主游历四方带回来的“旅行回忆”,每间物品都有一个属于自己的故事。设计师根据此,将客厅墙面设置成整面的艺术展览架,以供物品的摆放和展示,使人看见即被带入美好的回忆中。 卧室空间中大多采用开放式,不设门窗,唯一在卧室设置了平开门,根据所需开合,增添交互感。 卧室的设计回避了传统的模式,将身心疗愈放在首位。卧室整体塑造既像一个“树洞”,又像一节通往梦幻世界的“车厢”。传统床头边没有布置床头柜,而是以较矮的榻榻米式,保留了两片玻璃的透光性,两束光的洒落更赋予了空间静谧温馨的气氛。
  • 图片
  • 图片
  • 图片
  • 图片
  • 图片
  • 图片
  • 图片
  • 图片
  • 图片
  • 图片
  • 图片
  • 图片
  • 图片
  • 上一个 下一个
    2024第八届金腾奖 私宅(独居)丨私宅(多人居)丨餐饮丨酒店丨办公丨商业丨公共丨公益丨人物丨NEW100 jintengAWARD(小金_金腾奖组委会) 广州市海珠区琶洲大道68号华新中心21楼
    金腾奖视频号 金腾奖小红书号 监制:刘译遥
    统筹:张俊媚
    运营:赖钰炼 曹凯月 刘芳棋 小金
    新媒体:王贝贝 严洁 张文一
    技术:黄天佑 丁德昌
    最终解释权归金腾奖主办方所有