陈曦作品
作品详情
  • Details of the work 标题横线
    头像或者logo
    图片 陈曦
    城市:焦作市
    公司:
    参赛作品: 陈曦作品
    空间类型:公寓(150㎡以下)
    个人/公司简介:
    从业18年,室内设计师,三级注册照明设计师,现任安提拉设计咨询有限公司主案设计师
    设计说明 | Design Instruction
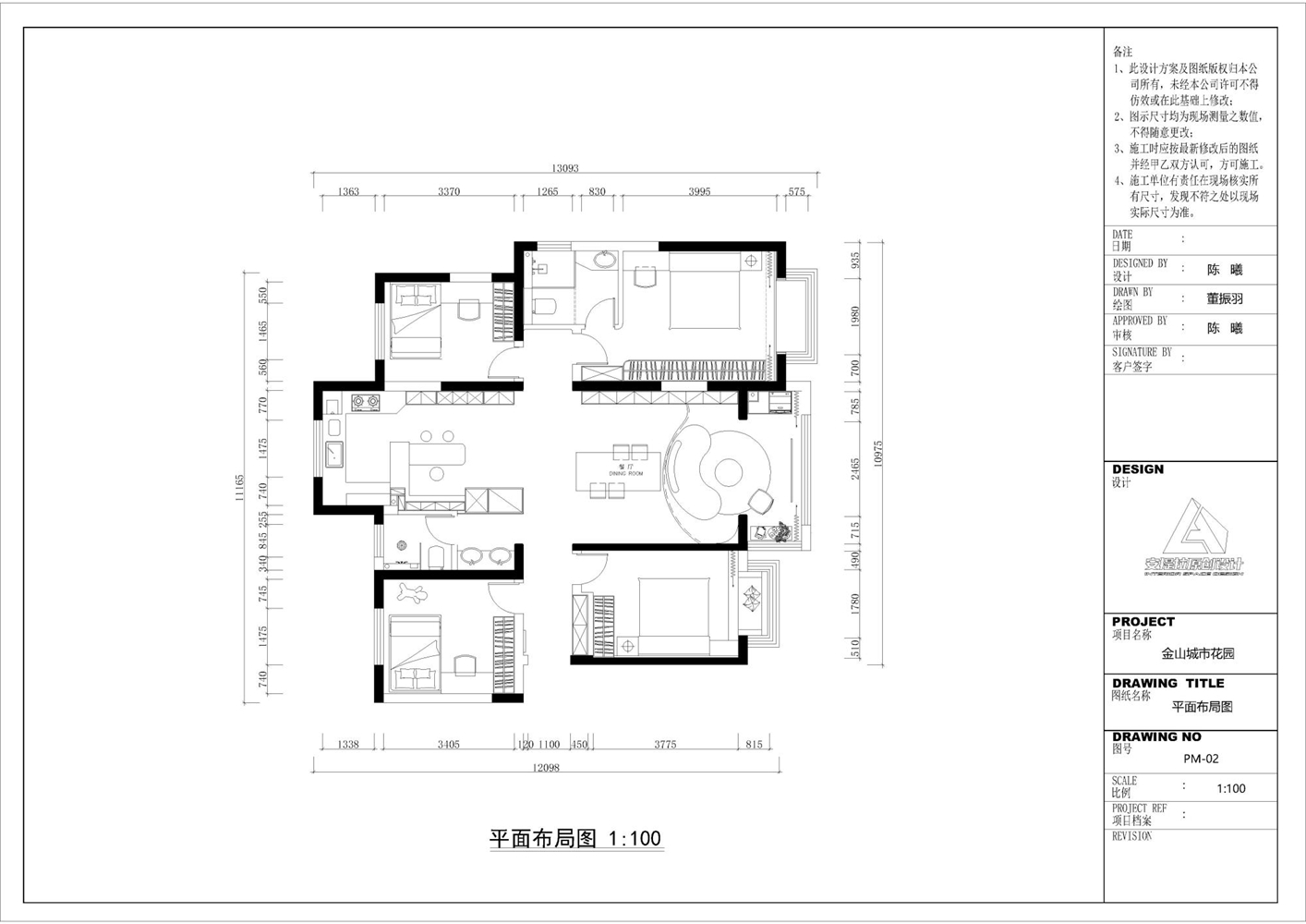
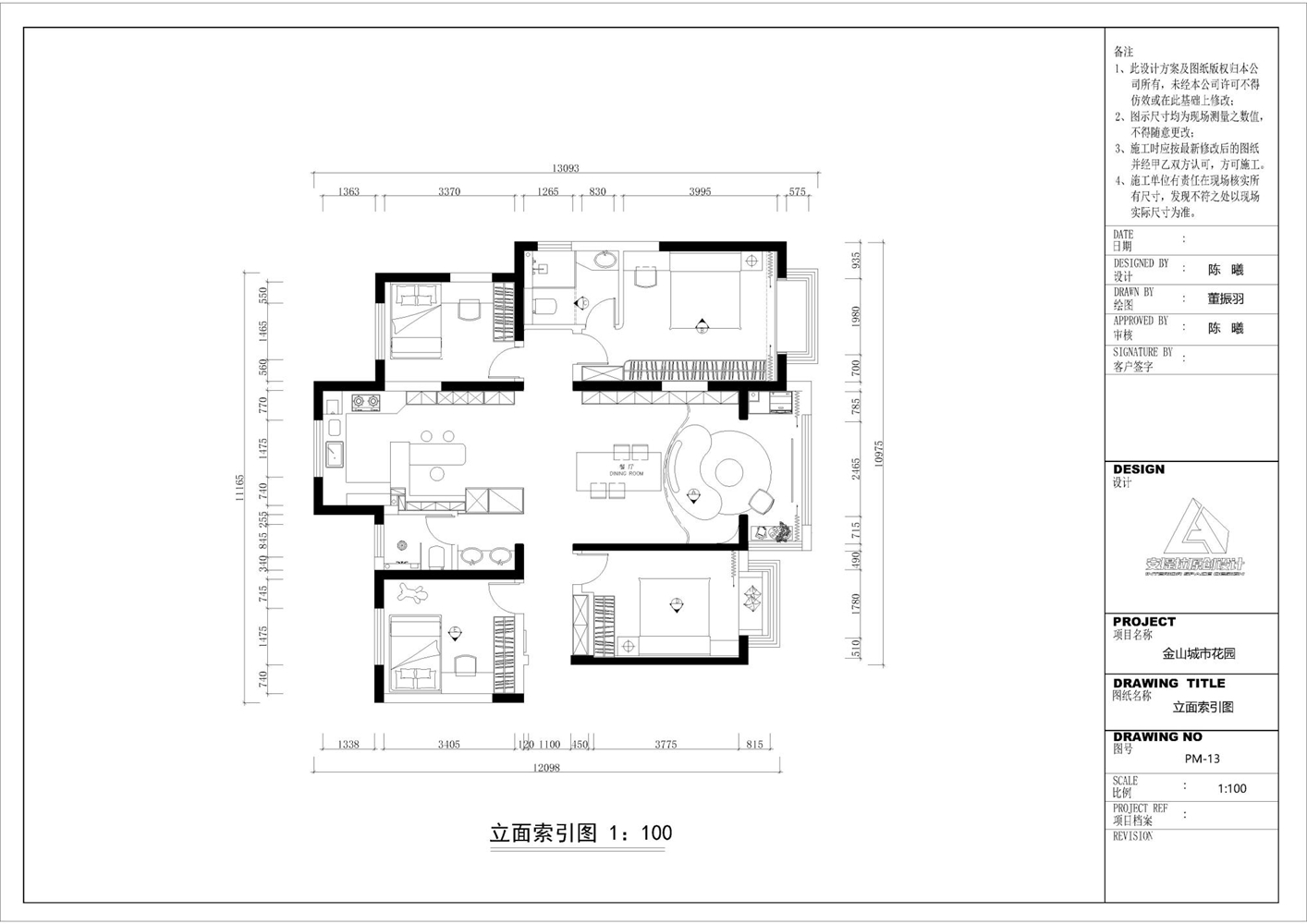
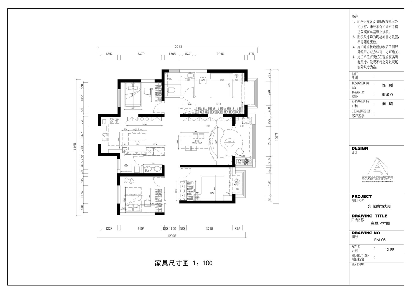
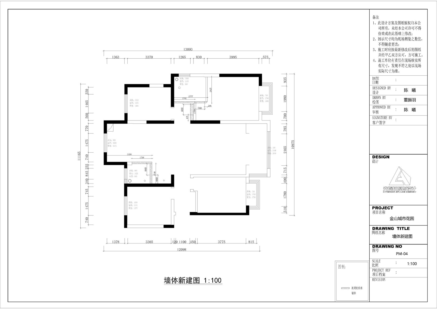
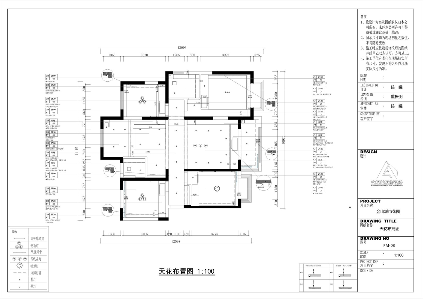
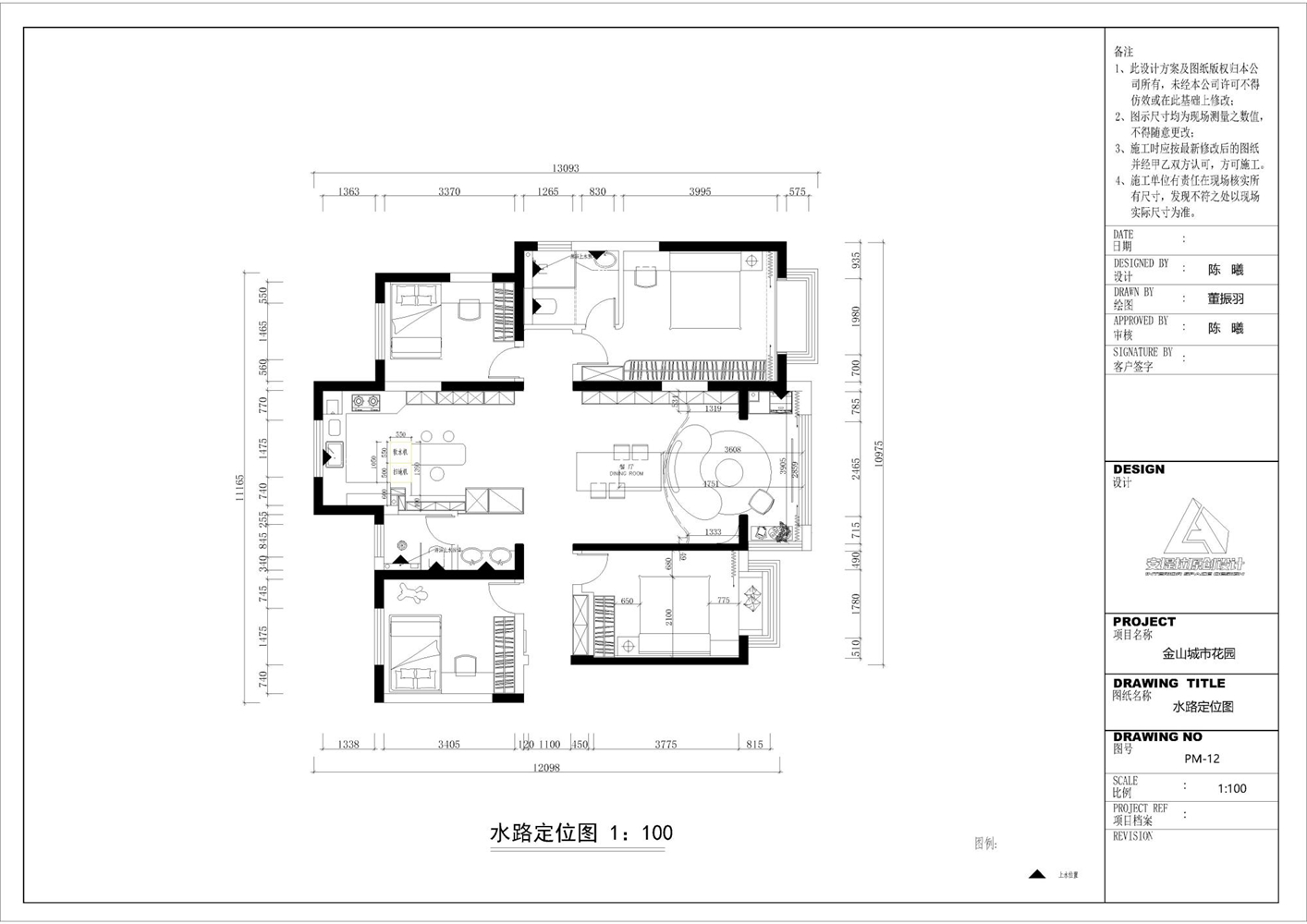
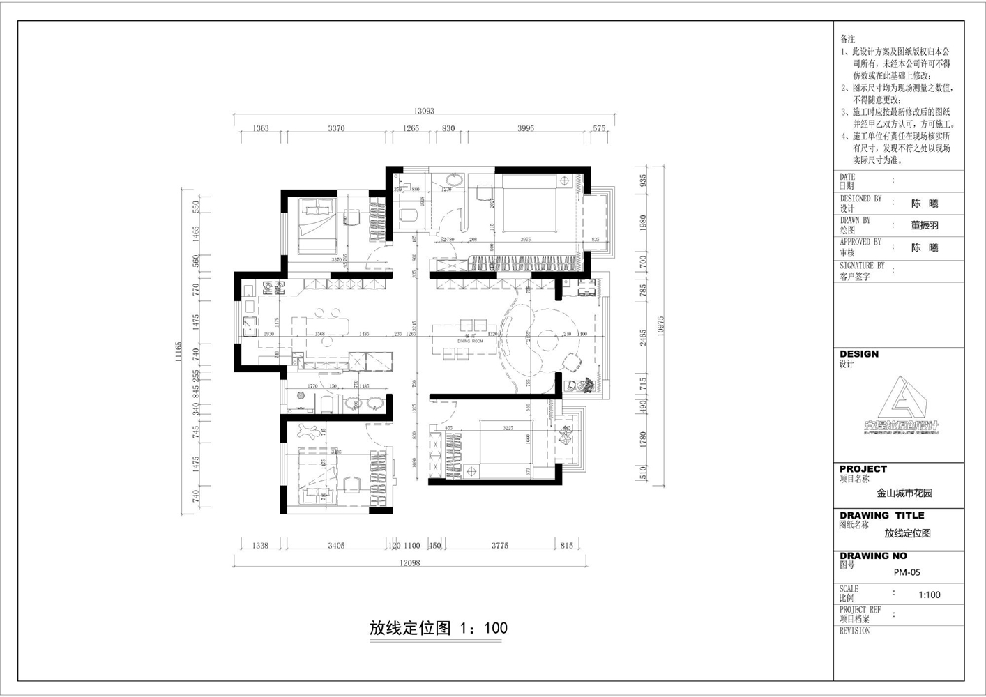
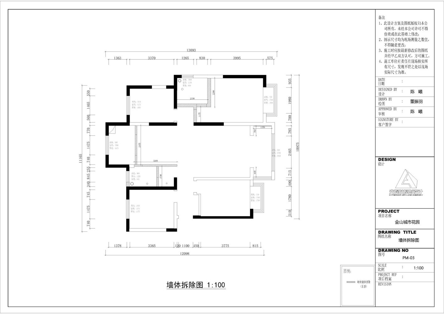
  • 此项目为150平米四室两厅住宅项目,项目位于焦作市郑二街与天河北路,是一个双校区的小区。常住人数为六人,35岁夫妻带7岁哥哥与4岁妹妹,还有爷爷和奶奶,是一间需要三代人居住的房屋,但是房屋面积紧凑,业主对平时的生活场景使用的要求很高,所以空间上必须做到每一寸都要合理使用。本案设计风格为现代极简,色彩以白色与浅米色为主,配合原木色的地板与地台使得整体色系温暖柔和,在点缀黑色的玻璃金属柜门,黑色极窄门套线与黑色内嵌金属踢脚线,犹如在一张白纸上进行钢笔 速写,使得空间层次分明。在收纳方面,把主卧卫生间进行横向压缩,更改主卧门的位置在床尾增加整 墙衣柜,拆除客卫干区墙面借助墙厚20厘米的尺寸来补充冰箱的嵌入柜,使得中西厨的功能更加完洗切炒的点位,蒸箱、烤箱、洗碗机、冰箱、扫地机器人、直饮机、软净水器等全部融入了有限的空间之内。另外还延申出了一个操作小吧台,在此处单独配置了水盆与洗杯器,让喜欢咖啡的女业主惊喜不 学习空间,我们大胆的做了去客厅化的设计由于老虑两个孩子日常把客厅与阳台做了重新分配虽然阳台两边的承重墙没办法拆除,但对于我们设计师来说并无大碍,我们通过倒弧边处理,另外在侧墙角用建筑的手法做了一个圆弧与圆球解构主义的处理。让阳台的两个称重墙不在那样的突兀。延申出阳台的弧形地台区域成为了我们新的起居空间,平时能欣赏落地窗外的美景,也可以拉上窗帘,放下投影幕布,打开PS5,成为爸爸与孩子的游戏天地或是夫妻两人的家庭影院。两米二长的实木长桌则兼顾了孩子学习,夫妻办公,全家就餐的多场景变化。把设计融入生活,在满足功能需求的基础上让“设计的美学”滋养着三代人的每一天。
  • 图片
  • 图片
  • 图片
  • 图片
  • 图片
  • 图片
  • 图片
  • 图片
  • 图片
  • 图片
  • 图片
  • 图片
  • 图片
  • 图片
  • 图片
  • 图片
  • 图片
  • 图片
  • 图片
  • 图片
  • 图片
  • 图片
  • 图片
  • 图片
  • 图片
  • 图片
  • 图片
  • 图片
  • 图片
  • 图片
  • 图片
  • 图片
  • 图片
  • 图片
  • 图片
  • 图片
  • 图片
  • 图片
  • 图片
  • 图片
  • 图片
  • 图片
  • 图片
  • 图片
  • 图片
  • 图片
  • 图片
  • 图片
  • 图片
  • 图片
  • 图片
  • 图片
  • 图片
  • 图片
  • 图片
  • 图片
  • 图片
  • 图片
  • 上一个 下一个
    2024第八届金腾奖 私宅(独居)丨私宅(多人居)丨餐饮丨酒店丨办公丨商业丨公共丨公益丨人物丨NEW100 jintengAWARD(小金_金腾奖组委会) 广州市海珠区琶洲大道68号华新中心21楼
    金腾奖视频号 金腾奖小红书号 监制:刘译遥
    统筹:张俊媚
    运营:赖钰炼 曹凯月 刘芳棋 小金
    新媒体:王贝贝 严洁 张文一
    技术:黄天佑 丁德昌
    最终解释权归金腾奖主办方所有