Autumn Fields
作品详情
  • Details of the work 标题横线
    头像或者logo
    图片 木梵设计 ARENA场所特约推荐
    城市:上海
    公司:木梵设计
    参赛作品: 秋野
    空间类型:别墅
    个人/公司简介:
    木梵空间设计位于上海,成立于2016年,专注于室内空间的设计与改造,设计范围涵盖家装与工装 是一家涉猎于多领域的创意工作室。目前共两个设计团队,可提供传设计、非全案设计以及全案设计三种服务模式。坚持以人为本,如树洞善聆听,如枝干造温暖,如年轮予陪伴, 三木相聚,不甘平凡 。不断突破设计界限,打造质感空间是我们的使命。
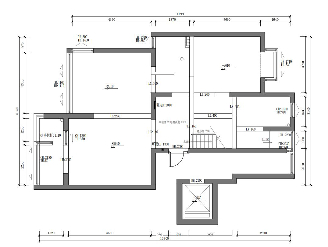
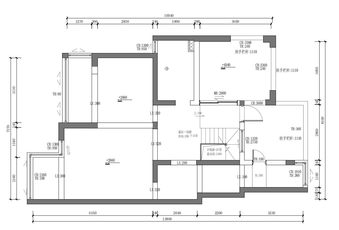
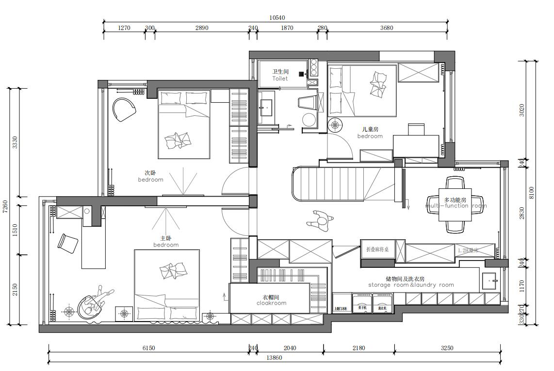
    设计说明 | Design Instruction
  • 在设计这座200㎡的复式老房翻新项目中,我们深入探索了“以人为本”这一核心理念的多重维度,旨在构建一个既承载家族记忆,又引领现代生活方式的理想人居空间。这不仅仅是一次物理空间的改造,更是一场关于情感、文化与功能和谐共生的深刻探索。 实木作为主材贯穿始终,不仅因其温润的质感与自然的纹理能够营造出温馨舒适的居家氛围,更象征着家的稳固与传承。留白艺术在设计中巧妙运用,给予空间呼吸感,让光线与空气自由穿梭,营造出一种宁静致远的禅意境界。这种设计手法不仅增强了空间的层次感,也赋予了居住者更多想象与情感寄托的空间。 在空间秩序上,我们精心规划了动静分区,确保各代人的生活习惯互不干扰,同时设置了灵活多变的互动区域,促进家庭成员间的情感交流。
  • 图片
  • 图片
  • 图片
  • 图片
  • 图片
  • 图片
  • 图片
  • 图片
  • 图片
  • 图片
  • 图片
  • 图片
  • 图片
  • 图片
  • 图片
  • 图片
  • 图片
  • 图片
  • 图片
  • 图片
  • 图片
  • 图片
  • 图片
  • 图片
  • 图片
  • 图片
  • 图片
  • 图片
  • 图片
  • 图片
  • 图片
  • 图片
  • 图片
  • 图片
  • 图片
  • 图片
  • 图片
  • 图片
  • 图片
  • 图片
  • 图片
  • 图片
  • 图片
  • 图片
  • 上一个 下一个
    2024第八届金腾奖 私宅(独居)丨私宅(多人居)丨餐饮丨酒店丨办公丨商业丨公共丨公益丨人物丨NEW100 jintengAWARD(小金_金腾奖组委会) 广州市海珠区琶洲大道68号华新中心21楼
    金腾奖视频号 金腾奖小红书号 监制:刘译遥
    统筹:张俊媚
    运营:赖钰炼 曹凯月 刘芳棋 小金
    新媒体:王贝贝 严洁 张文一
    技术:黄天佑 丁德昌
    最终解释权归金腾奖主办方所有