The Shell that Listens to Stories
作品详情
  • Details of the work 标题横线
    头像或者logo
    图片 木梵设计 ARENA场所特约推荐
    城市:上海
    公司:木梵设计
    参赛作品: 听故事的螺
    空间类型:别墅
    个人/公司简介:
    木梵空间设计位于上海,成立于2016年,专注于室内空间的设计与改造,设计范围涵盖家装与工装 是一家涉猎于多领域的创意工作室。目前共两个设计团队,可提供传设计、非全案设计以及全案设计三种服务模式。坚持以人为本,如树洞善聆听,如枝干造温暖,如年轮予陪伴, 三木相聚,不甘平凡 。不断突破设计界限,打造质感空间是我们的使命。
    设计说明 | Design Instruction
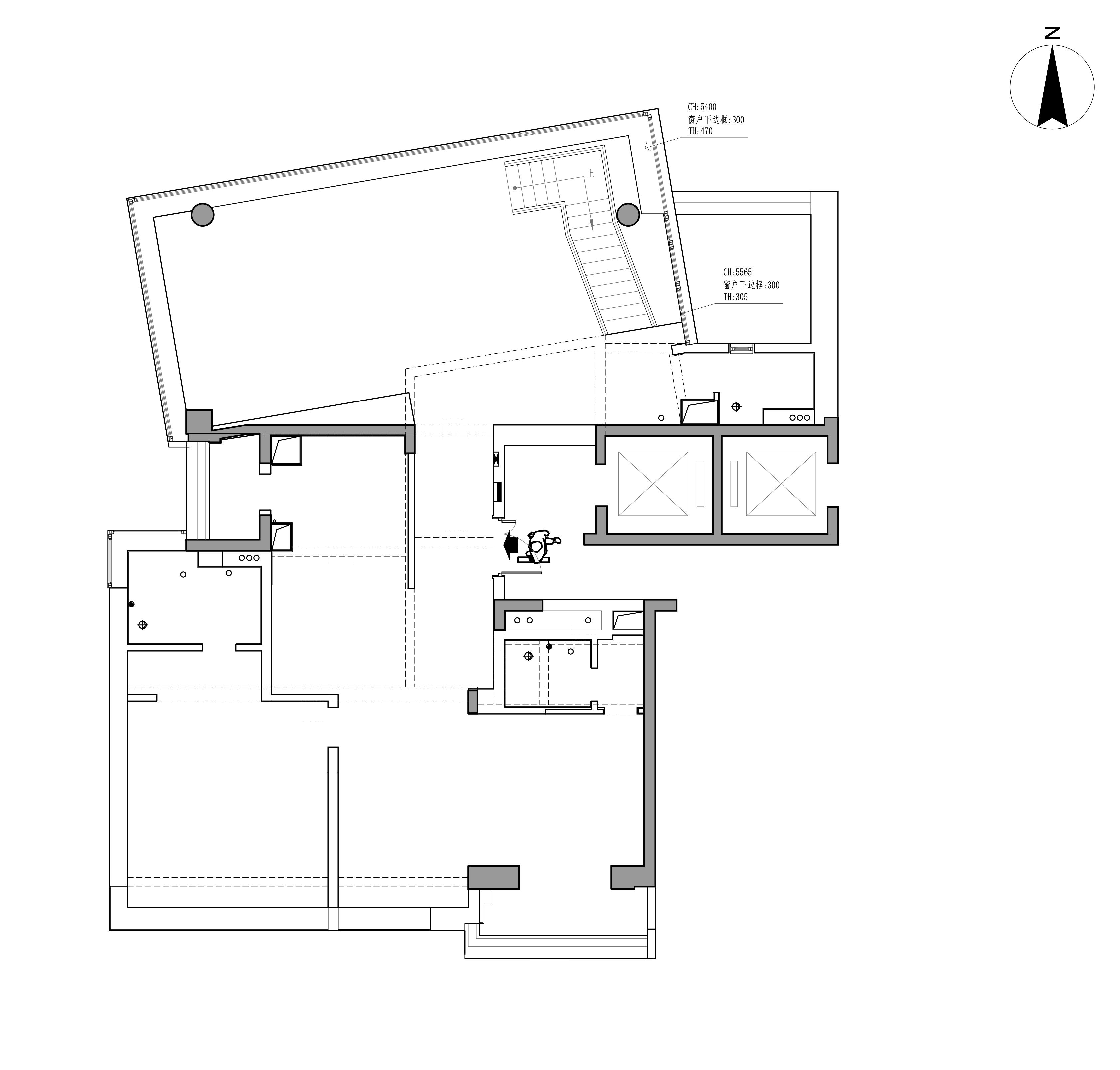
  • 这次的项目位于黄埔江边的顶层复式,平时主要是业主夫妻和一双儿女居住。结合房子景观和自然光线效果,考虑居住者和空间的关系,打造一个开放互通的空间。旋转楼梯宛如一个螺成为家的组成部分,以流畅的线条将分散的空间连接,构成完整体。 一楼是一个超大的挑空区,三面是窗,采光和景观极佳。但是窗户下有一圈高300的边框,考虑到观景的舒适度,将客厅区域的地面抬高与边框齐平,同时利用高度差打造下沉式餐厅。整个空间布局可以和窗外景色有更密切的交织,从而形成自然的结合。调整了楼梯的位置和造型后,东面的窗景更完整,没有遮挡物,空间更显开阔。以室外景作为室内空间的装饰,业主关于【家】的回忆不再局限于四方房子。 为了让空间更显干净和通透,我们选择了大量的白作为空间的底色,白色顶部、白色柱子和白色墙面不仅增强了空间的明亮感,还凸显了现代简约风格的特点。与此同时,木地板的自然质感和色调的温暖与白色调相得益彰,为整个空间增添了一份舒适和温暖的氛围。 楼梯的价值不仅在于其功能性,我们更希望它能成为家里的艺术装置,它以其独特的形状和流转的线条成为整个空间的亮点。从二楼往下看,线条从下婉转至上,它如沉睡的螺,成为家里的一部分,安静聆听家里的点滴。
  • 图片
  • 图片
  • 图片
  • 图片
  • 图片
  • 图片
  • 图片
  • 图片
  • 图片
  • 图片
  • 上一个 下一个
    2024第八届金腾奖 私宅(独居)丨私宅(多人居)丨餐饮丨酒店丨办公丨商业丨公共丨公益丨人物丨NEW100 jintengAWARD(小金_金腾奖组委会) 广州市海珠区琶洲大道68号华新中心21楼
    金腾奖视频号 金腾奖小红书号 监制:刘译遥
    统筹:张俊媚
    运营:赖钰炼 曹凯月 刘芳棋 小金
    新媒体:王贝贝 严洁 张文一
    技术:黄天佑 丁德昌
    最终解释权归金腾奖主办方所有