居住者的精神
作品详情
  • Details of the work 标题横线
    头像或者logo
    图片 河南集物所建筑设计有限公司
    城市:郑州
    公司:河南集物所建筑设计有限公司
    参赛作品: 居住者的精神
    空间类型:别墅
    个人/公司简介:
    河南集物所建筑设计研究室是一家立足于河南郑州的独立设计工作室,于2020年成立,集合空间设计、平面设计、项目施工等服务,服务于全国项目。我们以解决客户需求和问题为点,以客户和自身彼此间共频为力,去深度打磨空间的本质,去创造出属于我们感动的氛围和精神体验,致力于极致的美学感受。
    设计说明 | Design Instruction
  • 项目位于河南郑州,一个配套齐全的现代化片区,委托人希望这个虽然仅仅只居住几年的房子,也希望这是一个带着情绪在的一个空间,设计的核心点是最大化空间和光线植入,创造一个平静的环境,形成一个有趣的、有思绪在的一个场所。 原始空间不高,且横梁更低,优势在于窗外,借此希望能够营造自然和空间的垂直关系。空间和人之间,总是有很多种的不可能和相互的妥协,太多的司空见惯,充斥着表层的满目琳琅,对于视觉的直接感受,我们失去了再去解读的力量,那么,我们该如何面对这个空间,如何营造健康的氛围,称之为健康,是希望在内部是以一种精神内欲的方式来表达我们能够被感知到的最真实的情感。 一系列开放的、充满光线的空间定义,借助“板块”的垂体结构,加以演变和重组,以视觉的错层关系和空间的“收”“放”,去适度剖析此空间真正的咬合。通过创造连续性和视觉对话感的动线,表达着通幽和边界,看似牺牲面积,实则让空间更加幻化而自由,也让空间有更多的可能性。
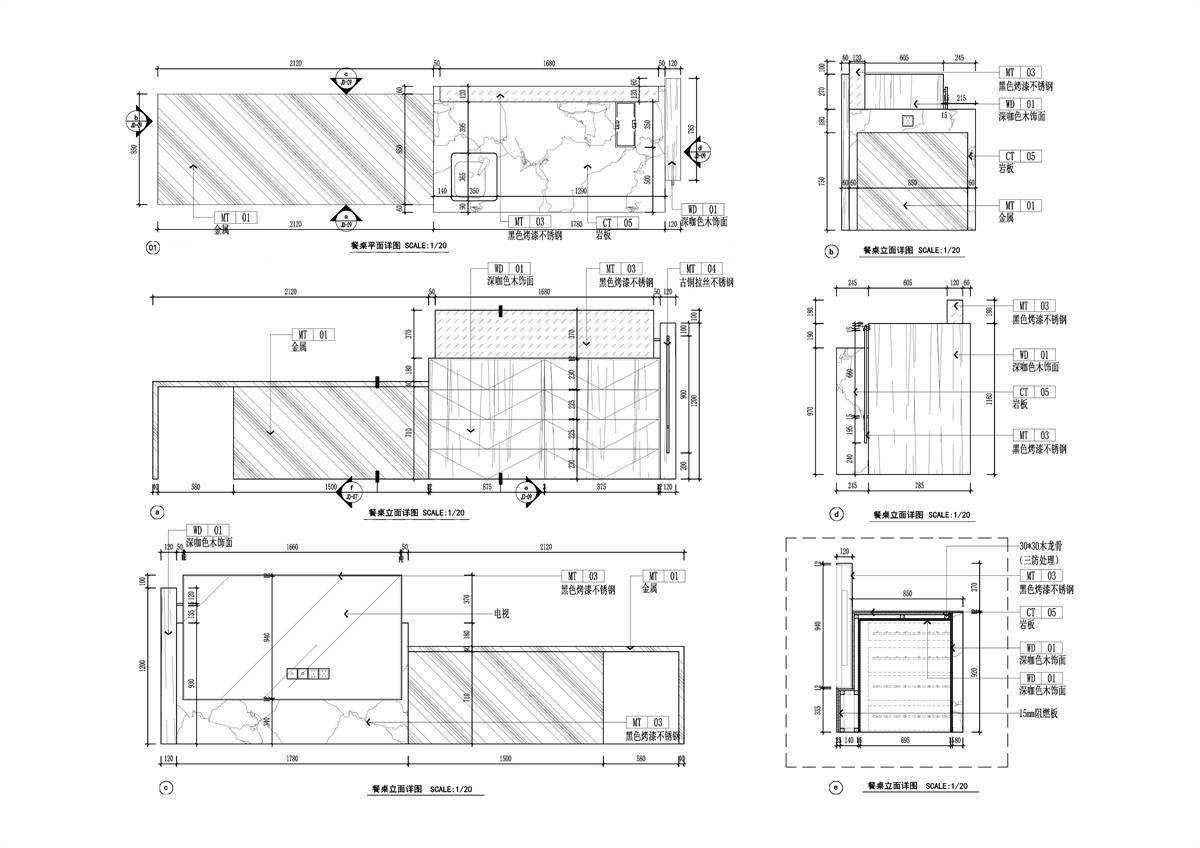
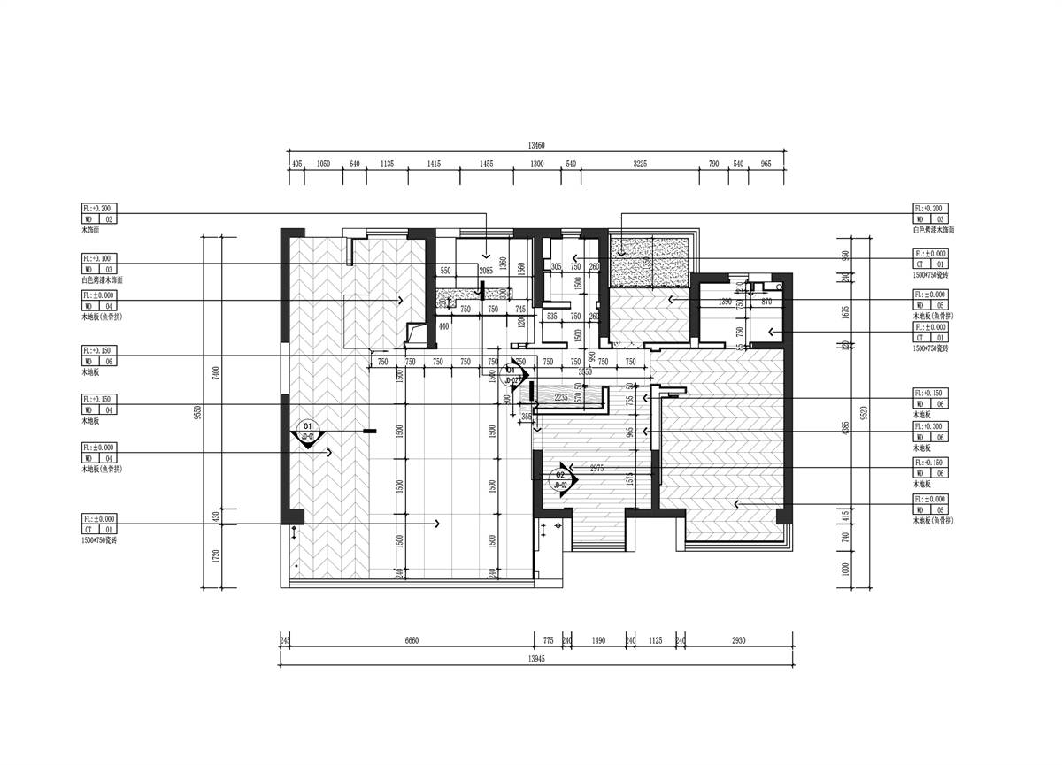
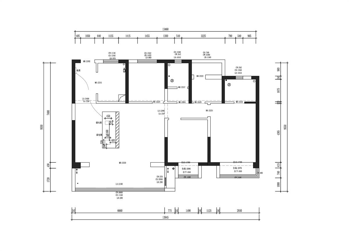
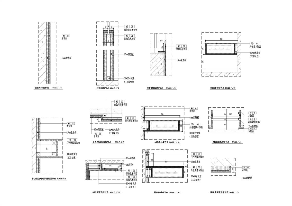
  • 图片
  • 图片
  • 图片
  • 图片
  • 图片
  • 图片
  • 图片
  • 图片
  • 图片
  • 图片
  • 图片
  • 图片
  • 图片
  • 图片
  • 图片
  • 图片
  • 图片
  • 图片
  • 图片
  • 图片
  • 图片
  • 图片
  • 图片
  • 图片
  • 图片
  • 图片
  • 图片
  • 图片
  • 图片
  • 图片
  • 图片
  • 图片
  • 图片
  • 图片
  • 图片
  • 图片
  • 图片
  • 图片
  • 上一个 下一个
    2024第八届金腾奖 私宅(独居)丨私宅(多人居)丨餐饮丨酒店丨办公丨商业丨公共丨公益丨人物丨NEW100 jintengAWARD(小金_金腾奖组委会) 广州市海珠区琶洲大道68号华新中心21楼
    金腾奖视频号 金腾奖小红书号 监制:刘译遥
    统筹:张俊媚
    运营:赖钰炼 曹凯月 刘芳棋 小金
    新媒体:王贝贝 严洁 张文一
    技术:黄天佑 丁德昌
    最终解释权归金腾奖主办方所有