Quiet
作品详情
  • Details of the work 标题横线
    头像或者logo
    图片 孙荣
    城市:上海
    公司: 独立设计师
    参赛作品: 静
    空间类型:别墅
    个人/公司简介:
    上海注册室内高级设计师 毕业于意大利米兰理工大学 进修于清华大学美术学院设计说明 中欧国际设计文化协会CEIDA设计奖
    设计说明 | Design Instruction
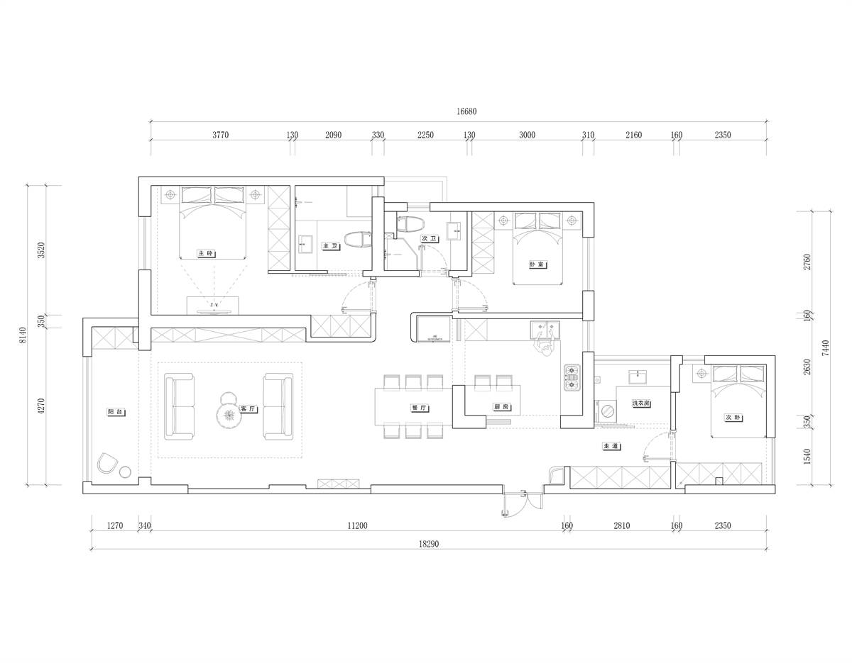
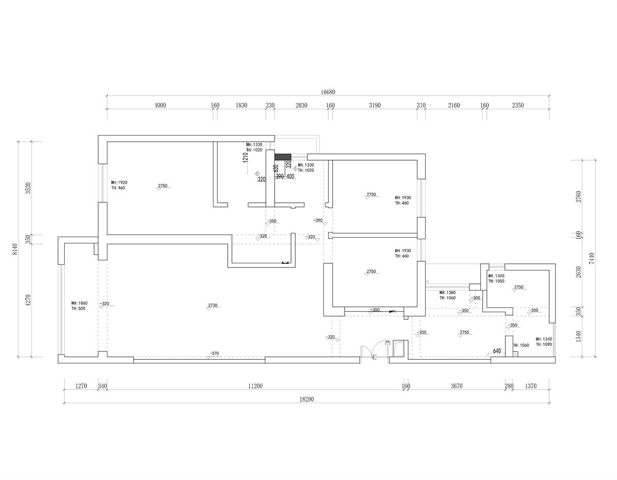
  • 本案位于上海寸土寸金的黄埔区老西门区域,业主从小在此区域长大,对这里的感情尤为喜爱。业主的妈妈经我手装修的房子有几套了,那么爱女的婚房顺理成章由我实现。房子是平层,结构属于老式划分,厅小隔断多,视线弱光感差,所以我们大胆划分,颠覆老格局,从视觉、光感出发,将灵动的空间带给业主,业主一看便欣喜若狂,亟待出品。客厅与阳台打通,采用最佳的保温隔热系统的落地窗来实现采光,Low-E玻璃的加持,保护内部的私密。入门处设置玄关功能,同时将洗衣区、收纳柜都设计其侧边,业主甚是喜欢。整体多采用艺术漆,色调中性搭配温润尔雅。业主整体特别满意。
  • 图片
  • 图片
  • 图片
  • 图片
  • 图片
  • 图片
  • 图片
  • 图片
  • 图片
  • 图片
  • 图片
  • 图片
  • 上一个 下一个
    2024第八届金腾奖 私宅(独居)丨私宅(多人居)丨餐饮丨酒店丨办公丨商业丨公共丨公益丨人物丨NEW100 jintengAWARD(小金_金腾奖组委会) 广州市海珠区琶洲大道68号华新中心21楼
    金腾奖视频号 金腾奖小红书号 监制:刘译遥
    统筹:张俊媚
    运营:赖钰炼 曹凯月 刘芳棋 小金
    新媒体:王贝贝 严洁 张文一
    技术:黄天佑 丁德昌
    最终解释权归金腾奖主办方所有