Extraordinary for love
作品详情
  • Details of the work 标题横线
    头像或者logo
    图片 夏美清 ARENA场所特约推荐
    城市:上海
    公司:
    参赛作品: 为爱不凡
    空间类型:别墅
    个人/公司简介:
    学历: 2009年毕业于哈尔滨职业技术学院环境艺术设计专业 2019年进修于南京大学应用心理学专业 工作履历: 2009-2012年在杭州从事室内设计,后转战上海. 2012-2013上海青杉装饰集团工程有限公司 2014-2018上海知贤装饰工程有限公司(2017年知贤装饰被聚通集团收购) 2019-2020.7上海境远设计装饰工程有限公司 2020.8至今,一直为独立设计师。 座右铭: 以诚待人,用心做事。 设计宣言: 让心中有爱,使空间有情
    设计说明 | Design Instruction
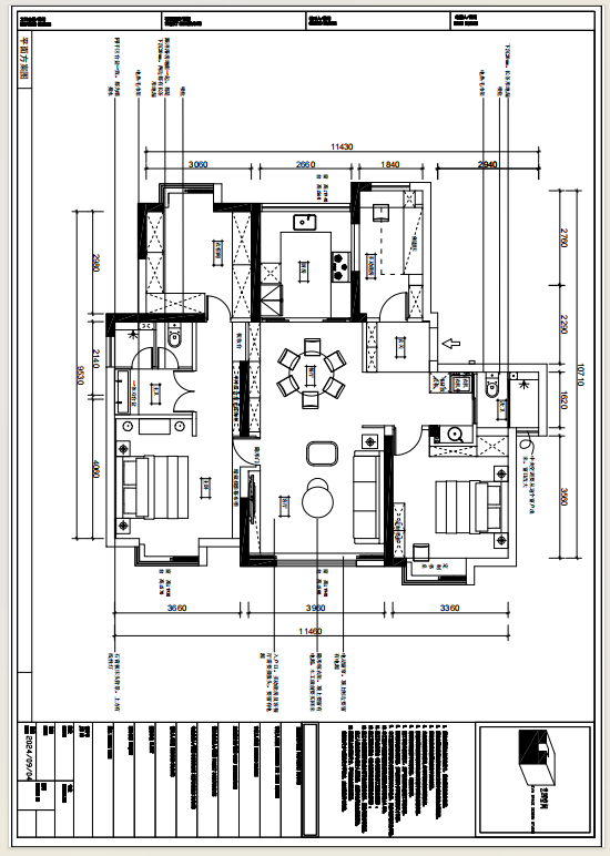
  • 首先,进屋动线做了大调整,从原来的三房,变为了四房。 厨房变成了采光极佳的U型厨房,拥有大大的衣帽间,梳妆台、包括双开门主卫。 女主是个服装摄影师,对于光线特别在意,也不能接受太过凌乱的空间。所以客厅部分直接扩展到之前的生活阳台,这样坐在客厅中看向窗外的视野可以更加开阔,常规晾晒衣服的凌乱问题直接交给了洗衣机,烘干机。 主卧是个大套间,首先打开隐藏在客厅与餐厅背景中的隐形门,映入眼帘的是主卧床背景,流畅柔和的线形灯加同色系深色墙面,无主灯的悬浮顶。 其次往右边行走时,有一整排的化妆品柜加梳妆台,化妆品柜对面就是我们的双开门主卫。 最后再往前走,就是我们大大的衣帽间啦,一个房间的衣帽柜,里面装着的只是衣服吗?不,装着的是男主对女主最深情的爱吖~
  • 图片
  • 图片
  • 图片
  • 图片
  • 图片
  • 图片
  • 图片
  • 图片
  • 图片
  • 图片
  • 图片
  • 图片
  • 图片
  • 图片
  • 图片
  • 图片
  • 图片
  • 图片
  • 图片
  • 图片
  • 图片
  • 图片
  • 图片
  • 图片
  • 图片
  • 图片
  • 图片
  • 图片
  • 图片
  • 上一个 下一个
    2024第八届金腾奖 私宅(独居)丨私宅(多人居)丨餐饮丨酒店丨办公丨商业丨公共丨公益丨人物丨NEW100 jintengAWARD(小金_金腾奖组委会) 广州市海珠区琶洲大道68号华新中心21楼
    金腾奖视频号 金腾奖小红书号 监制:刘译遥
    统筹:张俊媚
    运营:赖钰炼 曹凯月 刘芳棋 小金
    新媒体:王贝贝 严洁 张文一
    技术:黄天佑 丁德昌
    最终解释权归金腾奖主办方所有