与其·不如
作品详情
  • Details of the work 标题横线
    头像或者logo
    图片 史鹏巍天马设计 ARENA场所特约推荐
    城市:上海
    公司: 史鹏巍天马设计
    参赛作品: 与其·不如
    空间类型:别墅
    个人/公司简介:
    天马工作室, 一家拼命把施工做好的私宅设计公司,“快乐装修”的倡导者和实践者。 我们提供包括设计、施工、材料、软装、安装、空气治理、预算控制、第三方管理等拎包入住的整体解决方案,承诺相伴到底。 从每一个家庭的具体需求出发、善待每一个家庭的生活方式、实现每一个家庭的生活愿景,这些坚持都在更好地让我们守住“坚持有温度的设计”这一初心。 为实现设计效果落地、全面把控施工品质,我们建立自有施工部门,并制定标准化服务规范、管理全套施工流程,杜绝发包/分包,坚持签订闭口合同,为业主提供省心的高品质专属施工服务。 我们坚持,做有温度的设计,做有温度的施工,让家更有温度,让业主体会快乐装修。 快乐,是我们的核心竞争力。
    设计说明 | Design Instruction
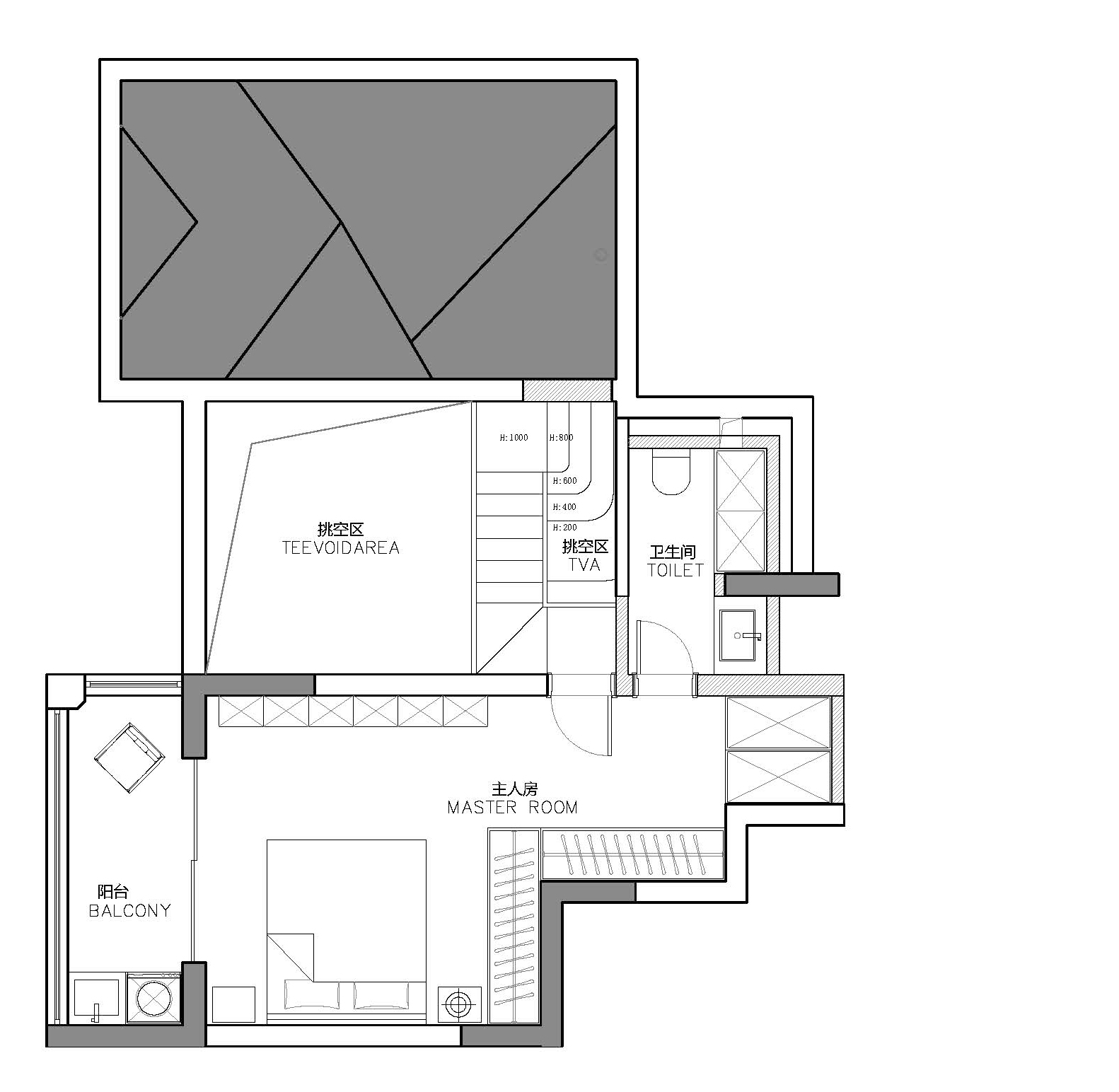
  • 本案位于上海闵行,05年的老楼盘,常住一家4口,业主夫妻加一对活泼的男宝,综合分析一家人的居住需求后,我们将采光通风与视线交流定位为本案改造的主要基调。 综合分析业主需求,以及房屋现场实际情况,我们将这150m²的顶层复式,改造成了更适合一家四口居住的格局,楼下主要是客餐厅和两间儿童房,主卧则移至楼上。经过改造,已经看不出房屋原始格局的影子。 1.打开一间南向次卧,将其与部分阁楼结合,成为新的高挑空餐厅,并与客厅合并,形成完全通透的公区大通厅。仅九十多平米的一层空间,就配制出了一套别墅大宅才有的组合视野。 2.厨房门换向后,前往新餐厅的动线更为直接流畅。 3.原餐厅成为完整的多功能区,集超大储物、临时休憩、休闲运动观景为一体。
  • 图片
  • 图片
  • 图片
  • 图片
  • 图片
  • 图片
  • 图片
  • 图片
  • 图片
  • 图片
  • 图片
  • 图片
  • 图片
  • 图片
  • 图片
  • 图片
  • 图片
  • 图片
  • 图片
  • 图片
  • 图片
  • 图片
  • 图片
  • 图片
  • 图片
  • 图片
  • 图片
  • 图片
  • 图片
  • 图片
  • 图片
  • 图片
  • 图片
  • 图片
  • 图片
  • 图片
  • 图片
  • 图片
  • 图片
  • 图片
  • 图片
  • 图片
  • 图片
  • 图片
  • 上一个 下一个
    2024第八届金腾奖 私宅(独居)丨私宅(多人居)丨餐饮丨酒店丨办公丨商业丨公共丨公益丨人物丨NEW100 jintengAWARD(小金_金腾奖组委会) 广州市海珠区琶洲大道68号华新中心21楼
    金腾奖视频号 金腾奖小红书号 监制:刘译遥
    统筹:张俊媚
    运营:赖钰炼 曹凯月 刘芳棋 小金
    新媒体:王贝贝 严洁 张文一
    技术:黄天佑 丁德昌
    最终解释权归金腾奖主办方所有