Afternoon time
作品详情
  • Details of the work 标题横线
    头像或者logo
    图片 赵兵
    城市:南京
    公司: 独立设计师
    参赛作品: 午后漫时光
    空间类型:公寓(150㎡以下)
    个人/公司简介:
    2010年从事室内设计至今 获奖经历: 中国设计星城市之星、中国设计星全国三十六强/广东设计周组委会、大金内装设计大赛“全国优秀奖”、“拾朝杯”住宅设计大赛“金牌设计人物奖”、“拾朝杯”双年展“住宅设计住宅实景银奖”、芒果奖“中国别墅优胜奖”、40UNDER40中国南京杰出设计青年、红创奖年度设计空间奖、红创奖年度精品佳作奖 主要设计作品:《净界》《愉快的周末》《第二青春》《绿色的大卫》《净·界》《愉快的周末》
    设计说明 | Design Instruction
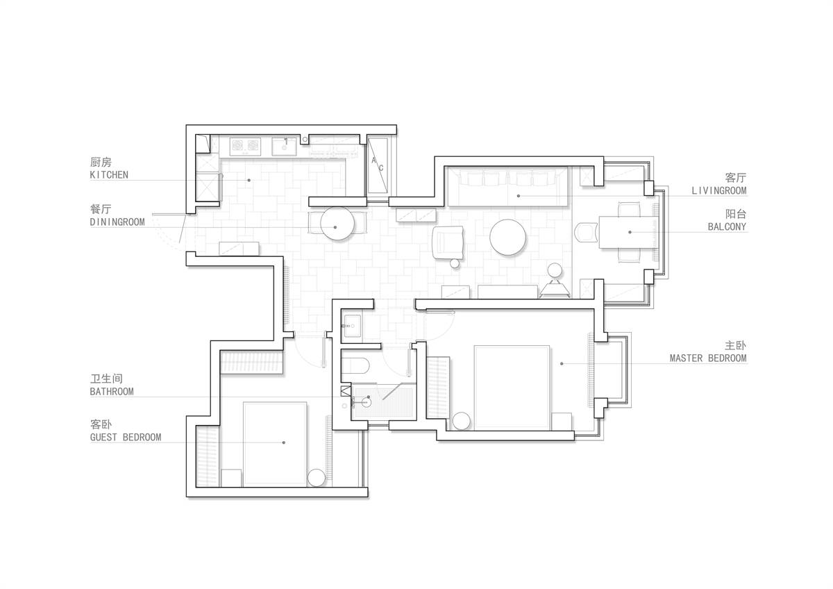
  • 在时间的流转中,总有一些温柔的瞬间让人念念不忘。那些斑驳的墙壁,泛黄的书页,复古的家居摆件,仿佛带着旧时光的温度,悄然融入我们的生活。每一件物品都承载岁月的故事,每一个角落都充满了文艺的气息。 “三分钟读完一本书”“五分钟看完一部电影”这或许是现代人的一种常态,于是,快,成了这个时代的主旋律,在忘我的忙碌中,有人渐渐地迷失了自己,空虚的精神世界,疲惫不堪的躯体压垮了人们对生活的热情与希望。在这片喧嚣中,我们开始怀念过去那份从容和温柔。慢生活,不仅仅是一种生活方式,更是一种对抗焦虑的态度,它让我们停下脚步,重拾那些被遗忘的美好,在平凡的日常中寻找真正的宁静与满足。 本案位于江苏南京,设计师赵兵以简练的设计手法,质朴的材料,统一的色调进行表达,在设计的每一笔中,捕捉岁月的沉淀,重塑生活的艺术。在这里,复古的美学与艺术的灵感交织,让每个细节都讲述着一个关于岁月与美的故事。 胡桃木的温润质感与素色乳胶漆的清雅相得益彰,营造出一种独特的复古氛围。脚下的的仿古地砖采用了古堡拼的形式,为空间增添了历史的厚重感,每一步都是对时光的回溯。 闲暇的午后,阳光透过窗户,洒在画架上,空气中都弥漫着淡淡的木质香气。赤脚踩在温润的地砖上,感受着岁月静好,这一刻便可以静下来,享受艺术创作的乐趣。 客厅与阳台的部分进行了打通处理,增大了客厅的视觉面积,由于阳台两侧存在支撑承重的墙体无法完全拆除,设计师便依托于墙体做了两组对称的书柜,并将其完全隐藏在其中。开放的书格既可以用来摆放书籍也可以配合的装饰陈设进行点缀,做到了既实用又美观。 为了尽可能的不影响空间的层高,设计师根据房屋结构将中央空调的内机设备都安装在了边缘部分,在设计上设计师还采用了圆弧的设计手法将阳角部分进行了柔化处理,经过处理后的吊顶更加和谐柔和,也使得客厅阳台两部分空间更加融合。 仔细看一下地面,暖白色的砖体质感温润,表面做旧纹理自然古朴,不规则的尺寸以及古堡的铺贴方式给整个空间似乎带来了无限的可能,还有部分印有精美纹样的砖块穿插其中,尤为惊艳让人百看不厌,甚是欢喜。 阳台区域的设计是本案的一个独特之处,在设计上摒弃了对传统阳台使用和功能的定义将整个空间爆改成一个集阅读,品茗,书法,办公,会客,娱乐,赏景...等功能于一体的空间,大大提高了空间的利用率,良好的通风采光及室外美好的自然环境也更为适合将其打造成休闲娱乐的多功能空间。 正由于该区域改造后功能丰富,让此区域的使用率大大增加,那么此时收纳也显得尤为重要,设计师在方寸之间在两侧为其增加了两组抽屉式的斗柜,抽屉式的储物形式能够更好更多更合理的收纳些零碎的办公书法物品,台面部分还能放置一些器皿和植物进行点缀。 餐厅选择了同样为胡桃木材质的小圆桌,与厨房和客厅的饰面相互呼应,台面选择了美观易清洁的大理石搭配,因为平常就餐人数并不多,小小的圆桌恰到好处。 餐厅的吊顶也依然十分简洁,没有采用常规的吊灯而是在餐桌上方预埋了射灯进行照明,这样的设计让处于动线边部的餐厅空间弱化了其强烈的空间感,同时又能够很自由的随着需求去调整。 餐桌旁还有部分空余的空间,设计师为其规划了一个可移动的置物架,将这部分空间利用的恰到好处的同时又没有固定其布局及功能,也给日后生活留足了想象空间。 原本厨房的空间并不是很宽裕,设计师便将空间打开,去掉了墙体门窗的阻挡,视野上顿时开阔了许多,同时厨房区域的采光也恰好照亮了入户的暗区。 厨房柜体运用了胡桃木饰面进行装饰,耐油污的同时胡桃木深邃的质感提高了整个空间的感觉,美拉德色系的配色也大大增强了烹饪的乐趣和氛围。 卧室的配色更加干净素雅,没有进行过度的装饰,墙面同样选择了很有质感的艺术漆,在保证了素雅的同时又非常富有层次和肌理感。
  • 图片
  • 图片
  • 图片
  • 图片
  • 图片
  • 图片
  • 图片
  • 图片
  • 图片
  • 图片
  • 图片
  • 图片
  • 图片
  • 图片
  • 图片
  • 图片
  • 图片
  • 图片
  • 图片
  • 图片
  • 图片
  • 图片
  • 图片
  • 图片
  • 图片
  • 图片
  • 图片
  • 图片
  • 图片
  • 图片
  • 图片
  • 图片
  • 图片
  • 图片
  • 图片
  • 图片
  • 上一个 下一个
    2024第八届金腾奖 私宅(独居)丨私宅(多人居)丨餐饮丨酒店丨办公丨商业丨公共丨公益丨人物丨NEW100 jintengAWARD(小金_金腾奖组委会) 广州市海珠区琶洲大道68号华新中心21楼
    金腾奖视频号 金腾奖小红书号 监制:刘译遥
    统筹:张俊媚
    运营:赖钰炼 曹凯月 刘芳棋 小金
    新媒体:王贝贝 严洁 张文一
    技术:黄天佑 丁德昌
    最终解释权归金腾奖主办方所有