Spring Waltz
作品详情
  • Details of the work 标题横线
    头像或者logo
    图片 赵兵
    城市:南京
    公司: 独立设计师
    参赛作品: 春日圆舞曲
    空间类型:公寓(150㎡以下)
    个人/公司简介:
    2010年从事室内设计至今 获奖经历: 中国设计星城市之星、中国设计星全国三十六强/广东设计周组委会、大金内装设计大赛“全国优秀奖”、“拾朝杯”住宅设计大赛“金牌设计人物奖”、“拾朝杯”双年展“住宅设计住宅实景银奖”、芒果奖“中国别墅优胜奖”、40UNDER40中国南京杰出设计青年、红创奖年度设计空间奖、红创奖年度精品佳作奖 主要设计作品:《净界》《愉快的周末》《第二青春》《绿色的大卫》《净·界》《愉快的周末》
    设计说明 | Design Instruction
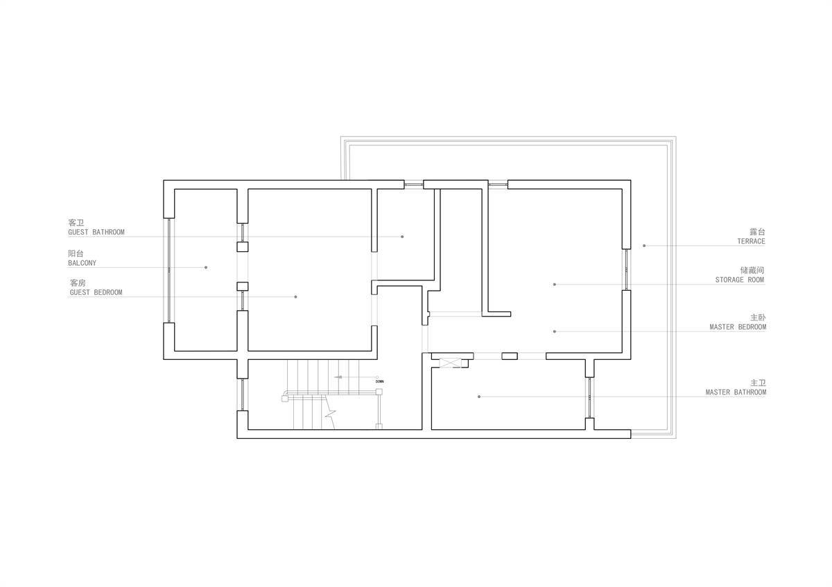
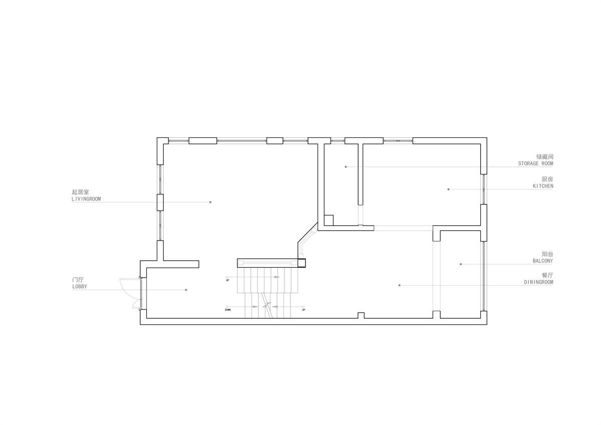
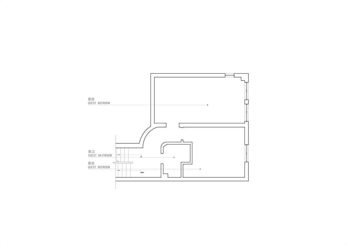
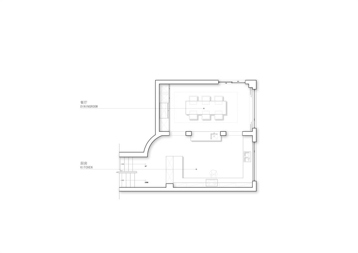
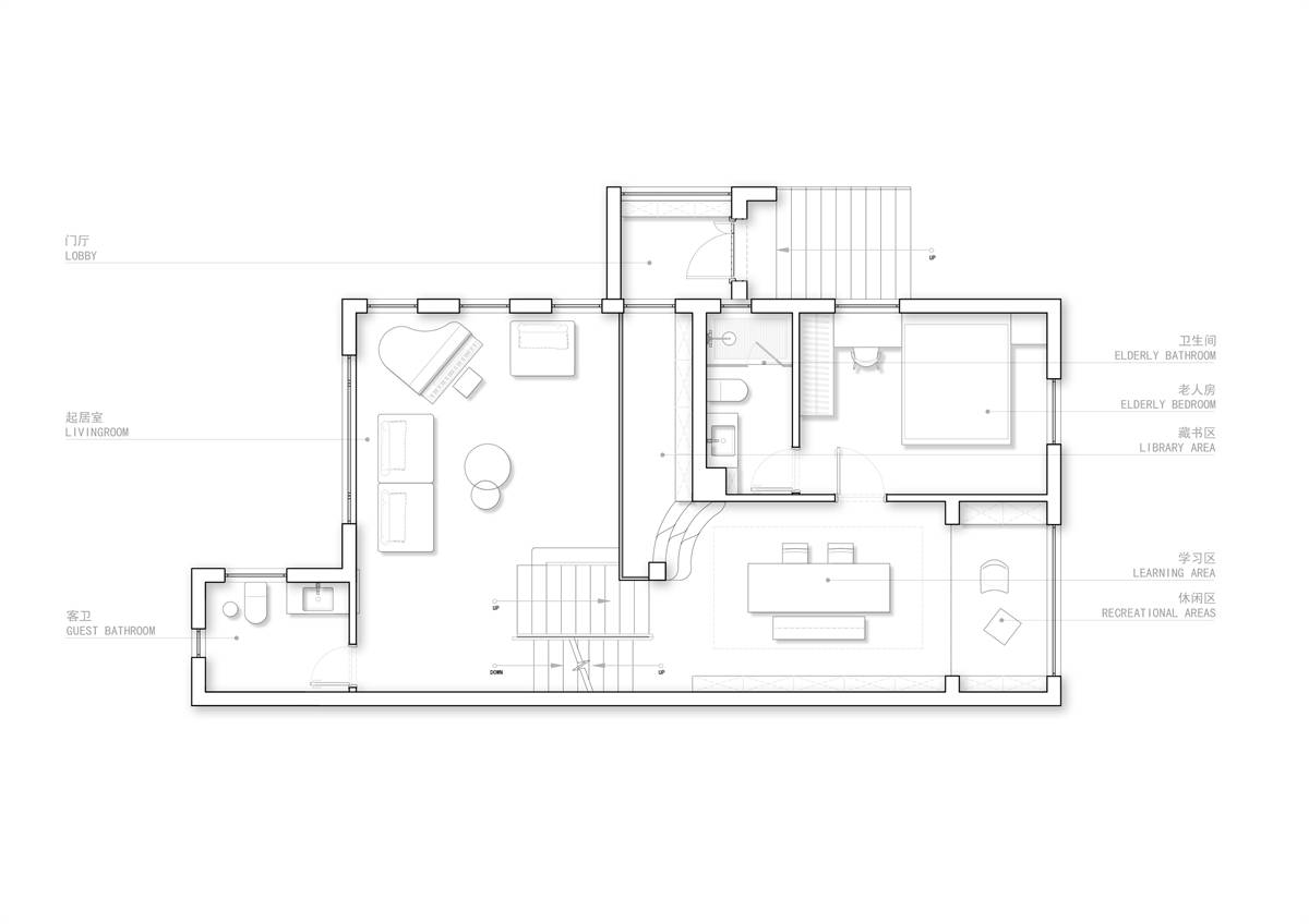
  • “烟笼寒水月笼沙,夜泊秦淮近酒家”《泊秦淮》一诗让许多人初识南京的诗意与美丽。本案正位于江苏南京玛斯兰德别墅区,这里是南京较早开发的高品质欧式别墅区之一。经过十余年的发展,这里已成为南京最宜居的住宅区之一。别墅四周群山环绕,湖水碧波荡漾,居于此处,观云舒云卷,感四季更替,犹如在桃源。 设计师对建筑外观进行了精心调整,重新布局了墙面的窗户。三扇狭长的大窗不仅极大地提升了室内的采光与通透感,其高耸的窗台也无声地彰显出别墅特有的气派和大气。窗外的美景被巧妙地引入室内,仿佛一幅天然的画卷,不仅丰富了空间的视觉层次,也赋予了整个居室独特的装饰性魅力。 为了增加空间的层次感和解决收纳问题,设计师在过道处增设了夹层。休闲区墙面使用了温润的艺术涂料和留白处理,搭配业主喜爱的绿植和艺术挂画,赋予空间独特的情感。地面采用了肌理感丰富的仿古砖,增添了沉稳气息。宽敞的空间让音乐爱好者能愉悦地享受演奏,二层的茶室和会客厅则与之呼应,营造出音乐与交流的和谐氛围。 负一层包括厨房和餐厅,设计师大胆拆解了原有空间,只保留了承重墙体,打通了厨房与餐厅,使空间更为宽敞。减少了墙壁和隔断,提升了视线和动线的流畅性,增强了家庭成员之间的互动,使烹饪时也能与家人或客人轻松交流。设计兼顾了美观与功能,为业主打造了一个既实用又充满现代感的餐厨空间。 厨房设计采用U型与岛台布局,极致利用空间,为业主提供了宽敞的储物与操作区域。设计师从食物的美拉德反应中汲取灵感,运用了当下流行的美拉德色系。红棕色胡桃木饰面柜门,既耐污易清洁,又如艺术装置般装点空间,同时巧妙地分割了区域,赋予厨房独特的层次感与雅致。” 餐厅空间延续了整体设计的韵律,简约中蕴藏着艺术的精髓。暖黄色调仿佛流淌着阳光的余晖,浓郁的艺术气息与自然的诗意交织,让人仿佛置身于梵高的麦田画作中,感受那厚重与热烈的生命律动。在功能设计上,设计师巧妙地将大量收纳空间与嵌入式电器融入其中,让生活的便捷与艺术的隽永在这一方天地中完美契合。 茶室尽头,那巨大的落地窗引入了充盈的自然光,使整个空间浸透着宁静与和谐。一整面墙的柜体设计兼顾了功能与美感,穿插的开放式格局打破了空间的单调,赋予其灵动的韵律。简洁的吊顶,更是为这片净土增添了一丝禅意。午后,阳光透过轻纱摇曳在地面上,勾勒出温柔的时光。‘焚一缕檀香,泡一盏清茶,闻香、品茗、闲谈’,在这里,可以找到心灵的归处,享受着每日最放松的时刻。 靠窗处,设计师为业主营造了一个静谧的休憩与阅读之境。借地台的抬高,巧妙地在空间中勾勒出独立的功能区。屹立于喧嚣城市之中,凭栏远眺,宁静的视野仿佛铺展开一幅悠远的画卷,将心灵引向一片静谧的诗意天地。 步入卧室一股慵懒感不由而生,简约宁静舒适助眠,这是设计师对这个空间设计的初衷。在业主和设计师表达了自己睡眠质量不佳的烦恼后,设计师便十分重视,从整体规划到细节构造,材质,色彩,灯光,陈设,床品等设计师都在一一把关,大大改善了业主睡眠问题的困扰。 开辟出来的一小块临时休息区域,配上富有设计感带有东方元素的陈设,为业主平常小坐,阅读,喝茶都提供了很好的氛围环境,也保证了床品日常的整洁。 儿童房内利用了空间层高的优势,设计师在一个空间内整合了大量功能,超长的书桌临窗而设,大大满足了学习需要,两侧的书柜也互相独立,满足小朋友书籍读物的收纳,从小养成良好的阅读习惯。 临窗的书桌,窗外美景尽收眼底,学习疲乏时眺望远方的翠绿,身心和精神都能得到很好的放松。自然的光线透窗而入也给日常学习提供了健康舒适的照明。 会客厅区域在陈设软装上选择了偏深色系的家具组合以及L 型的沙发更好的营造了一种围合感,不管是家人周末小憩还是朋友来访闲聊都能够拉近彼此之间距离。 墙面原本的异型设计师也很好的保留了,并没有过多的堆砌材料,简单特色的布艺陈设让一切都显得如此自然和谐还带着点异域风情的美感。 卫生间墙地面都选择了耐脏好打理的防水防滑砖,双台盆的设计让每天清晨的洗漱变得不是那么急促和拥挤,墙面采用了肌理感特别丰富的花砖进行装饰,整体古朴大气。 户外花园与欧美乡村风格的建筑外观交融得天衣无缝,园林设计则以古朴简约的材料为主,优雅地衬托出建筑的独特风采。仿佛置身于西方的幽静庄园,清新的自然气息环绕四周。晴朗的日子里,家人们在遮阳伞下闲坐,享受美食,放松心情。每一个角落都散发着悠然的诗意,生活的每一刻都充满了丰富的色彩与宁静的美好。
  • 图片
  • 图片
  • 图片
  • 图片
  • 图片
  • 图片
  • 图片
  • 图片
  • 图片
  • 图片
  • 图片
  • 图片
  • 图片
  • 图片
  • 图片
  • 图片
  • 图片
  • 图片
  • 图片
  • 图片
  • 图片
  • 图片
  • 图片
  • 图片
  • 图片
  • 图片
  • 图片
  • 图片
  • 图片
  • 图片
  • 图片
  • 图片
  • 图片
  • 图片
  • 图片
  • 上一个 下一个
    2024第八届金腾奖 私宅(独居)丨私宅(多人居)丨餐饮丨酒店丨办公丨商业丨公共丨公益丨人物丨NEW100 jintengAWARD(小金_金腾奖组委会) 广州市海珠区琶洲大道68号华新中心21楼
    金腾奖视频号 金腾奖小红书号 监制:刘译遥
    统筹:张俊媚
    运营:赖钰炼 曹凯月 刘芳棋 小金
    新媒体:王贝贝 严洁 张文一
    技术:黄天佑 丁德昌
    最终解释权归金腾奖主办方所有