Luxury is measured, simplicity is extraordinary
作品详情
  • Details of the work 标题横线
    头像或者logo
    图片 宋群
    城市:北京
    公司: 独立设计师
    参赛作品: 奢华有度、简而非凡
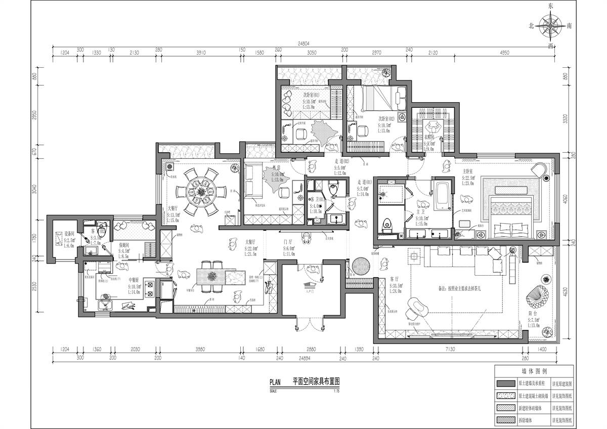
    空间类型:别墅
    个人/公司简介:
    设计理念: 用设计赞美生活,用修行完善生命;奢华的家要有安静的感觉,触动心灵深处的舒适! 因生活而设计,因设计而美好...... 获奖荣誉: (1)2024年日立中央空调第十二届室内设计大赛 北京区域精英设计师奖 (2)2024年全国“洞窝杯整装设计大奖赛” 北京区优秀奖 (3)2023年日立中央空调第十一届室内设计大赛 北京区域精英设计师奖 (4)2023筑巢奖.北京——授予“美好人居创造者”称号 (5)2023网易城市设计精英榜.北京——先锋榜精英设计师奖 (6)2022年日立中央空调第十届室内设计大赛 北京区域精英设计师奖 (7)2021年第五届红鼎创新大赛 全国优秀奖 (8)2021第十七届中国国际建筑装饰及设计艺术博览会(华鼎奖)别墅豪宅空间类 \ 金奖 (9)设计中国2019年度精英人物 (10)2011年第5届全国“为坐而设计”大奖赛 家具设计入围奖
    设计说明 | Design Instruction
  • 一、作品名称:奢华有度、简而非凡 二、设计风格:现代轻奢风格 三、设计理念:用设计赞美生活,用修行完善生命; 奢华的家要有安静的感觉,触动心灵深处的舒适! 四、设计说明: (01)居室常住有男女主人、一儿一女(年龄尚小)、住家保姆、父母偶然来住。 (02)本案例男女主人都是从事艺术类的工作,业主对生活的品质要求很高,表示设计要求低调奢华。 (03)室内空间的墙体几乎都是承重墙,可以做室内空间规划的条件受限,同时业主根据周易风水把每个屋子的空间布置做了条件规划,室内部分墙体经过拆改后,设计师重新考虑起居的生活需求与流畅的生活动线。 (04)本案例在室内装饰材料的选择上力求环保健康第一;照明设计上选用智能互联,全屋智能化方便切换各种场景的智能照明模式;软装设计上选用艺术与个性的墙布和窗帘布艺做搭配,个性的艺术灯吊顶与壁灯做了设计点缀;舒适的中性色彩,搭配着少量的黑白灰色彩,做到色彩统一和均衡。室内空间的部分家具做了设计取舍。室内客厅区没有茶几,因为孩子年龄幼小,空间布置茶几后对孩子的空间活动有局限,去掉茶几后给孩子一个可以自由、流畅的活动空间,最终呈现出一个实用美学的装修案例。 五、设计创意点: 门厅、客厅、餐厅采用了灰色透光混凝土做装饰,孩子们喜欢夜空的繁星,业主也不喜欢过于奢华的岩板和透光奢石做背景墙处理,反而喜欢一些低调中透露一点点奢华的材料。经过多方协调,最后采用透光混凝土做装饰,业主非常喜欢这款材料,而且透光混凝土的照明与智能连接,可以调节亮度根据不同模式的场景自由切换,兼顾了美观性与趣味性。
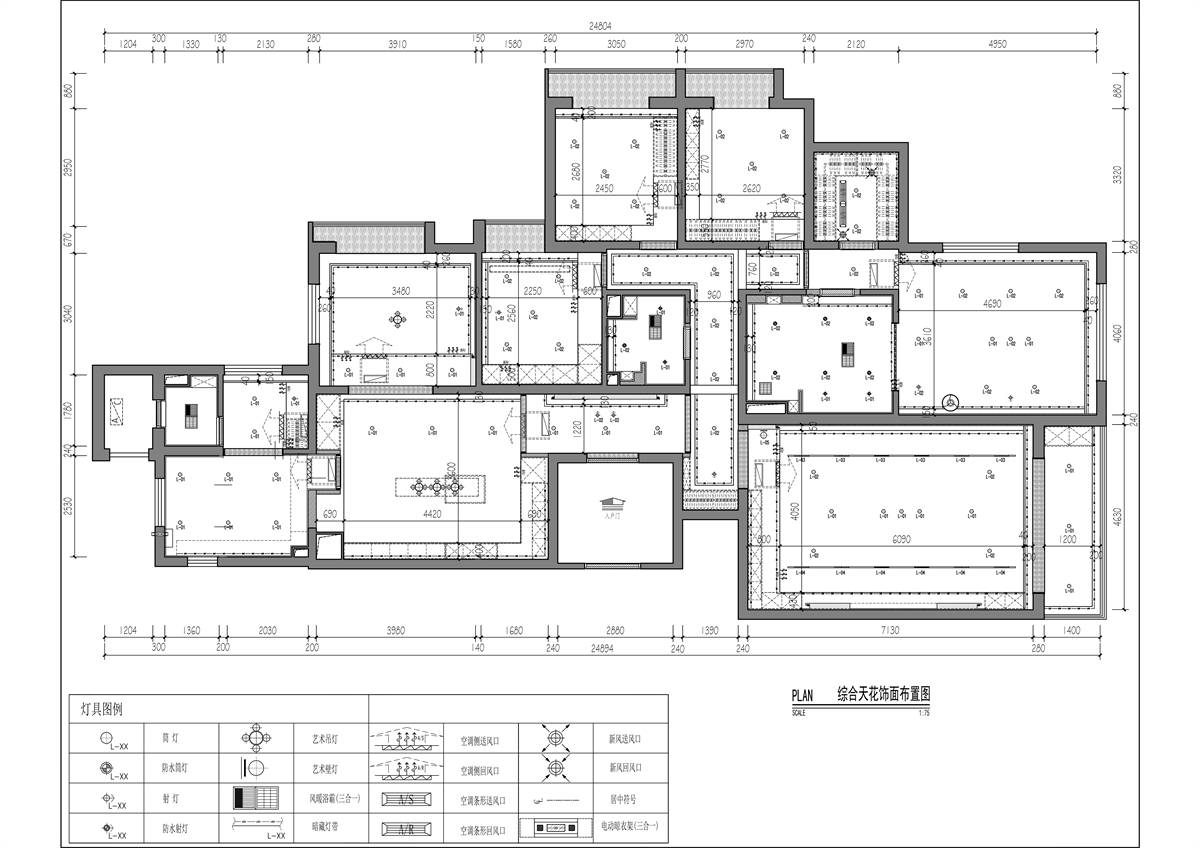
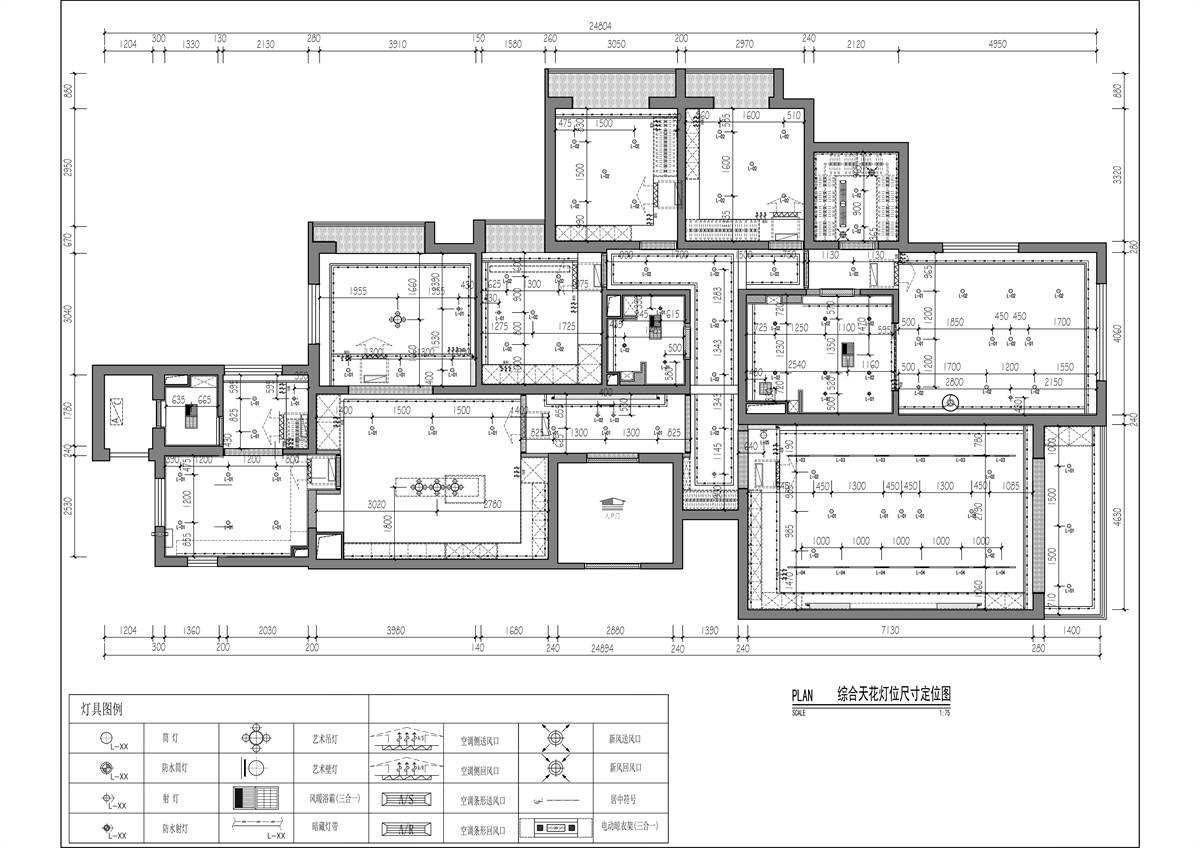
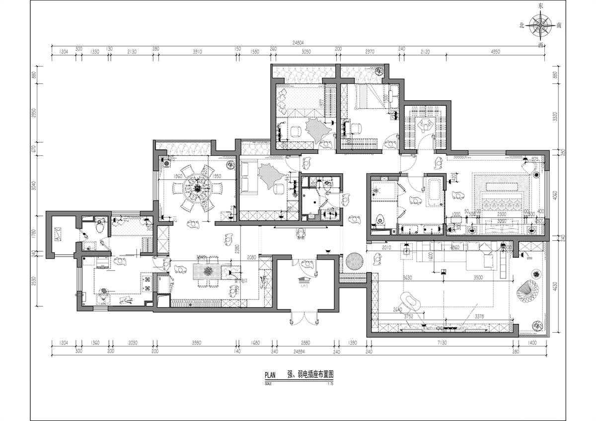
  • 图片
  • 图片
  • 图片
  • 图片
  • 图片
  • 图片
  • 图片
  • 图片
  • 图片
  • 图片
  • 图片
  • 图片
  • 图片
  • 图片
  • 图片
  • 图片
  • 图片
  • 图片
  • 图片
  • 图片
  • 图片
  • 图片
  • 图片
  • 图片
  • 图片
  • 图片
  • 图片
  • 图片
  • 图片
  • 图片
  • 图片
  • 图片
  • 图片
  • 图片
  • 图片
  • 图片
  • 图片
  • 图片
  • 图片
  • 图片
  • 图片
  • 图片
  • 图片
  • 图片
  • 图片
  • 图片
  • 图片
  • 图片
  • 图片
  • 图片
  • 上一个 下一个
    2024第八届金腾奖 私宅(独居)丨私宅(多人居)丨餐饮丨酒店丨办公丨商业丨公共丨公益丨人物丨NEW100 jintengAWARD(小金_金腾奖组委会) 广州市海珠区琶洲大道68号华新中心21楼
    金腾奖视频号 金腾奖小红书号 监制:刘译遥
    统筹:张俊媚
    运营:赖钰炼 曹凯月 刘芳棋 小金
    新媒体:王贝贝 严洁 张文一
    技术:黄天佑 丁德昌
    最终解释权归金腾奖主办方所有