雅集
作品详情
  • Details of the work 标题横线
    头像或者logo
    图片 莫凡设计 瞰设计特约推荐
    城市:天津
    公司:莫凡设计
    参赛作品: 雅集
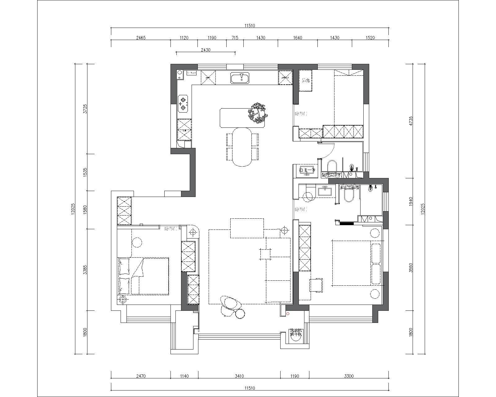
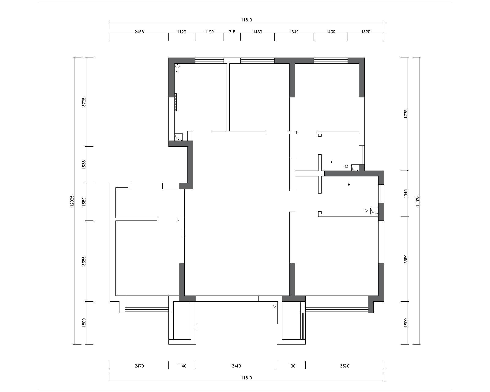
    空间类型:别墅
    个人/公司简介:
    莫凡设计是一家极富有个性的新设计综合体。拥有自成体系的设计理念,充满创意的工作方式。专业为别墅大宅,商业空间提供室内设计,软装设计及施工等一站式服务。公司拥有专业的设计、施工团队,致力于全案落地,高度还原。 莫凡设计以独到的经验和超前的眼光让设计真正服务于人,完善的施工体系、管理体系和监管体系为客户提供全方位保障。
    设计说明 | Design Instruction
  • 将现代极简与自然原木风融合,让这个承载三代人的家充满温馨舒适。化繁为简,令空间显得更加开阔。家是充满幸福感的地方,包含个人喜好融合生活方式的住宅,居住者和空间和谐统一才能融合成一个理想的家。 在有限的空间创造大尺度的视角,白加木满墙收纳柜,转角处的圆润u型展示处理,除了在视觉上扩大空间的体验外,将功能,艺术等元素集合在公共空间内。对于电视使用率不高的家庭,我们把释放空间和功能放在首位。在吊顶上通过体块和弧形加线条,形成简洁有设计感的流畅观感,将幕布嵌入其中。 在兼顾雅致与实用的设计思路下,打造舒适实用的餐厨区。天然夯土质感的岛台连接视觉上悬浮的餐桌,让就餐区看起来更通透。
  • 图片
  • 图片
  • 图片
  • 图片
  • 图片
  • 图片
  • 图片
  • 图片
  • 图片
  • 图片
  • 图片
  • 上一个 下一个
    2024第八届金腾奖 私宅(独居)丨私宅(多人居)丨餐饮丨酒店丨办公丨商业丨公共丨公益丨人物丨NEW100 jintengAWARD(小金_金腾奖组委会) 广州市海珠区琶洲大道68号华新中心21楼
    金腾奖视频号 金腾奖小红书号 监制:刘译遥
    统筹:张俊媚
    运营:赖钰炼 曹凯月 刘芳棋 小金
    新媒体:王贝贝 严洁 张文一
    技术:黄天佑 丁德昌
    最终解释权归金腾奖主办方所有