皎月光
作品详情
  • Details of the work 标题横线
    头像或者logo
    图片 上海岳立创意设计有限公司 ARENA场所特约推荐
    城市:上海
    公司: 上海岳立创意设计有限公司
    参赛作品: 皎月光
    空间类型:公寓(150㎡以下)
    个人/公司简介:
    上海岳立创意设计有限公司是一家具有国际视野的多元化设计工作室,专注于营销与设计领域,提供室内设计、软装整合与陈列、产品设计、等多元化服务。致力为客户塑造精致持久的个性形象,提升客户的美誉度甚至市场竞争力。 设计师介绍 蔡岳峰 Mike Cai 创意总监 - 室內设计師(Interior Designer) - 室內软装配置師(Decorator, Style) - 摄影師(Photographer) 台北人,毕业于台湾科技大学工业设计学系,曾在HTC ASUS担任工业设计师,2011年担任台北忠泰生活MOT CASA美学顾问,开始进入时尚设计家具、家饰与家居空间美学领域,2013年到上海发展,经历过中国原创家居品牌璞素空间美学顾问以及法国原创家居品Maisondada 空间美学顾问。于2018年创立了YueFuu Design上海设计事务所,擅长运用多元符号,来塑造设计的独特性,结合经营模式探讨创造更有创意与赢利价值的商业空间以及创意住宅等设计,多元并深入的设计整合,为YueFuu Design带来强而有力的基础价值。
    设计说明 | Design Instruction
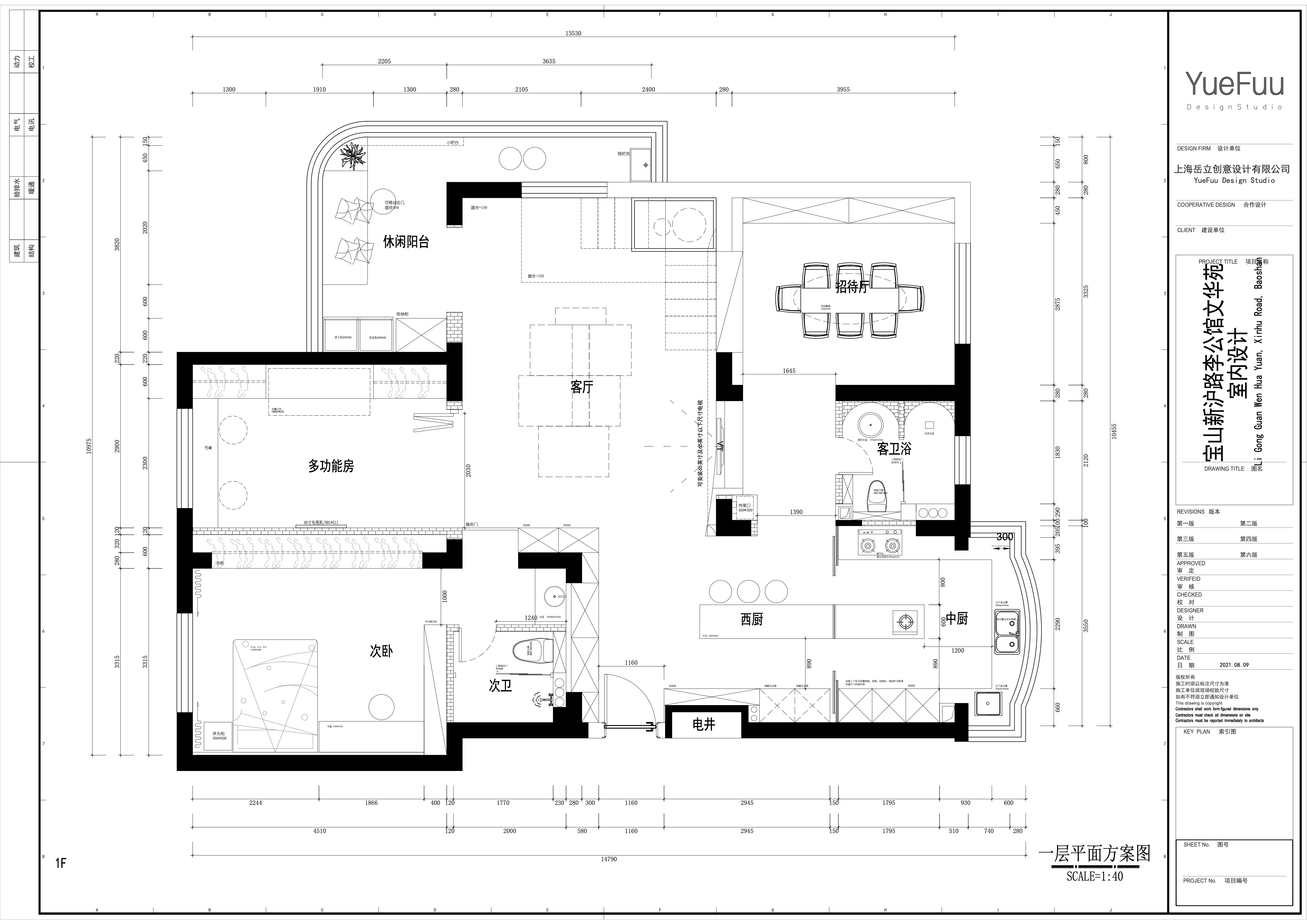
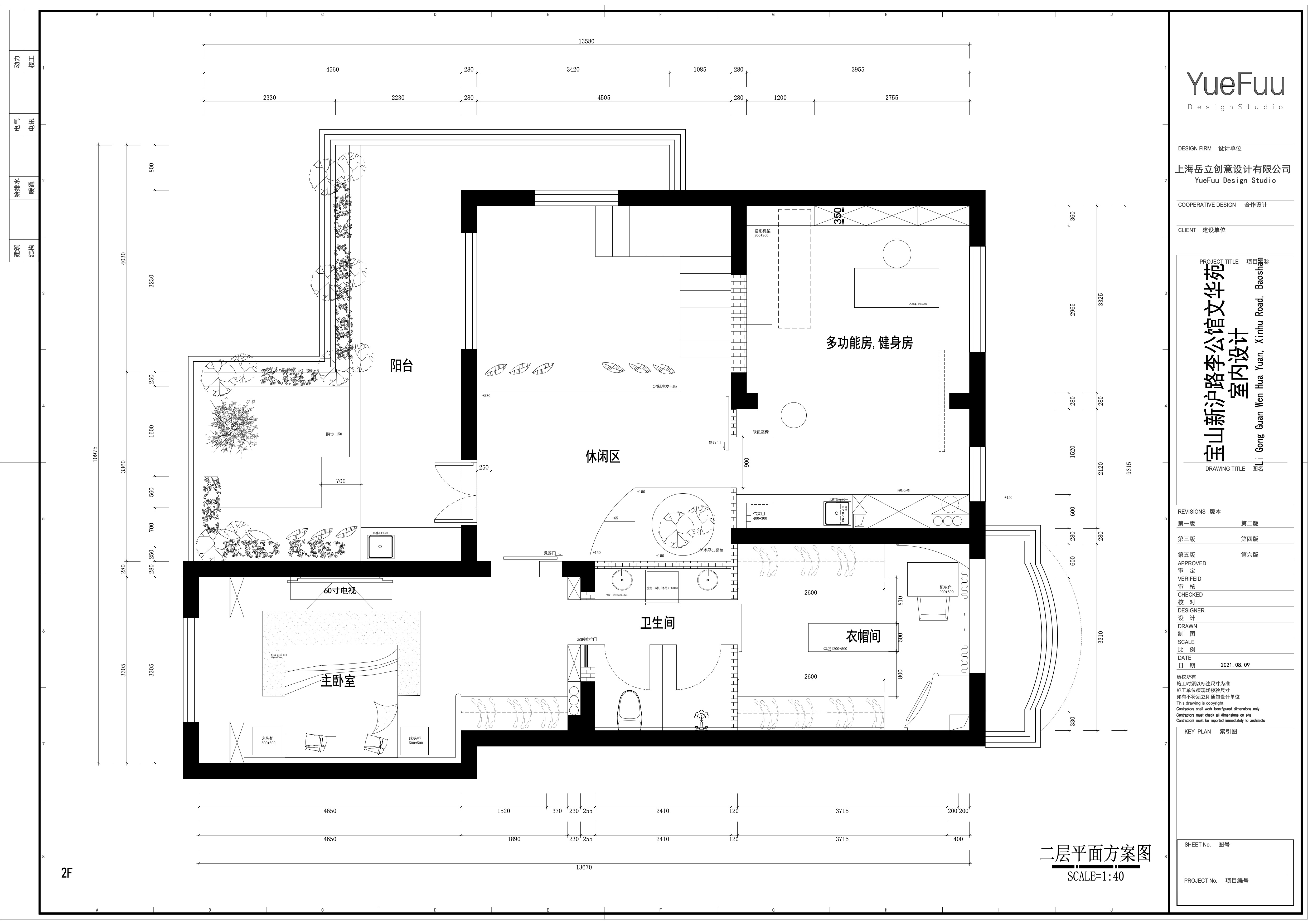
  • 此户型地理位置极佳,位于上海宝山区公寓楼的顶层带复式,三面环窗户,业主看中的就是房屋本身的通透性,在了解实际需求(平时满足夫妻居住,孩子常年在国外留学,偶尔招待亲朋好友)后,我们放心大胆的对房子的本身的优点进行再扩大化,整套户型设计,充分利用现有场地地理环境优势,在材料的选择上简洁大方,象牙白与木质的搭配,最能放大空间的既视感,同时也带来温润感。 透过“悬浮”的设计主轴,配置了中心亮点悬浮楼梯,为贯穿楼上楼下的重要枢纽,也是一进门最美丽的建筑景观既视感。 公共区域的空间合理分配,结合了中西厨房,与招待宾客还有多功能房理念,让一楼像是住家以及会所的开阔设计。一楼与二楼设计了悬浮楼梯链接,营造出轻盈的节奏感。二楼把所有的空间重新梳理,首先规划公共区域与室外阳台做链接,形成室内外空间串联放大的空间感;主卧结合步入式衣帽间、步入式卫浴间;也再规划了多功能房给到屋主办公加生活的场景。 我们希望透过作品本身的空间感,去除多余的装饰,配合多功能区域的规划,可以让业主长期待在空间里也不觉得乏味,可以在不同的功能区发现更多的惊喜,相信空间的温暖也是跟着使用者一起成长的!
  • 图片
  • 图片
  • 图片
  • 图片
  • 图片
  • 图片
  • 图片
  • 图片
  • 图片
  • 图片
  • 图片
  • 图片
  • 图片
  • 图片
  • 图片
  • 图片
  • 图片
  • 图片
  • 图片
  • 图片
  • 图片
  • 图片
  • 上一个 下一个
    2024第八届金腾奖 私宅(独居)丨私宅(多人居)丨餐饮丨酒店丨办公丨商业丨公共丨公益丨人物丨NEW100 jintengAWARD(小金_金腾奖组委会) 广州市海珠区琶洲大道68号华新中心21楼
    金腾奖视频号 金腾奖小红书号 监制:刘译遥
    统筹:张俊媚
    运营:赖钰炼 曹凯月 刘芳棋 小金
    新媒体:王贝贝 严洁 张文一
    技术:黄天佑 丁德昌
    最终解释权归金腾奖主办方所有