Shangri-La
作品详情
  • Details of the work 标题横线
    头像或者logo
    图片 杨钧
    城市:杭州
    公司: 杨钧设计事务所
    参赛作品: 香格里拉
    空间类型:别墅
    个人/公司简介:
    杨钧设计事务所更名前为易墅饰家整体家居设计机构。机构成立于2009年,集整体硬装和软装设计,全球顶级家具、灯具、布艺、饰品整合及高级定制于一体的服务机构。 设计总监杨钧率领资深设计团队屡次斩获殊荣,同时深得业主客户认可。更名后,我们依旧秉持国际化视野和原创精神,用强大的设计实力为高端私宅业主和商业整体设计客户提供配置服务。 杨钧设计事务所于市场上销售自身产品为主导的软装装饰公司不同,我们坚持专业装饰设计为主导,更纯粹才能更专注。事务所积累多年项目经验,更深刻理解硬装设计方案,同时结合色彩、材质、尺寸、风水等元素综合考虑,为业主量身定制最佳设计方案,而不是简单的产品堆砌。让空间更和谐,更具美感。
    设计说明 | Design Instruction
  • 有时候,一幢美好的房子就像一场梦幻般的舞台剧,生动地描述着主人对生活的热爱的程度,对于家人的关爱和孩子的用心呵护。 现代生活的秩序让人越来越追逐自然,设计师在整体空间规划也始终围绕极简、有温度、氛围轻松,这几个关键词,没有过多的装饰,让室内与室外景观自然而然进行互动,让家庭成员与美为伴,其乐融融。 花园应该是每个人的乌托邦,也承载了对自然和自由的渴望。当一家人坐在挚爱的花园里,观赏着各种植物,和孩子们在泳池里嬉闹,看着四季的变化。除了惊喜和欢乐,更多的收获着美好的回忆。 从客厅来看,室内归家的宁静和安逸扑面而来,明净的屋内随视线纵深向前,大面积落地窗将室外的生机引入,使整个空间也随之变幻着生动气息的色彩。 空间内饰,设计师更加关注和考量细节的连续性和自然感。原木色侵染全屋每个角落,餐厅的顶面取消了单调色彩而采用原木色,随着空间场景的切换,旋转楼梯也用到原木材质,提升了空间的整体感,以此凸显视觉延展的趣味意境。 楼梯作为家中秩序井然的一处景,如雕塑般使空间的层次与空间感得以延展。 木质肌理、织物触感与金属质感的搭配,实现了现代空间与中古家具的结合,舒适感与艺术性的创造也昭示了居者的生活态度。这些家具体量不大,在造型上十分符合现代时尚的趋势。它们像是各个零件一样散落在空间,又因为功能的接近而齐聚一堂,调和了空间的空虛与疏简。 在家具选择上也是现代与中古家具混搭,体现出业主有一种柔和而又别致的审美感,这种多角度的线索,也体现出一种年轻但不失厚度的生活方式。 在家的故事中书房也是业主特别注重的。两个不同功能的书房也恰恰充分地体现出主人独特的品味,其中以柚木打造的书房空间很能体现东方文人的一种沉淀。靠窗边的单椅为法国的古董家具,好像在讲述着一个时间的故事。 另一个以办公为主的书房则采用了绿色系,与花园中自然丰茂的景色如同画作一般展现在室内空间。室内外的空间关系也因四季流转而奇妙的连接起来。 孩子的活动空间也是与自然相连,浅色的木质置物架放满了心爱的各种玩具,充满了童趣与天真。 贯穿四楼健身区的旋转楼梯,犹如一件装置作品,而重新开启的天窗更令一整天的阳光都能照进家中。 也许奢侈的定义其实很简单,即真实、舒适、品质和愉悦。
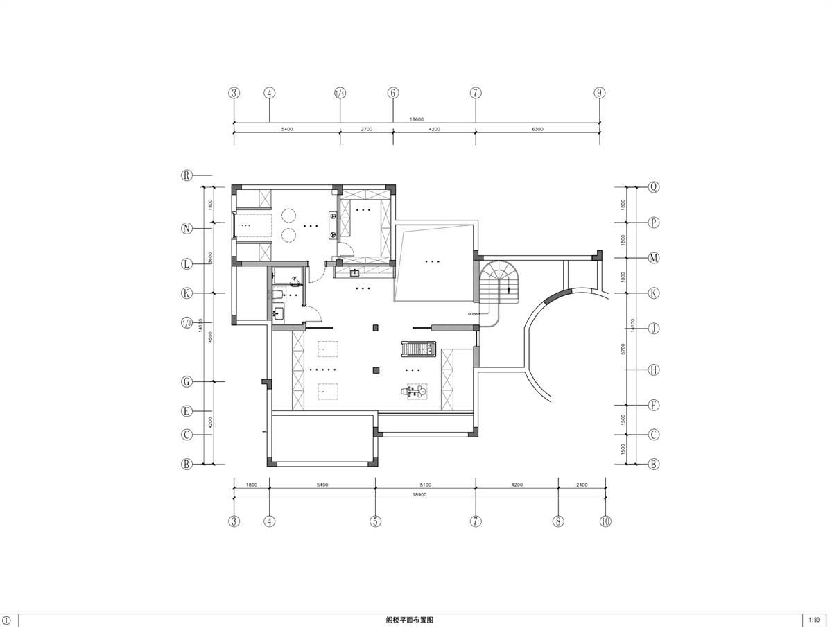
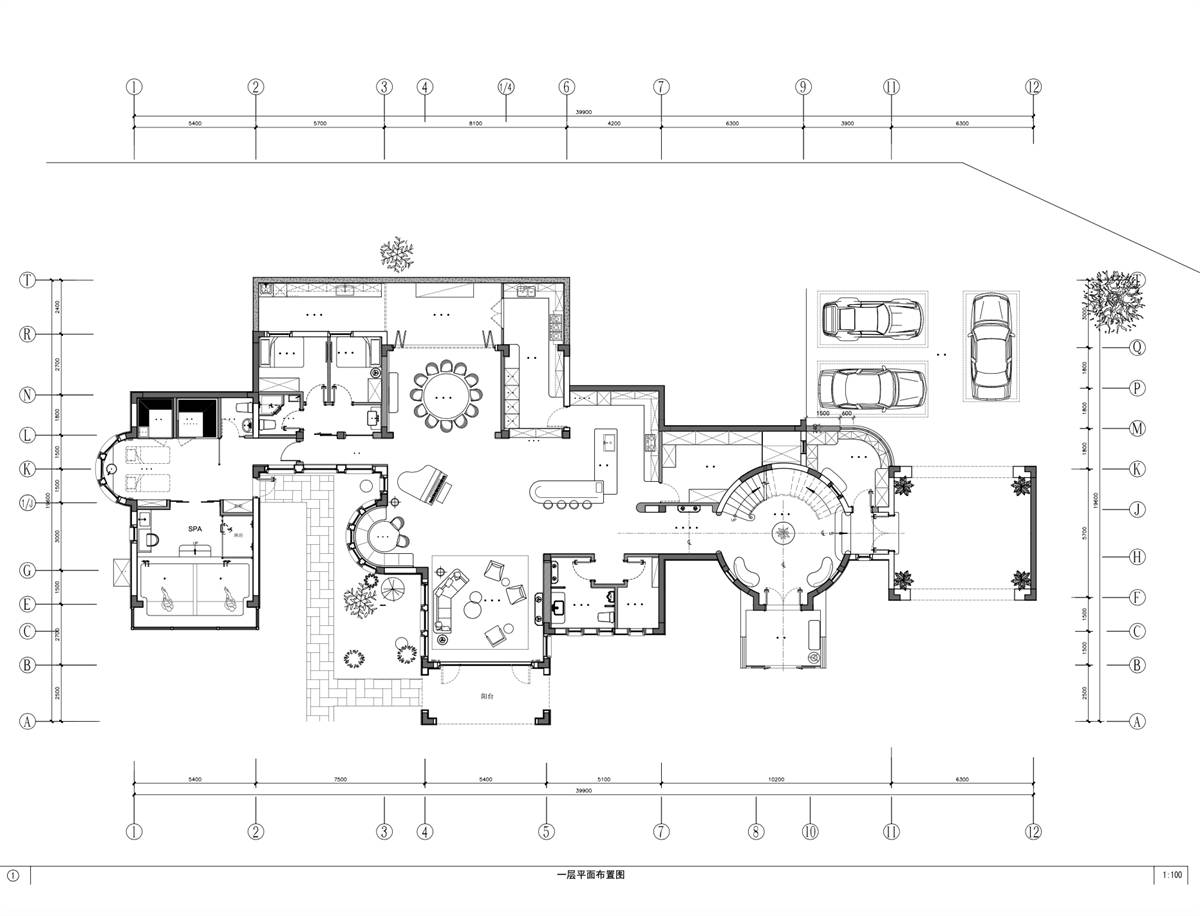
  • 图片
  • 图片
  • 图片
  • 图片
  • 图片
  • 图片
  • 图片
  • 图片
  • 图片
  • 图片
  • 图片
  • 图片
  • 图片
  • 图片
  • 图片
  • 图片
  • 图片
  • 图片
  • 图片
  • 图片
  • 图片
  • 图片
  • 图片
  • 图片
  • 图片
  • 图片
  • 图片
  • 图片
  • 图片
  • 图片
  • 图片
  • 图片
  • 图片
  • 图片
  • 图片
  • 图片
  • 图片
  • 图片
  • 图片
  • 图片
  • 图片
  • 图片
  • 图片
  • 图片
  • 图片
  • 图片
  • 图片
  • 图片
  • 图片
  • 图片
  • 图片
  • 图片
  • 上一个 下一个
    2024第八届金腾奖 私宅(独居)丨私宅(多人居)丨餐饮丨酒店丨办公丨商业丨公共丨公益丨人物丨NEW100 jintengAWARD(小金_金腾奖组委会) 广州市海珠区琶洲大道68号华新中心21楼
    金腾奖视频号 金腾奖小红书号 监制:刘译遥
    统筹:张俊媚
    运营:赖钰炼 曹凯月 刘芳棋 小金
    新媒体:王贝贝 严洁 张文一
    技术:黄天佑 丁德昌
    最终解释权归金腾奖主办方所有