Hope. Qiushi
作品详情
  • Details of the work 标题横线
    头像或者logo
    图片 甄颖慧
    城市:长治
    公司:
    参赛作品: 盼 · 秋实
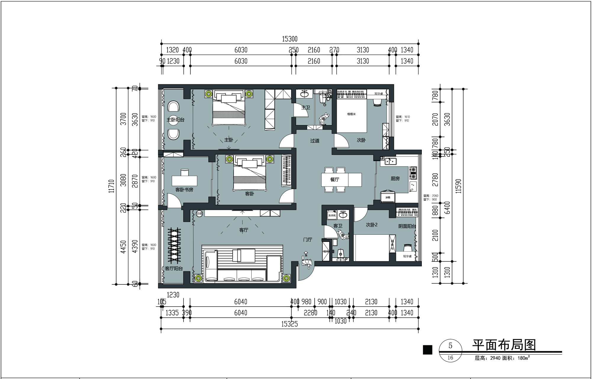
    空间类型:公寓(150㎡以下)
    个人/公司简介:
    个人简介: 毕业院校:南阳师范学院 十年全案设计经验 朴拓全案空间设计馆/创始人、艺术总监 2021 EDA中国新生代精英设计大赛/全国十大杰出青年设计师 高端私宅艺术软装顾问 个人设计理念: 人,为生活而设计。设计,为生活而存在。设计是一种追求完美的生活态度,是一种追求品味的生活理念。
    设计说明 | Design Instruction
  • 盼 · 秋实 “天之于物,春生秋实”,本案整个空间以收获的季节——秋季为主色调,以秋天的颜色为主,方案中全屋无主灯设计,空间更开阔,白白的天花吊顶半扣在顶面,像无边的天际,地面采用暖灰色连纹大理石花纹地砖,像翱翔在天空俯视山川,河流一般,整个地面一气呵成,将门厅、客厅、餐厅、厨房整个公共空间连为一体。公共空间墙面配以“面纱色”温馨又神秘。每个空间选配的花卉,也是以秋天的果实:小麦、棉花等干花为装饰,希望业主一家入住后,每每团坐在客厅时,像最初的期盼的一样,有了父母春天辛勤的耕种,待秋天收获果实时,谷仓满满
  • 图片
  • 图片
  • 图片
  • 图片
  • 图片
  • 图片
  • 图片
  • 图片
  • 图片
  • 图片
  • 图片
  • 图片
  • 上一个 下一个
    2024第八届金腾奖 私宅(独居)丨私宅(多人居)丨餐饮丨酒店丨办公丨商业丨公共丨公益丨人物丨NEW100 jintengAWARD(小金_金腾奖组委会) 广州市海珠区琶洲大道68号华新中心21楼
    金腾奖视频号 金腾奖小红书号 监制:刘译遥
    统筹:张俊媚
    运营:赖钰炼 曹凯月 刘芳棋 小金
    新媒体:王贝贝 严洁 张文一
    技术:黄天佑 丁德昌
    最终解释权归金腾奖主办方所有