Manhattan Window Scape
作品详情
  • Details of the work 标题横线
    头像或者logo
    图片 廖奕权 PPLUSP CREATIONS特约推荐
    城市:香港
    公司: PPLUSP CREATIONS LIMITED维斯创建有限公司
    参赛作品: 曼克顿之窗
    空间类型:公寓(150㎡以下)
    个人/公司简介:
    香港室内设计协会副会长 汕头市潮阳区政协委员 澳大利亚皇家墨尔本科技大学建筑及都市规划学院博士生 澳大利亚新南威尔斯大学设计学硕士 澳大利亚麦克理大学工商管理学学士 美国建筑师学会附属会员 香港室内设计协会认可室内设计师暨执行董事 建筑环保评估协会附属会员 中国建筑学会室内设计分会会员 中国十大杰出青年设计师 香港室内设计协会「东方聚合」主席 2023 Design Anthology全球年度设计师 2022香港环球透视杂志40骄子 - 建筑 2016-2018中国设计星执行导师 2016新浪设计40under40杰出设计师 2016广州设计周4040全国榜 2013-2015亚太室内设计大奖 (APIDA) 主席 2012香港环球透视杂志40骄子 - 室内设计 廖奕权毕业于澳大利亚新南威尔斯大学(UNSW)设计学院,并获得设计学硕士学位,2022年获得澳大利亚皇家墨尔本科技大学(RMIT)建筑及都市设计学院博士班录取,同时也是香港室内设计协会认可室内设计师暨执行董事及副会长,服务业界超过十载,为两岸四地及亚太区各国设计师的东方文化交流不遗余力,贡献良多。 他曾在日本知名建筑设计事务所工作,继而在林伟而的思联建筑设计(CL3)学艺,并于25岁创立自己的设计事务所-维斯创建有限公司(PplusP Creations Limited)2017年创立廖奕权设计师(深圳)事务所, 2023年创立了日本东京支部。 生于1984年,自小对设计已有浓厚兴趣,幼庭承训,因为父母的格言:读万卷书不如行万里路。 就是这样,便拿起背包,走遍全世界。 更于日本,英国及澳大利亚留学。 他带领的事务所十余年的历史内囊括世界超过二百多项国际及亚洲设计大奖,实力深受肯定。2012年及2022年分别两度荣获香港权威设计杂志《透视》的40骄子大奖及中国十大杰出青年设计师的高度殊荣等等,被誉为设计界最年青的明日之星。2016-2018年担任中国设计星执行导师。 廖奕权对艺术及室内设计充满热诚,他认为建筑及室内空间不单是一个给用家生活的地方,更是一个给人们洗滴心灵及触感互相共鸣的空间他的设计不但要满足用户的须求,也是为了满足各方在视觉及感觉上的享受,带给人们一个实用美满及舒适的空间。 “Drive, passion and tenacity are words that best describe Wesley, who constantly and curiously seeks to move forward.”
    设计说明 | Design Instruction
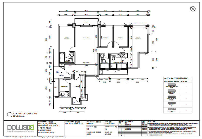
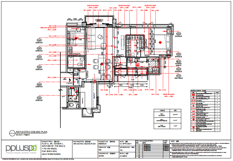
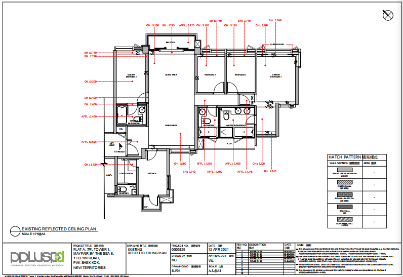
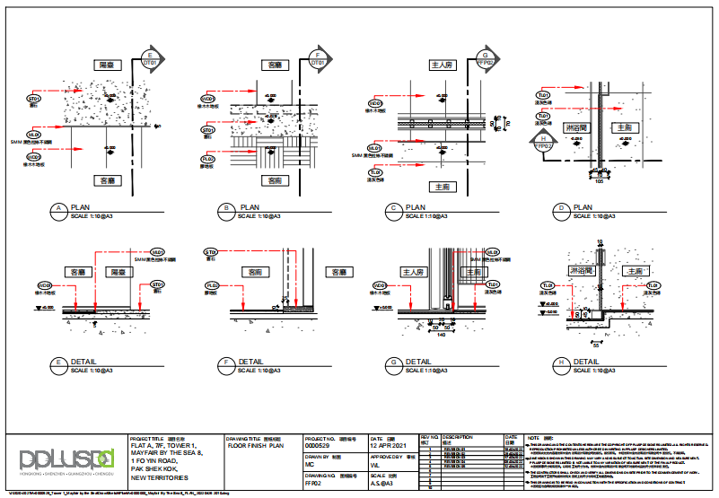
  • 禅意融合公寓改造 本项目致力于将一个全新的三居室公寓转变为一个宽敞的开放式生活空间,将日本美学的宁静与纽约高管公寓的奢华完美结合。设计中取消了香港公寓中常见的狭长走廊,取而代之的是强调落地窗的开放布局。此设计决策旨在突出壮丽的城市和部分海景,营造出一种宏大和开阔的感觉。 公寓内设有日式禅意浴室、干湿分离区和「金士曼」风格衣橱,每一部分都经过精心设计,以功能性和美观性为重点。禅意浴室将成为一处静谧的避风港,而「金士曼」衣橱则提供充足的存储空间,且不影响整体的设计。 设计中的一大亮点是生活区与套房卧室之间使用了一面橙色玻璃屏风。在整个空间中,它将投射出温暖、诱人的色调,创造出一种独特的氛围,模糊了白天与黑夜、晴天与阴雨的界限。 项目设计中,照明设计是一个关键的方面。设计目标是在整个空间中创造出一种独特的个性,而不对天花板造成任何干扰。灯具及其布置经过深思熟虑,以增强整体氛围,同时保持极简主义的风格。 此项目大胆地突破了传统,旨在创造出一个不仅视觉上令人惊艳,还能提供独特生活体验的空间。不同设计元素和美学的融合,预计将达到宁静、奢华和特色的和谐统一。
  • 图片
  • 图片
  • 图片
  • 图片
  • 图片
  • 图片
  • 图片
  • 图片
  • 图片
  • 图片
  • 图片
  • 图片
  • 图片
  • 图片
  • 图片
  • 图片
  • 图片
  • 图片
  • 图片
  • 图片
  • 图片
  • 图片
  • 图片
  • 图片
  • 图片
  • 图片
  • 图片
  • 图片
  • 图片
  • 图片
  • 图片
  • 图片
  • 图片
  • 图片
  • 图片
  • 图片
  • 图片
  • 图片
  • 图片
  • 图片
  • 图片
  • 图片
  • 图片
  • 上一个 下一个
    2024第八届金腾奖 私宅(独居)丨私宅(多人居)丨餐饮丨酒店丨办公丨商业丨公共丨公益丨人物丨NEW100 jintengAWARD(小金_金腾奖组委会) 广州市海珠区琶洲大道68号华新中心21楼
    金腾奖视频号 金腾奖小红书号 监制:刘译遥
    统筹:张俊媚
    运营:赖钰炼 曹凯月 刘芳棋 小金
    新媒体:王贝贝 严洁 张文一
    技术:黄天佑 丁德昌
    最终解释权归金腾奖主办方所有