Marlborough House
作品详情
  • Details of the work 标题横线
    头像或者logo
    图片 廖奕权
    城市:香港
    公司: PPLUSP CREATIONS LIMITED维斯创建有限公司
    参赛作品: 保禄大厦
    空间类型:公寓(150㎡以下)
    个人/公司简介:
    香港室内设计协会副会长 汕头市潮阳区政协委员 澳大利亚皇家墨尔本科技大学建筑及都市规划学院博士生 澳大利亚新南威尔斯大学设计学硕士 澳大利亚麦克理大学工商管理学学士 美国建筑师学会附属会员 香港室内设计协会认可室内设计师暨执行董事 建筑环保评估协会附属会员 中国建筑学会室内设计分会会员 中国十大杰出青年设计师 香港室内设计协会「东方聚合」主席 2023 Design Anthology全球年度设计师 2022香港环球透视杂志40骄子 - 建筑 2016-2018中国设计星执行导师 2016新浪设计40under40杰出设计师 2016广州设计周4040全国榜 2013-2015亚太室内设计大奖 (APIDA) 主席 2012香港环球透视杂志40骄子 - 室内设计 廖奕权毕业于澳大利亚新南威尔斯大学(UNSW)设计学院,并获得设计学硕士学位,2022年获得澳大利亚皇家墨尔本科技大学(RMIT)建筑及都市设计学院博士班录取,同时也是香港室内设计协会认可室内设计师暨执行董事及副会长,服务业界超过十载,为两岸四地及亚太区各国设计师的东方文化交流不遗余力,贡献良多。 他曾在日本知名建筑设计事务所工作,继而在林伟而的思联建筑设计(CL3)学艺,并于25岁创立自己的设计事务所-维斯创建有限公司(PplusP Creations Limited)2017年创立廖奕权设计师(深圳)事务所, 2023年创立了日本东京支部。 生于1984年,自小对设计已有浓厚兴趣,幼庭承训,因为父母的格言:读万卷书不如行万里路。 就是这样,便拿起背包,走遍全世界。 更于日本,英国及澳大利亚留学。 他带领的事务所十余年的历史内囊括世界超过二百多项国际及亚洲设计大奖,实力深受肯定。2012年及2022年分别两度荣获香港权威设计杂志《透视》的40骄子大奖及中国十大杰出青年设计师的高度殊荣等等,被誉为设计界最年青的明日之星。2016-2018年担任中国设计星执行导师。 廖奕权对艺术及室内设计充满热诚,他认为建筑及室内空间不单是一个给用家生活的地方,更是一个给人们洗滴心灵及触感互相共鸣的空间他的设计不但要满足用户的须求,也是为了满足各方在视觉及感觉上的享受,带给人们一个实用美满及舒适的空间。 “Drive, passion and tenacity are words that best describe Wesley, who constantly and curiously seeks to move forward.”
    设计说明 | Design Instruction
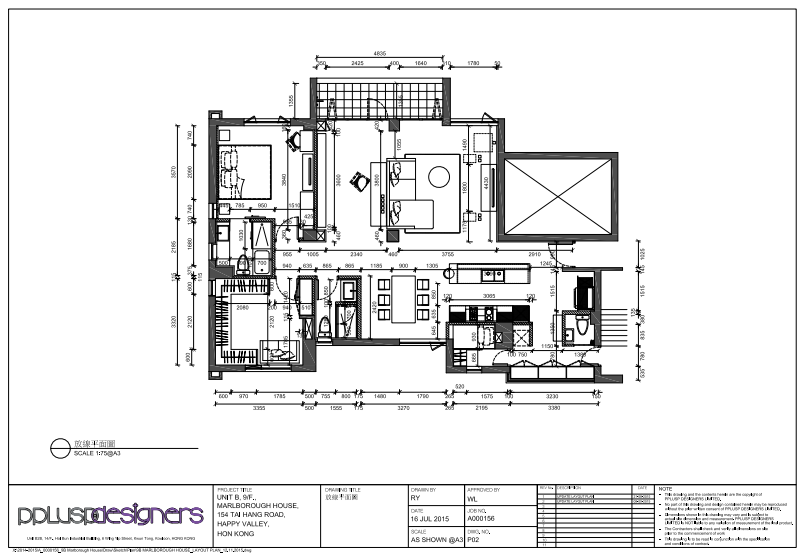
  • 打造充满个性与目标的永恒空间 对一座超过五十年历史的房屋进行翻新,带来了多样的设计可能性,每一种可能性都要针对个体需求和愿景量身定制。通过将现有建筑与新安装紧密结合,设计师打造了一个既能体现独特个性又能满足实际需求的空间。对布局进行的必要调整经过仔细考量,以提高空间在光线和流动性方面的效率,开放式餐厅和厨房区域成为一大亮点。在这个焕然一新的居所中,历史的痕迹被保留,营造出一个宁静的避风港,让人在繁忙一天后可以享受片刻宁静。 用节奏提升建筑形态 曾经的备用房间现在被纳入了客厅的空间。设计师选择将裸露的梁柱展现出来而非隐藏,允许这些结构元素成为空间独特的标志。例如,沙发被放置在靠近露台和走廊的两个方柱之间,划定了客厅的边界。在它后面,长桌和书架将区域转变为开放式的书房。即使是水平梁也为美学作出了贡献,增加了天花的维度,通过展示家的高挑天花板,消除了对额外隔断的需要。每个区域都运用了不同的装饰线条和形状——从网格、六边形到别致的四叶形——创造出一个引人注目的视觉舞台。 1. 受Tom Dixon设计启发的金属元素,如Etch烛台和Melt吊灯,增添了同等的魅力和视觉冲击。 2. 大理石、拼花木地板和地毯增强了两个主要房间的视觉趣味,而梁和天花板则强调了空间的深度和维度。 3. 一个醒目的设计特色是一个用金属支架形成菱形的书架单元,成为空间的亮点。 4. 沙发靠在方柱上,用灰色织物包裹,伴随着披肩般的褶皱围巾,呈现出优雅和精致。 5. 拼花木地板与摩洛哥风格的瓷砖对比鲜明,令人印象深刻地过渡了室内外空间的连接。
  • 图片
  • 图片
  • 图片
  • 图片
  • 图片
  • 图片
  • 图片
  • 图片
  • 图片
  • 图片
  • 图片
  • 图片
  • 图片
  • 图片
  • 图片
  • 图片
  • 图片
  • 图片
  • 图片
  • 图片
  • 图片
  • 图片
  • 图片
  • 图片
  • 图片
  • 图片
  • 图片
  • 图片
  • 图片
  • 图片
  • 图片
  • 图片
  • 图片
  • 图片
  • 上一个 下一个
    2024第八届金腾奖 私宅(独居)丨私宅(多人居)丨餐饮丨酒店丨办公丨商业丨公共丨公益丨人物丨NEW100 jintengAWARD(小金_金腾奖组委会) 广州市海珠区琶洲大道68号华新中心21楼
    金腾奖视频号 金腾奖小红书号 监制:刘译遥
    统筹:张俊媚
    运营:赖钰炼 曹凯月 刘芳棋 小金
    新媒体:王贝贝 严洁 张文一
    技术:黄天佑 丁德昌
    最终解释权归金腾奖主办方所有