晓风印月
作品详情
  • Details of the work 标题横线
    头像或者logo
    图片 重庆微观室内设计有限公司 贰拾柒设计经纪特约推荐
    城市:重庆
    公司:重庆微观室内设计有限公司
    参赛作品: 晓风印月
    空间类型:别墅
    个人/公司简介:
    重庆微观室内设计公司是由几位业内知名设计师于2014年共同成立的独立设计公司。是重庆市建筑室内设计企业联合会副会长单位。 凭着丰富的设计经验、澎湃的创作灵感、良好的职业道德,得到市场认可的同时也得到了学术界的认可。 我们每个设计方案都是根据客户的自身情况来量身定制,而不是批量化生产,每一套设计都有自身独有的魅力。我们会站在客户的立场上思考问题,为了确保每一个作品都能做到极致,我们非常重视施工过程中各个环节的把控! 我们希望每个项目最后完工效果都是精品,而不是虚拟的效果图! Chongqing Micro Interior Design Co., Ltd. is an independent design company jointly established by several well-known designers in the industry in 2014. It is the vice president unit of Chongqing Federation of Architectural Interior Design Enterprises. With rich design experience, surging creative inspiration and good professional ethics, the company has not only been recognized by the market, but also by the academia. Each of our design schemes is customized according to the own situation of the customer, rather than mass production; namely, each set of design has its own unique charm. We will think from the customer's point of view. In order to ensure that every work can be done to the best, we attach great importance to the control of each link in the construction process! We hope that the final effect of each project is exquisite, rather than virtual renderings!
    设计说明 | Design Instruction
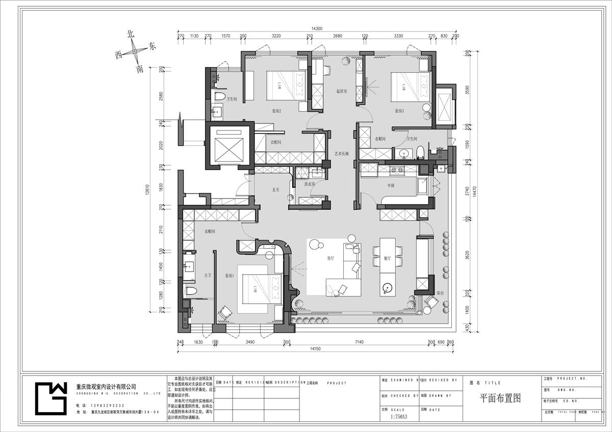
  • 晓风印月,这处坐享一线江景的200多平米大平层,是一个融合了现代生活美学与家庭温馨情感的居住空间。项目专为一位独立自信的女儿及其父母量身定制,旨在创造一个既能彰显个性又能满足三代同堂幸福生活的理想居所。设计中,我们大胆革新了原空间布局,旨在构建一个既开放包容又兼顾私密性的居住环境,让每一寸空间都浸润在自然美景与家的温暖之中。 **设计理念:** 我们的设计理念围绕“和谐共生·景致生活”展开,通过大幅度的空间重构,使得公共区域变得通透明亮,视野开阔,促进家庭成员间的互动与情感交流。与此同时,卧室区域被精心设计为既私密又舒适的休憩之所,配备完善的功能性设施,确保每位家庭成员都能享有属于自己的静谧天地。设计的每一个角落,都巧妙融入对壮丽江景的欣赏考量,让自然之美成为日常生活不可或缺的一部分。 **视觉与情感营造:** 在视觉呈现上,我们选用了素雅而纯粹的色彩基调,营造出一种宁静致远的生活氛围。空间中融入的柔和弧形元素,不仅软化了直线的刚硬,还增添了几分温馨与灵动,让整个居住环境更加亲切与和谐。这些弧线在不经意间引导着视线流动,仿佛自然界的柔美曲线,与窗外的江水遥相呼应。 **定制家具与空间艺术:** 空间内的每一件家具与装饰品均经过精心挑选与定制设计,它们不仅仅是功能性的存在,更是为空间增添艺术韵味的重要组成部分。家具造型简约而不失格调,与整体设计语言相得益彰,体现了对生活品质的极致追求。特别定制的空间造型,如艺术装置般的墙面、创意照明设计等,不仅强化了空间的层次感,更提升了整体的艺术品位,让家成为一个充满故事与情感的艺术展览馆。 **总结:** 晓风印月项目,不仅是一个居住空间的革新,更是一次关于爱与美的探索。它完美融合了现代设计的简洁与自然景观的壮丽,以及对家庭成员间情感交流的深切关怀。在这里,每一处细节都承载着对美好生活的向往与实践,让居住者在享受舒适生活的同时,也能感受到家的温馨与大自然的馈赠,成就一段段动人心弦的生活记忆
  • 图片
  • 图片
  • 图片
  • 图片
  • 图片
  • 图片
  • 图片
  • 图片
  • 图片
  • 图片
  • 图片
  • 图片
  • 图片
  • 图片
  • 上一个 下一个
    2024第八届金腾奖 私宅(独居)丨私宅(多人居)丨餐饮丨酒店丨办公丨商业丨公共丨公益丨人物丨NEW100 jintengAWARD(小金_金腾奖组委会) 广州市海珠区琶洲大道68号华新中心21楼
    金腾奖视频号 金腾奖小红书号 监制:刘译遥
    统筹:张俊媚
    运营:赖钰炼 曹凯月 刘芳棋 小金
    新媒体:王贝贝 严洁 张文一
    技术:黄天佑 丁德昌
    最终解释权归金腾奖主办方所有