御龙天峰
作品详情
  • Details of the work 标题横线
    头像或者logo
    图片 重庆微观室内设计有限公司 贰拾柒设计经纪特约推荐
    城市:重庆
    公司:重庆微观室内设计有限公司
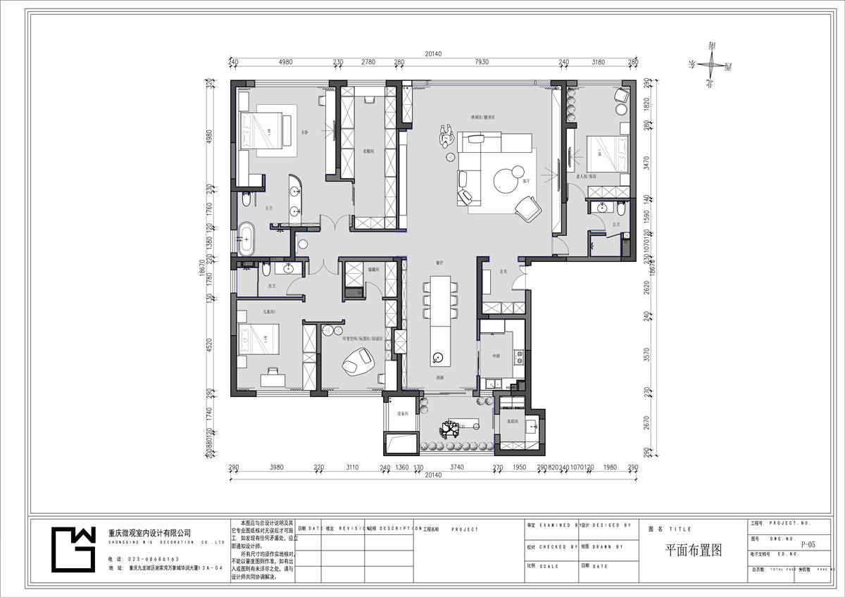
    参赛作品: 御龙天峰
    空间类型:别墅
    个人/公司简介:
    重庆微观室内设计公司是由几位业内知名设计师于2014年共同成立的独立设计公司。是重庆市建筑室内设计企业联合会副会长单位。 凭着丰富的设计经验、澎湃的创作灵感、良好的职业道德,得到市场认可的同时也得到了学术界的认可。 我们每个设计方案都是根据客户的自身情况来量身定制,而不是批量化生产,每一套设计都有自身独有的魅力。我们会站在客户的立场上思考问题,为了确保每一个作品都能做到极致,我们非常重视施工过程中各个环节的把控! 我们希望每个项目最后完工效果都是精品,而不是虚拟的效果图!
    设计说明 | Design Instruction
  • 御龙天峰,这一坐拥无垠江景的400平米大平层设计项目,旨在为一位年轻且极具个性的城市精英量身定制一个既符合其独立不羁气质,又能体现高端生活品味的居住空间。我们的设计之旅,是一场对传统界限的跨越,旨在打造一个通透流动、自由布局,同时又精准划分动静区域的生活舞台,让室内外美景无缝融合,让江河的壮阔成为日常生活的背景乐章。 **设计理念:** 秉承“通透·流动·自由”的核心理念,我们对空间进行了大胆的重组与创新。设计思路围绕着如何在保持空间开放性的同时,巧妙地区分动态活动区与静态休息区,确保私密与共享空间的和谐共存。更重要的是,我们致力于将窗外那令人叹为观止的一线江景,以最直观、最艺术的方式引入室内,使之成为居住体验的点睛之笔,让居住者每日都能感受到自然界的磅礴与宁静。 **视觉与风格方向:** 在视觉呈现上,我们聚焦于“酷”、“硬朗”、“建筑感”三大关键词,塑造出一个具有强烈个性与现代气息的居住环境。整个空间采用了一种高度纯粹与冷静的色彩调性,黑白灰的主色调与金属、石材等硬朗材质的结合,不仅强化了空间的结构美感,也映射出业主不凡的审美情趣与高雅品位。色彩与材质的精简使用,非但不显单调,反而在简洁中透露出深邃与力量,营造出一种后现代主义的建筑美学氛围。 **核心创意亮点:** 1. **墙体的重新组织与布局**:通过对原有墙体的巧妙改造与重组,我们不仅实现了空间的高效利用与灵动分区,还确保了视觉上的连贯与通透。这种创新的布局策略,让每一处空间既独立又相连,既满足了业主对私密性的需求,又促进了空间的流动性与互动性。 2. **色彩与材质的纯粹表达**:在色彩上,我们摒弃了繁复,选择了极简的色彩搭配,通过黑、白、灰的纯净对比,辅以精选的金属、玻璃等硬朗材质,创造出一种冷静而深邃的空间质感,完美呼应了业主独树一帜的个性与追求。 总之,御龙天峰项目是对现代居住理念的一次深度诠释,它不仅是一个居住空间,更是一个展现个性、追求极致生活品质的舞台。在这里,每一分设计都服务于居住者的情感与精神需求,每一个细节都旨在提升居住体验的每一个瞬间,让家成为真正的灵魂栖息地。
  • 图片
  • 图片
  • 图片
  • 图片
  • 图片
  • 图片
  • 图片
  • 图片
  • 图片
  • 图片
  • 图片
  • 图片
  • 图片
  • 图片
  • 图片
  • 上一个 下一个
    2024第八届金腾奖 私宅(独居)丨私宅(多人居)丨餐饮丨酒店丨办公丨商业丨公共丨公益丨人物丨NEW100 jintengAWARD(小金_金腾奖组委会) 广州市海珠区琶洲大道68号华新中心21楼
    金腾奖视频号 金腾奖小红书号 监制:刘译遥
    统筹:张俊媚
    运营:赖钰炼 曹凯月 刘芳棋 小金
    新媒体:王贝贝 严洁 张文一
    技术:黄天佑 丁德昌
    最终解释权归金腾奖主办方所有