Acadia
作品详情
  • Details of the work 标题横线
    头像或者logo
    图片 合理空间 贰拾柒设计经纪特约推荐
    城市:重庆
    公司:合理空间
    参赛作品: Acadia
    空间类型:别墅
    个人/公司简介:
    合理空间为私人家装定制工作室。它集合了优秀的设计资源,能为高端客户群提供专属设计服务。关注合理空间,为您提供当下流行的家装设计软装搭配方案,让我们共同见证成长。
    设计说明 | Design Instruction
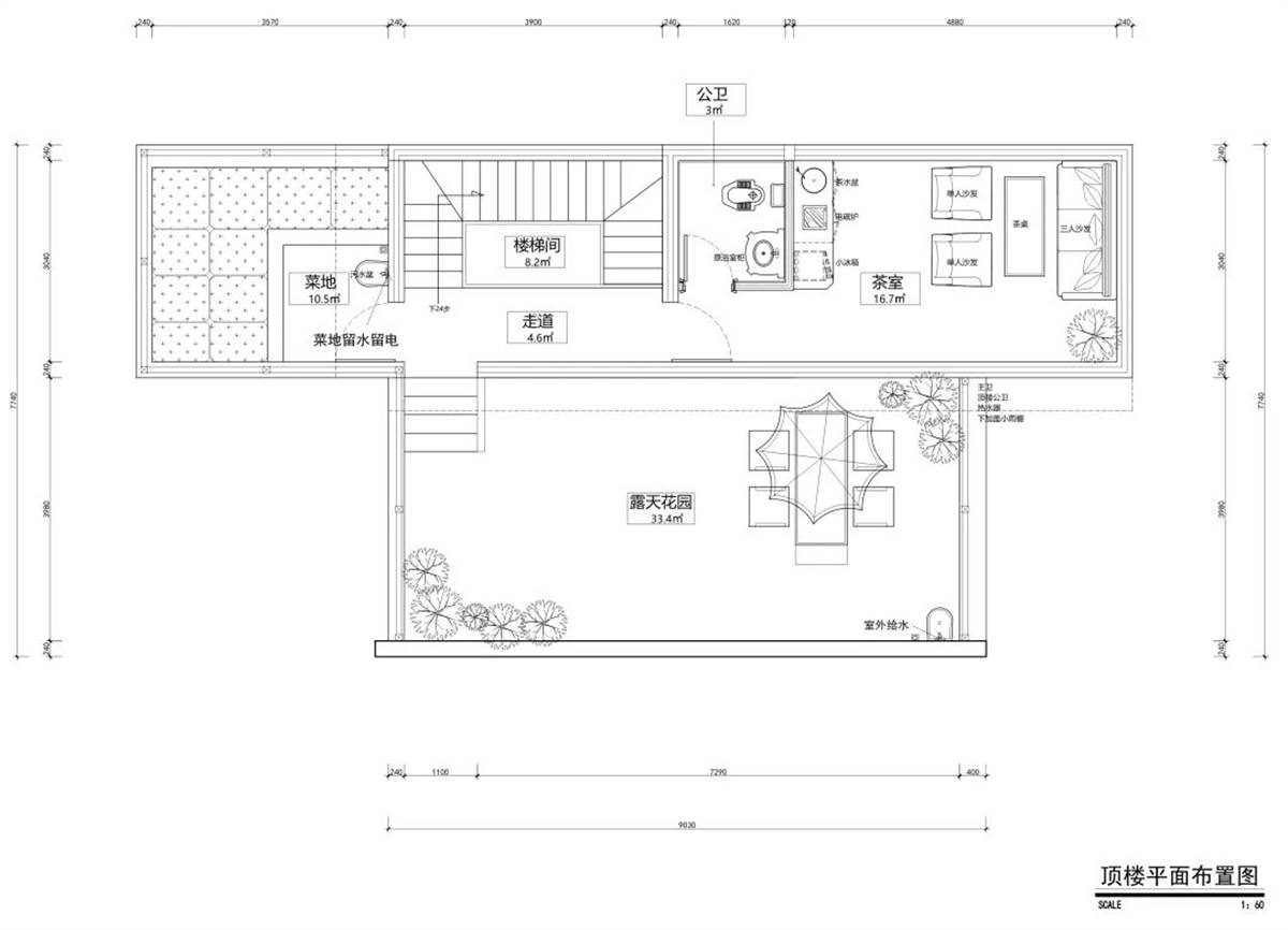
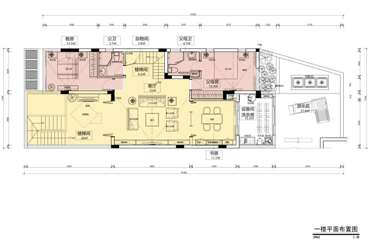
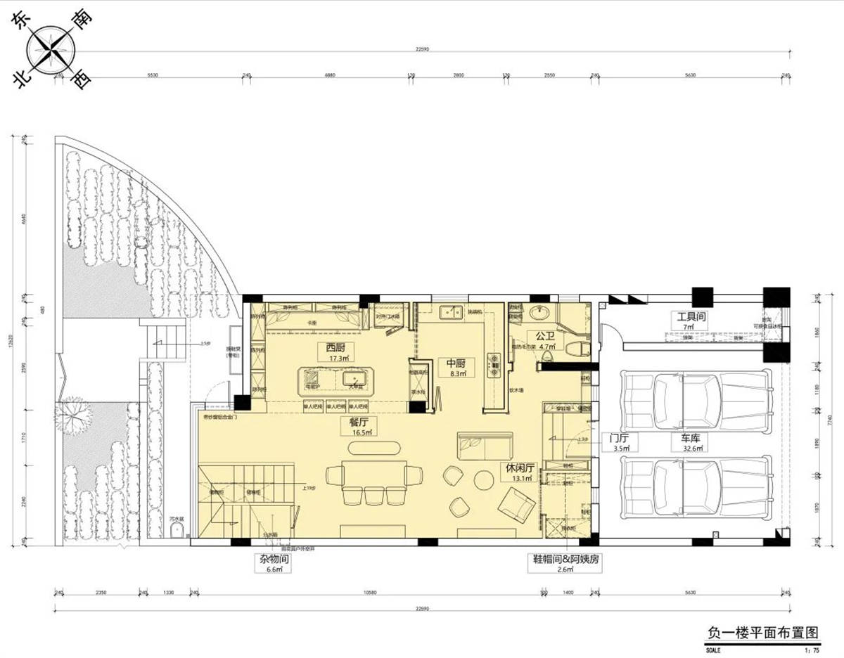
  • 坐看云卷云舒,聆听风声雨声, 观望星密星稀,慢享日长日短。 我想,等她住进这个新家后,这些相似而美好的场景会伴随她许多年。 也许就在同样炎热的六月里,在一个平平常常的周六下午五点,她带着大女儿和小儿子从商场归来。将车缓缓驶入B1层的入户停车位里,和她老公的车并排,熄火下车。 她从后备箱拿出刚买好的现杀鱼片、鸡丁等满满一提食材,在大女儿欢快的“弟弟,我来牵你一起走”的笑语里,打开车库的白色入户门。 姐姐和弟弟到餐厅旁的休闲厅,看昨天尚未看完的动画片。 妈妈从购物袋里拿出新鲜的水果,在西餐厅清洗装盘,再从冰箱里拿出昨晚新做的芝士蛋糕,让小朋友们一边看电视一边垫垫肚子。 安置好了两个小宝贝,她就可以放心地到厨房里准备今晚的家宴,沸腾鱼、宫保鸡丁、盐煎肉、再来一份清爽的拌豆芽,都是她的拿手好菜。 方形餐桌搭配长条椅和单人椅,可以坐下4-8人,就算夫妻双方的父母一起过来聚餐都能容纳。 餐桌旁的备餐柜是一些她喜爱收藏的餐具和杯具,精制的美食配上精美的餐具,会更加可口哦。 设计师:“这套房子全屋无定义风格,乡村法式,美式复古,日式昭和或多或少都有一点痕迹。无风格化,不代表空间完全无风格,而是讲究包容性与多样性,不拘泥于风格本身,而是跳出常规的思维模式,将“自我”“我喜欢”等展现个性化的标签贯彻得更具体。 就像B1层,餐厅、厨房、休闲厅都是烟火气和生活气息非常浓郁的地方,因此我用了温暖的木色和地砖色,搭配很多可爱又趣味的摆件和绿植,来提升整个空间的亲切感。” 她顺着楼梯向上,木制和黑色金属围栏的搭配,让人脚步轻盈又充满安全感。 上到一楼,她路过玻璃顶的阳光房,夏日下午六点的天空依然清澈明亮,阳光洒在藤治的摇椅上,她或许会忍不住坐下来放空一会;又或许会会想起上个周末的下午,她在躺椅上看书,两个孩子一左一右坐在身边玩耍。 穿过阳光房进入客厅,大面积的米色家具,但搭配暖色的茶几,整个空间显得更加开阔敞亮,茶几上还散落着几颗尚未吃完的草莓和青枣,那是她为因工作不能出门逛街的丈夫准备的茶点。 设计师:“这套别墅是联排的中间户,南北通透,但整体户型稍微偏长,这意味着中间段的自然采光就会比较不理想。因此我们在一楼客厅衔接南侧书房和北侧阳光房的隔断门,都特意选用了可调节的格栅门,这样使得中间的客厅既能享受两侧的采光,也能保障空调的制冷效果。” 她去书房喊老公吃晚餐。先入眼帘的除了丈夫的书桌外,还有她陪他工作时最爱的懒人沙发。深陷在柔软的接地沙发里,她一不小心睡着好几次。 晚饭后的她回到二楼的主卧里,杉木色渲染出生活温暖的基调,米白色亲肤舒适的床品和床幔守护她每晚的安睡。 选择线条简单的长腿床头柜,它们轻盈的身形,会令床边更有呼吸感。抽屉封闭式设计也能满足收纳需求。 房间的落地窗前是她的阅读角,贴地的懒人沙发,便携移动的边桌。多少个独处的午后,一杯茶一本书。 衔接主卧卧室和卫生间的是7平方米的衣帽间,并阻隔了主卧房门到卧室和卫生间的视线,为主卧空间保障了更好的私密性。 8平方的主卫空间,容纳了双位洗漱台、浴缸、淋浴区、马桶和收纳柜,努力将空间利用发挥到极致。 设计师:“由于业主的大女儿还不敢自己独立在房内入睡,所以需要过渡性地把女儿房和主卧打通着,暂时用窗帘来隔断”。等到女儿大一些时,再将女儿房和主卧之间用柜子或者是墙隔断成两个独立的房间。” 女儿房虽然和主卧暂且打通着,但已经按着独立房间做好了规划,有衣柜区、床、独立的门和阳台。墙漆、窗帘、小沙发和地毯,也选用了女儿喜欢的柔粉色。 小儿子非常勇敢独立,已经可以独立在自己的房间里入睡。而记录他成长的儿童房,不止是单一的休息空间,更是留给孩子去发散、去探索、去创造的场景。 一张过渡性的木屋小床,和他喜欢的动物玩偶们,共同打造了他童稚时的趣味空间。 设计师:“儿童房的卫生间空间不大,因此采用了清爽的白色调,用几条彩色的瓷砖作为装饰。” 设计师:“二楼的走道设计了整排的储物柜和水吧台,满足收纳和夜间饮水的需求。其中4扇柜门采用了毡木板,可以作为照片墙和备忘录等使用。” 一楼的父母房内的家具色调更深,床头采用的是更加轻盈透气的藤编材质,缓和深色调厚重感的同时,散发着自然美感与手工质朴感,复古与品质兼具。在清晨陪父母迎援灿烂的阳光,在夜晚为他们编织美妙的梦境。 热爱生活的人家中总有许多物件,中古风的斗柜收纳生活中遇到的美好。 设计师:“我看到它的第一眼,就被这扇落地窗吸引了,窗外是洋房里共有的小花园,植物自然生长不加修饰,阳光洒进窗户,实在是太美了。” 客房选用了非常具有禅意且贴近自然的麻灰色墙漆和卷帘,和窗外的风景搭配极具森系气息,是个让人想要坐着看四季的地方。
  • 图片
  • 图片
  • 图片
  • 图片
  • 图片
  • 图片
  • 图片
  • 图片
  • 图片
  • 图片
  • 图片
  • 图片
  • 图片
  • 图片
  • 图片
  • 图片
  • 图片
  • 图片
  • 图片
  • 图片
  • 图片
  • 图片
  • 图片
  • 图片
  • 图片
  • 图片
  • 图片
  • 图片
  • 图片
  • 图片
  • 图片
  • 图片
  • 图片
  • 图片
  • 图片
  • 图片
  • 图片
  • 图片
  • 图片
  • 图片
  • 图片
  • 图片
  • 图片
  • 图片
  • 图片
  • 图片
  • 图片
  • 图片
  • 图片
  • 图片
  • 图片
  • 图片
  • 图片
  • 图片
  • 图片
  • 图片
  • 图片
  • 图片
  • 图片
  • 图片
  • 图片
  • 图片
  • 图片
  • 图片
  • 图片
  • 图片
  • 图片
  • 图片
  • 图片
  • 图片
  • 图片
  • 图片
  • 图片
  • 图片
  • 图片
  • 图片
  • 图片
  • 图片
  • 图片
  • 图片
  • 图片
  • 图片
  • 图片
  • 图片
  • 图片
  • 图片
  • 图片
  • 图片
  • 图片
  • 图片
  • 图片
  • 图片
  • 图片
  • 图片
  • 图片
  • 图片
  • 图片
  • 图片
  • 图片
  • 图片
  • 图片
  • 图片
  • 图片
  • 图片
  • 图片
  • 图片
  • 图片
  • 图片
  • 图片
  • 图片
  • 图片
  • 图片
  • 图片
  • 上一个 下一个
    2024第八届金腾奖 私宅(独居)丨私宅(多人居)丨餐饮丨酒店丨办公丨商业丨公共丨公益丨人物丨NEW100 jintengAWARD(小金_金腾奖组委会) 广州市海珠区琶洲大道68号华新中心21楼
    金腾奖视频号 金腾奖小红书号 监制:刘译遥
    统筹:张俊媚
    运营:赖钰炼 曹凯月 刘芳棋 小金
    新媒体:王贝贝 严洁 张文一
    技术:黄天佑 丁德昌
    最终解释权归金腾奖主办方所有