Black Mamba
作品详情
  • Details of the work 标题横线
    头像或者logo
    图片 合理空间 贰拾柒设计经纪特约推荐
    城市:重庆
    公司:合理空间
    参赛作品: Black Mamba
    空间类型:别墅
    个人/公司简介:
    合理空间为私人家装定制工作室。它集合了优秀的设计资源,能为高端客户群提供专属设计服务。关注合理空间,为您提供当下流行的家装设计软装搭配方案,让我们共同见证成长。
    设计说明 | Design Instruction
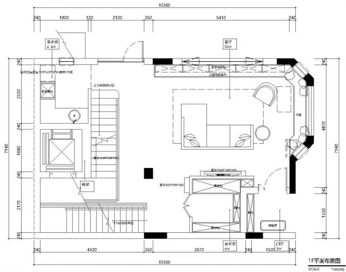
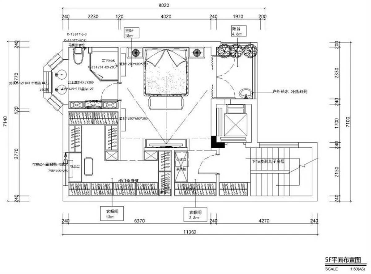
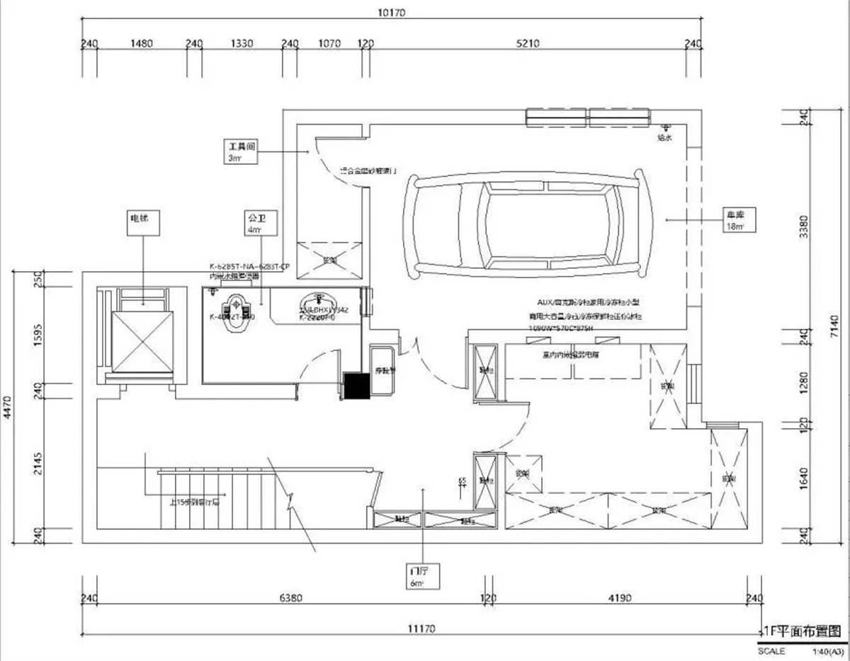
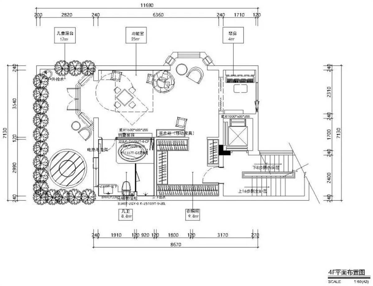
  • “香樟林这片别墅区,不仅仅是对于自然美景的尊重,更是对生活品质的追求。 在这里,我们能够与大自然完美融合,感受到它带来的灵感和平静。无论是漫步湖岸,还是休闲放松在花草丛中,都能够得到内心的满足和宁静。” 负一层除了入户车库外,安排了出入高频使用的卫生间和四季不常用物资所屯放的小仓库,既能照顾生活需求又合理安排收纳空间。 / F1 / 从负一楼拾级而上到一楼的会客厅。 首先看到的是正对着的更衣间和左手边的依柱放置的小方桌组合,不仅提高了大空间的利用率,也使客厅与楼梯之间有个缓冲。 在这个柱边的小方桌,眼前的视野虽然不开阔,但更有利于让独立个体的气息和磁场完全填充这个空间。仿佛进去了小宇宙,不受外界打扰,在这里主人可以沉静地享受一个人的阅读空间。 “黑色是一种特别有态度的颜色谦虚且傲慢,慵懒随性却神秘。它可以使人身处绝对的包围中,包裹并接纳一切情绪, 给人带来安全感。” 客厅空间在美学方面追求一种不对称美,用极具艺术感的造型给人们强烈的视觉愉悦感。开放式白色展柜结合原有的开放式采光窗,半围合着客厅中间大面积的皮质岩石沙发,再搭配几张散布的单人沙发和小茶几,轻松营造出一个舒适且灵动的休闲会客空间。而浅咖色的地毯与黑色地砖、黑色沙发碰撞,这种对比的冲击感又为整个空间增添了一分格调。 往二楼的楼梯右侧是独立电梯间和茶水间,茶水间里除了可以满足客厅使用时简单的的饮水泡茶需求,还配备了红酒恒温柜,适合深夜观影时开一瓶慢酌。 餐饮空间 / F2 / 餐厅应该是这个家的开放空间中更具温度的地方。 大体积的原木色餐桌弱化了黑色地板的重量感,餐桌的造型设计个性而不失优雅,在利落线条和细腻纹理下孕育出温暖惬意的氛围。 “8人位的长条餐桌非常方便邀请朋友到家来小聚,无论是吃饭还是玩桌游都很合适。” 餐厅与厨房之间的黑色透明玻璃门增加空间通透感,整个空间虽然暗调但不失高级和细腻,奢华与质感的层层递进。 餐厅旁的卫生间是这个家开放空间里使用频率最高的卫生间,主要方便主客人在1楼客厅、2楼餐厅和3楼书房活动时使用,也因此这个卫生间内没有规划沐浴功能。 这个卫生间的软硬装设计都十分追求品质感和氛围感。花纹地砖、墙裙贴砖、全包的镜柜设计、挂画、插花、香氛都是这个卫生间让人觉得舒适与品质兼具的细节。 合理空间首席设计李晶: “业主是非常有个性和想法的人,希望这个房子能够有强烈的个人风格表现,告别千篇一律的设计。打破固有浅色系配色、重塑黑白经典搭配,在光影流动之间,去打造优雅复古的空间格调。一个有点酷又高级的作品。” 「 书房 / F3 / 书房采用无主灯设计、书架前的筒灯和书桌上的吊灯做灯光组迎合不同使用场景下的照明需求,同时让灯光效果更具层次感。 在黑白配色的基础上,点缀少许大地棕的色块和线条,如桌子侧板、挂画、画框、金属吊灯和把手等,再装饰排列具有趣味的手绘画,柔化软化黑白的硬冷。 儿童房 / F4 / 儿童房的空间大,且拥有三面采光。 目前是作为储备空间,预留了卧室套间的基础功能空间:卧室、卫生间和衣帽间,但搭配的家具和软装要等之后业主有宝宝时再进一步增添。 “现在儿童房暂作为业主的爱好乐园:弹琴、绘画、下棋,如果有朋友来了,支个方桌就能摆上麻将。” 儿童房卫生间 / F45 / 卧室里大空间和好采光可以放心采用包容性强但色调重的泥棕色做床头墙漆,卫生间则采用了草绿花砖和土黄色墙漆,既和卧室空间基调一致,又不显得暗沉,反而拥有大自然郁郁葱葱的生动活泼。 主卧套间 / F5 / 沿着楼梯到顶楼,即主卧独享的5楼空间,进门用水吧台做了隔断,方便主卧收纳和饮水需求的同时,让主卧空间更具隐私感。 主卧的睡卧空间采用了灰咖色系,整体显得明净大气,用低饱和度的色调搭配、亲自然的软装质感给人治愈舒适的氛围。 软装设计师刘佳:“软包床头、棉麻窗帘、线织床品、敦实的全木床头柜、质朴的藤编春凳,会让整个房间散发着温柔又安静的气息。” 主卧卫生间 / F5 / 主卧卫生间的黑白搭配呼应了整套房子的颜色基调,大面积红棕色的墙漆和大面积的黑色家具碰撞,门板花纹、水龙头造型、瓷砖花样、熏黑玻璃等设计细节,让极简显得并不单调,情绪氛围拉满。 主卧衣帽间 / F5 / 衣帽间的空间不大但方正,将一整面的柜面采用镜面,不仅可以用作大面积的全身镜,还可以扩大衣帽间的视觉空间。 “利用整体衣柜打造出更多的收纳空间,这种相对简练的直线块面感去做空间分割,让整个空间更加的整洁和美观。” 合理空间首席设计李晶:
  • 图片
  • 图片
  • 图片
  • 图片
  • 图片
  • 图片
  • 图片
  • 图片
  • 图片
  • 图片
  • 图片
  • 图片
  • 图片
  • 图片
  • 图片
  • 图片
  • 图片
  • 图片
  • 图片
  • 图片
  • 图片
  • 图片
  • 图片
  • 图片
  • 图片
  • 图片
  • 图片
  • 图片
  • 图片
  • 图片
  • 图片
  • 图片
  • 图片
  • 图片
  • 图片
  • 图片
  • 图片
  • 图片
  • 图片
  • 图片
  • 图片
  • 图片
  • 图片
  • 图片
  • 图片
  • 图片
  • 图片
  • 图片
  • 图片
  • 图片
  • 图片
  • 图片
  • 图片
  • 图片
  • 图片
  • 图片
  • 图片
  • 图片
  • 图片
  • 图片
  • 图片
  • 图片
  • 图片
  • 图片
  • 图片
  • 图片
  • 图片
  • 图片
  • 图片
  • 图片
  • 图片
  • 图片
  • 图片
  • 图片
  • 图片
  • 图片
  • 图片
  • 图片
  • 图片
  • 图片
  • 图片
  • 图片
  • 图片
  • 图片
  • 图片
  • 图片
  • 图片
  • 图片
  • 图片
  • 图片
  • 图片
  • 图片
  • 图片
  • 图片
  • 图片
  • 图片
  • 图片
  • 图片
  • 图片
  • 图片
  • 图片
  • 图片
  • 图片
  • 图片
  • 图片
  • 图片
  • 图片
  • 图片
  • 图片
  • 图片
  • 图片
  • 图片
  • 图片
  • 图片
  • 图片
  • 图片
  • 图片
  • 图片
  • 图片
  • 图片
  • 图片
  • 上一个 下一个
    2024第八届金腾奖 私宅(独居)丨私宅(多人居)丨餐饮丨酒店丨办公丨商业丨公共丨公益丨人物丨NEW100 jintengAWARD(小金_金腾奖组委会) 广州市海珠区琶洲大道68号华新中心21楼
    金腾奖视频号 金腾奖小红书号 监制:刘译遥
    统筹:张俊媚
    运营:赖钰炼 曹凯月 刘芳棋 小金
    新媒体:王贝贝 严洁 张文一
    技术:黄天佑 丁德昌
    最终解释权归金腾奖主办方所有