田园牧歌
作品详情
  • Details of the work 标题横线
    头像或者logo
    图片 合理空间 贰拾柒设计经纪特约推荐
    城市:重庆
    公司:合理空间
    参赛作品: 田园牧歌
    空间类型:别墅
    个人/公司简介:
    合理空间为私人家装定制工作室。它集合了优秀的设计资源,能为高端客户群提供专属设计服务。关注合理空间,为您提供当下流行的家装设计软装搭配方案,让我们共同见证成长。
    设计说明 | Design Instruction
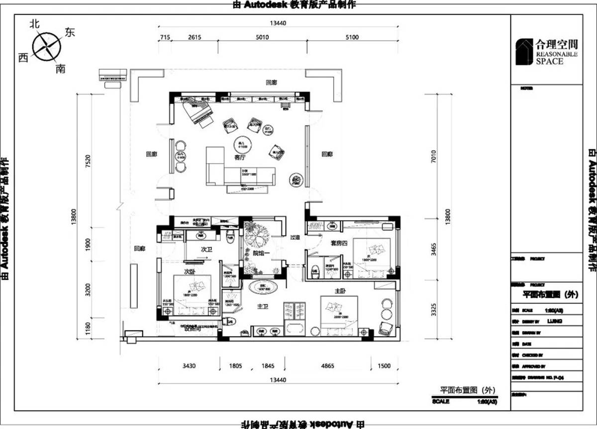
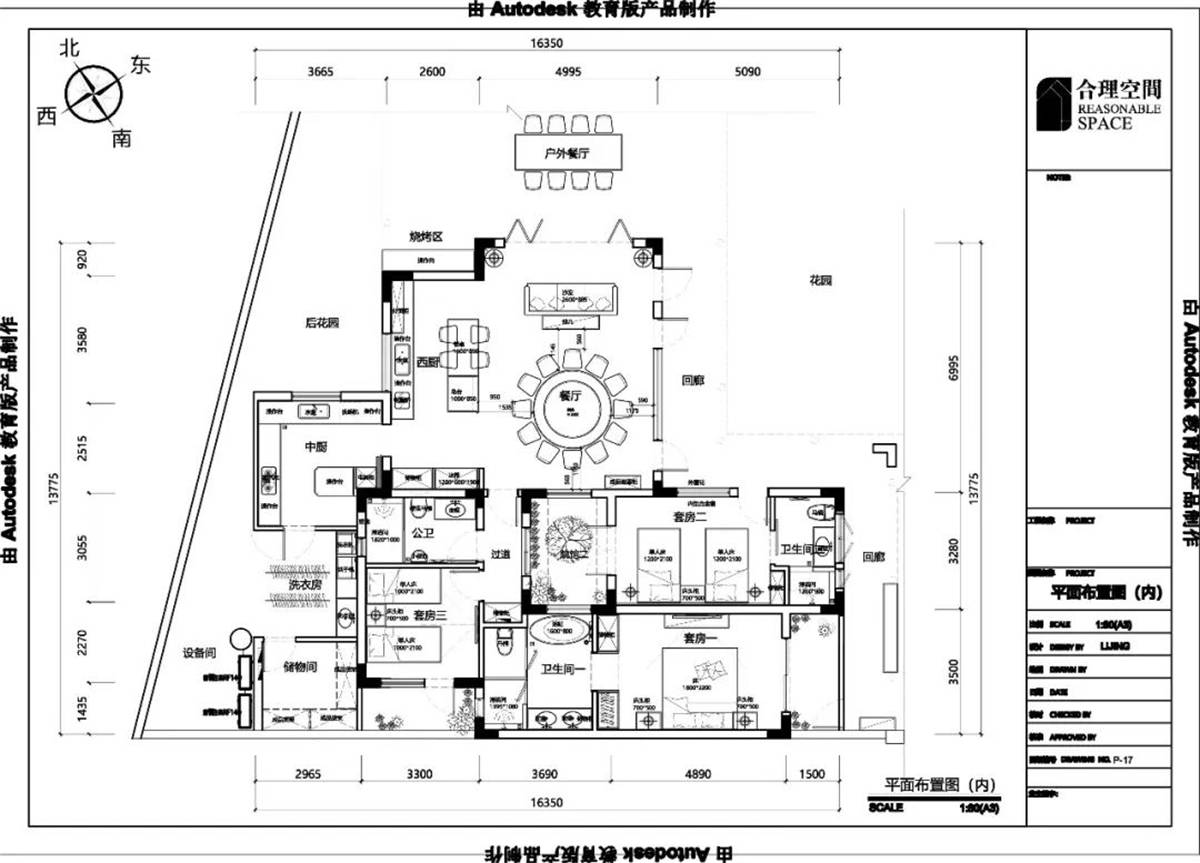
  • 云居处融合了中国古典园林风格的设计。 庭院设计充满了宁静与和谐,不仅展示了中国传统美学的精髓,也体现了对自然与环境的深刻理解和尊重。 户外庭院 灰色和白色的墙壁相互映衬,黑色的瓦片屋顶与整体色调相协调,形成了鲜明的对比,同时也营造了一种古典而优雅的氛围。 庭院门口,几棵树木为整个空间带来了生机与活力。特别是那棵开着粉红色花朵的树,它成为了庭院的焦点,为整个空间增添了色彩与浪漫。 周围散布的小石头和灌木进一步丰富了庭院的层次感,使其更具自然之美。 在庭院入口中央,一口大缸,象征着和谐与圆满。整个庭院设计强调了自然与人文的和谐统一。 设计师李晶:“我们尊重自然,尊重环境,同时也注重人的感受与体验。这个庭院不仅是一个美丽的景观,更是一个让人放松心情、享受生活的场所。” 池塘中的锦鲤游动,不仅增添了生机与活力,还寓意着吉祥和好运。 池塘周围环绕的绿色植物和矮树丛,为庭院营造了一种自然的氛围,同时也为居住者提供了清新的空气和宜人的景色。 庭院的石桥不仅具有连接两侧的功能,还为整个空间增添了一种优雅和浪漫的感觉。 桥上的栏杆设计精致,既保证了安全性,又增添了美感。走过石桥,仿佛置身于一幅美丽的山水画中。 客厅 整个客厅以深色调为主,增添了一种稳重感,在布局上,采用了开放式的设计,让整个客厅看起来更加宽敞和通透。 两面的大窗户为室内引入了充足的光线,同时也为居住者提供了一个欣赏外界景色的绝佳视角。 设计师李晶:“为了能够让居住者更好地欣赏春夏秋冬的田园风光,我们特意在客厅这面墙上开了一扇观景窗,就像一个超大的画框。当夜幕降临,灯火阑珊的夜景透过这扇超大的窗户,如同一幅流动的画卷,在眼前缓缓展开。居住者只需静坐室内,便能尽享这美妙的视觉盛宴。” 软装刘佳:“在家具的选择上,我们采用了两张不同色系的沙发。浅色系的沙发为整个空间增添了一种清新感,而深色系的沙发则与整体色调相呼应,形成了一种和谐的统一。” 主卧空间 主卧墙壁采用了柔和的色彩,深色地板则与浅色墙壁形成对比,为空间增添了一丝稳重感。 床的旁边,衣柜和抽屉柜的储物空间充足。房间右侧窗户让阳光自然洒进室内。 整个浴室采用了实木棕色调,这是一种非常流行且能营造出高级感的色彩选择,同时与浴室瓷砖相互呼应。洗手台下方的木制橱柜,增强了收纳。这种设计既实用又美观。 白色的现代建筑线条流畅,与周围的蓝天和白云形成了鲜明的对比。这种色彩搭配使得房屋在视觉上更加突出,也营造了一种清新、明亮的感觉。 设计师何俊桥:“在房屋的户外区域,融合一个无边泳池,为休息提供了一个享受阳光、放松身心的绝佳场所。” 暮色如诗般降临,橙蓝交织的天空与远处的山脉共同勾勒出一幅宁静祥和的画卷。 观景廊亭的装修设计充分融合了现代与传统元素,以打造出一种既优雅又富有文化韵味的休憩空间。 户外廊亭与茶室结合,创造出一个既具有自然韵味又充满文化气息的空间,廊亭的窗户设计让窗外的山景和云雾缭绕的景象尽收眼底。 餐厅 户外用餐区采用了木地板和黑色金属结构的组合,这种搭配既现代又耐用,黑色金属结构的线条简洁而流畅,给整个用餐区增添了一丝工业风的硬朗感。 软装刘佳:“室内客厅在软装方面,黑色的皮质沙发和木质椅子形成了鲜明的对比,既展现了现代家居的时尚感,又增添了一份温暖和舒适。” 长方形木质餐桌,其温润的木质纹理为空间增添了一抹自然的温暖感。餐厅的一侧是厨房区域,黑色的橱柜与棕色木质色的台面形成了鲜明的对比,彰显出现代设计的简洁与大方。 厨房区域的布局合理,既保证了烹饪的便捷性,也充分考虑到了就餐者的动线设计。 卧室套房 I 这个卧室整体色调以白色和绿色为主,房间内的绿色元素为整个空间增添了一抹生机和活力。 房间的一侧大窗,通过窗户可以看到窗外的树木和远处的建筑,将室内与室外环境巧妙地融合在一起,增加了空间的开阔感。 卧室套房 II 这个卧室的装修风格以现代简约为主,展现了一种干净、宽敞且温馨的居住环境。 白色的墙壁和天花板使空间显得明亮而通透,而深灰色的瓷砖地板则增添了一丝稳重感。 卧室套房 III 白色的床单和枕头为房间增添了干净明亮的感觉,而黑色金属装饰和深色木制画框则增添了一丝现代感。 透过窗帘可以看到外面的光线,为房间带来了充足的自然采光。这不仅使房间更加明亮宽敞,还提升了居住者的舒适度。 卧室套房 IV 白色的墙壁和天花板使空间显得明亮而宽敞,而棕色元素的加入则增添了一丝温暖和质感。衣柜的设计简洁而实用,与整体风格相协调。 卧室的右侧有一扇半开的门通向卫生间,这种设计增加了空间的通透性和流动性。 阳光从窗户照射进来,使房间光线充足,营造出一种温馨舒适的氛围
  • 图片
  • 图片
  • 图片
  • 图片
  • 图片
  • 图片
  • 图片
  • 图片
  • 图片
  • 图片
  • 图片
  • 图片
  • 图片
  • 图片
  • 图片
  • 图片
  • 图片
  • 图片
  • 图片
  • 图片
  • 图片
  • 图片
  • 图片
  • 图片
  • 图片
  • 图片
  • 图片
  • 图片
  • 图片
  • 图片
  • 图片
  • 图片
  • 图片
  • 图片
  • 图片
  • 图片
  • 图片
  • 图片
  • 图片
  • 图片
  • 图片
  • 图片
  • 上一个 下一个
    2024第八届金腾奖 私宅(独居)丨私宅(多人居)丨餐饮丨酒店丨办公丨商业丨公共丨公益丨人物丨NEW100 jintengAWARD(小金_金腾奖组委会) 广州市海珠区琶洲大道68号华新中心21楼
    金腾奖视频号 金腾奖小红书号 监制:刘译遥
    统筹:张俊媚
    运营:赖钰炼 曹凯月 刘芳棋 小金
    新媒体:王贝贝 严洁 张文一
    技术:黄天佑 丁德昌
    最终解释权归金腾奖主办方所有