温暖的意象
作品详情
  • Details of the work 标题横线
    头像或者logo
    图片 KD室内设计事务所 贰拾柒设计经纪特约推荐
    城市:重庆
    公司:KD室内设计事务所
    参赛作品: 温暖的意象
    空间类型:别墅
    个人/公司简介:
    KD室内设计事务所(重庆恺邸装饰设计有限公司) 是一家专注空间统筹规划、硬装设计与施工 陈设设计与落地、主材设备代购于一体的全案设计托管机构 我们为客户提供落地效果更好、预算更可控、效率更高 更省时省心省力省钱的专业设计服务 自2005年成立以来 我们不改初心 潜心于提高设计水平 开发更先进的施工技术 努力为客户创造最满意的空间产品 兢兢业业屡创佳绩 曾连获四届·年度国际空间设计大奖·艾特奖 连获六届·中国国际空间环境艺术设计大奖·筑巢奖 连获四届·中国室内设计年度评选·金堂奖 连获三届·金瓦奖·一个生活家评的奖 连获三届中国·芒果奖最佳商业空间奖 连获二届广州设计州周中国·新商业空间大奖 连获二届IDS·国际设计先锋榜 优秀奖 获IDS·国际设计先锋榜.最具空间表现奖 重庆室内建筑设计企业联合会CIDEA理事单位[重庆市一级行业商会] 重庆互联网装饰设计委员会会理事单位 由六位中国装饰协会颁发认证的高级建筑师领衔设计 企业愿景:以原创设计,敬美好生活,值得信赖并受人尊重 企业使命:让恺邸创造亿万美好生活空间,让众多热爱生活之人,因“恺邸”生活更美好幸福
    设计说明 | Design Instruction
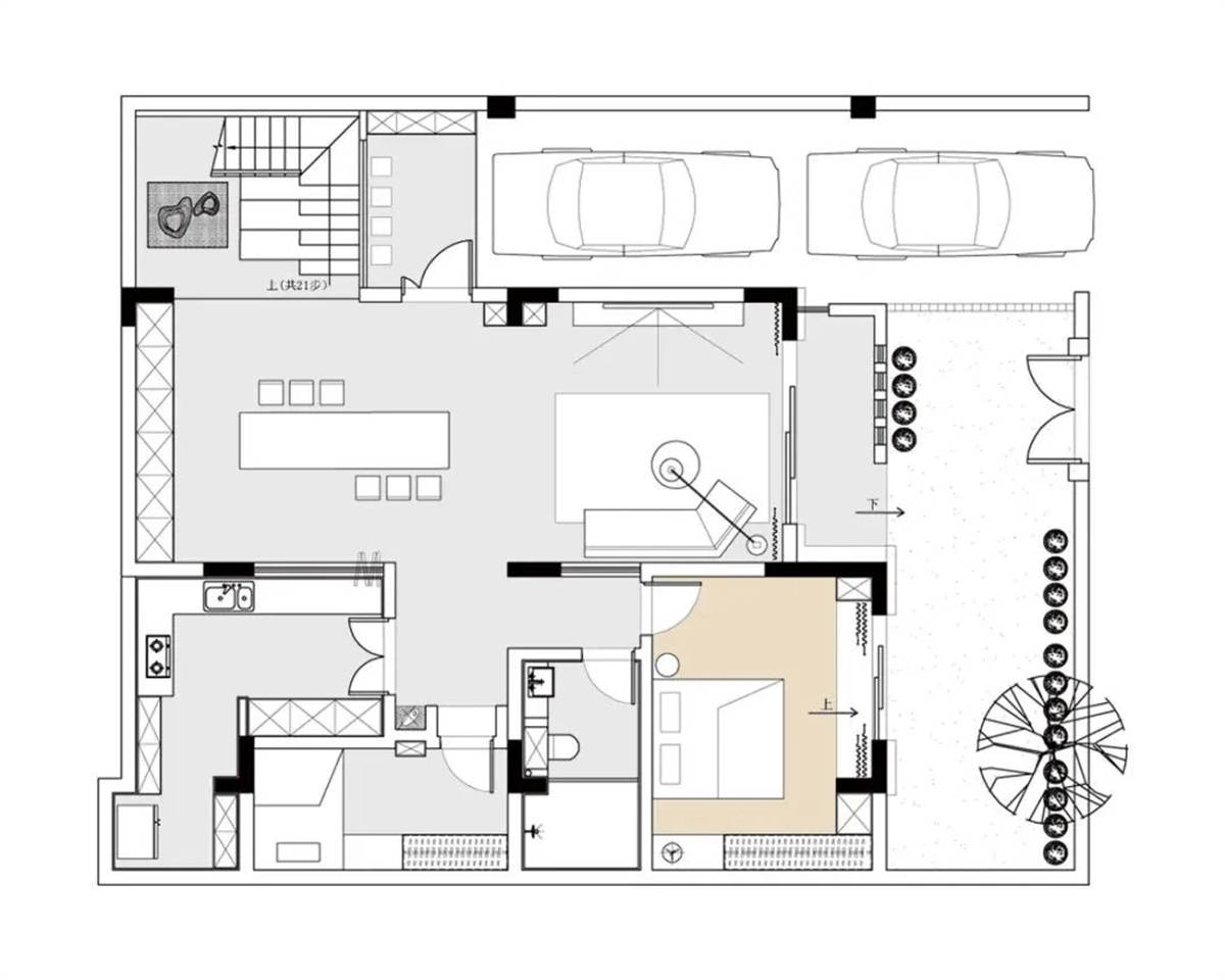
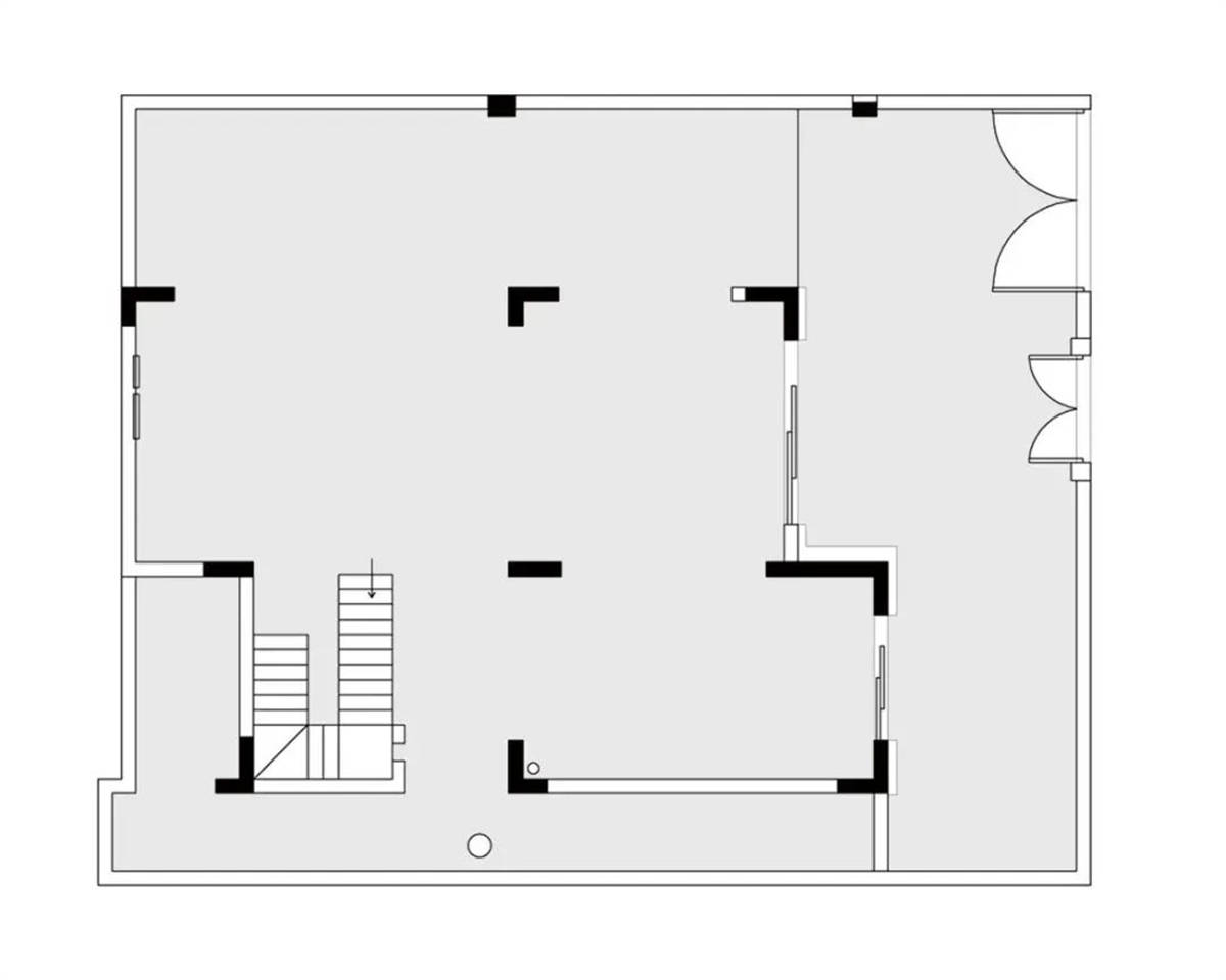
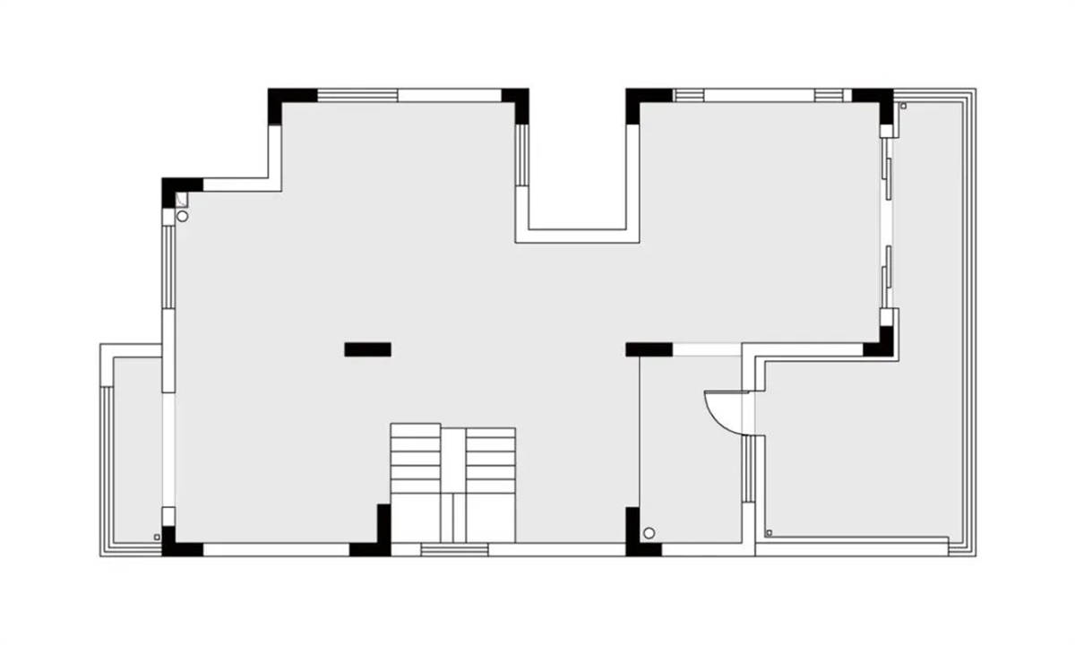
  • 中冶·铜锣台【第壹套】 本案位于重庆渝北区,毗邻铁山坪森林公园,整个环境以自然为中心出发点,将人与物/环境视为统一体的共生理念。朴素,原始,融入等形容词仅仅只是表层的形式描述,更是创作心境的一种表达。 在宁静的环境中,质朴幽静的气息伴随着树影的摇曳扑面而来。肌理斑驳的石材与时间洗礼的木纹质感,配合点缀的大面积玻璃窗营造出复古的空间基调。 设计师及团队将表面粗糙的抹面和石材运用至室内空间,并以自然光线调和略显深沉的色彩,使亮与暗在空间中如油画般铺陈开,光影间柔和的对比过渡,为空间注入诗意! 负一层功能划分:门厅、客厅、餐厅、厨房、公卫、老人房。 车库与室内通过一扇大的落地窗串联两个空间,借助逆向思维,将采光天井打造成全玻璃的通透楼梯间,塑造出变化丰富的光影效果。 改造后的沙发墙,设计师通过重建镂空墙体,使空间的整体氛围能够匹配光影的自然,使光与秩序性的排列在空间里营造出时间的光旅/韵律的变化,凸显出微水泥,木质,布艺等不同材质的细节和肌理。 设计师将车库与楼梯间,入口相连接,通过大地色的石材纹理和适当的铁艺与水泥楼梯踏步,透过相呼应的玻璃将自然景色引入餐厅,营造出和谐的视觉体验。 厨房与餐厅通过木质的格窗打造先抑后扬的空间体验,敞亮的室内空间与楼梯间相呼应,至上而下的连通了两个区域,增加了各个层次间的对话。 家具与墙体的饰面延续了统一的色调,同时用灰色墙面元素点缀修饰细节,塑造家的意象。 老人房是觅得安宁和自由的空间,无需过多的装饰,用弧形的吊顶表现柔和的氛围。 一层功能划分为:多功能书房、茶室、两间次卧、花园等。 一层空间划出一大片区域来打造茶室,这里既可以作为招待客人的品茗空间,也可以作为主人的独处场所。 多面透明玻璃围合而成,让茶室形成自然静谧、大气放松的休闲空间,亲切平和地呈现温润而安然的理想生活形态,赋予归家从容安定的感受。 设计师打开非承重墙,用新的设计手法结构空间,创建了一个洋溢着开放式的生活家。用冷暖的材质创造新的色彩平衡,将舒适与精致的元素完美融合。 多功能书房是主人追寻自我,与内心对话的空间。着是一个光线充足的区域,即连接室外花园,又连接室内茶室,通过一扇海派的黑色格子铁艺门,形成内外的和谐过渡。书房的木质格窗,通过穿插其间的门窗与环境对话,让自然成了生活的一部分。 书房的窗户平台加宽延伸至室外,上开的窗户打开,就是一个慵懒的下午,阳光咖啡,自然与风完美的洒满这个窗台,室内外巧妙的融为一体。 卧室延续一楼的色域,黑色的铁艺灯,配上黑色的木质边框床,金丝绒的床头都在显示岁月的痕迹。 二层功能划分为:主卧套房、儿童房套房等。 设计师保留了主卧室区域的坡屋顶,高耸的不对称天花,给空间带来十分独特的气质,简约而富有层次感,与大面积的单色形成鲜明的对比,重现永恒的格调质感。 不规则的卫生间门,如造景师一般化解生活的单调…… 卫生间巧妙利用承重柱,做双台盆设计,柜体的胡桃木,沉稳内敛,暖灯的加入,让休憩氛围更趋于慵懒、舒缓。 大面积的浅灰色中,点缀少许墨绿色和姜黄色,使儿童房更显亲昵和温和,收纳与展示一体柜的定制形式,增加趣味的同时也让视觉更显轻便。
  • 图片
  • 图片
  • 图片
  • 图片
  • 图片
  • 图片
  • 图片
  • 图片
  • 图片
  • 图片
  • 图片
  • 图片
  • 图片
  • 图片
  • 图片
  • 图片
  • 图片
  • 图片
  • 图片
  • 图片
  • 图片
  • 图片
  • 图片
  • 图片
  • 图片
  • 图片
  • 图片
  • 图片
  • 图片
  • 图片
  • 图片
  • 图片
  • 图片
  • 图片
  • 图片
  • 图片
  • 图片
  • 图片
  • 图片
  • 图片
  • 图片
  • 图片
  • 图片
  • 图片
  • 图片
  • 图片
  • 图片
  • 图片
  • 图片
  • 图片
  • 图片
  • 图片
  • 图片
  • 图片
  • 图片
  • 图片
  • 上一个 下一个
    2024第八届金腾奖 私宅(独居)丨私宅(多人居)丨餐饮丨酒店丨办公丨商业丨公共丨公益丨人物丨NEW100 jintengAWARD(小金_金腾奖组委会) 广州市海珠区琶洲大道68号华新中心21楼
    金腾奖视频号 金腾奖小红书号 监制:刘译遥
    统筹:张俊媚
    运营:赖钰炼 曹凯月 刘芳棋 小金
    新媒体:王贝贝 严洁 张文一
    技术:黄天佑 丁德昌
    最终解释权归金腾奖主办方所有