ZhongTianJinHaiAng
作品详情
  • Details of the work 标题横线
    头像或者logo
    图片 章丽青
    城市:福州
    公司: 福州纵禾设计
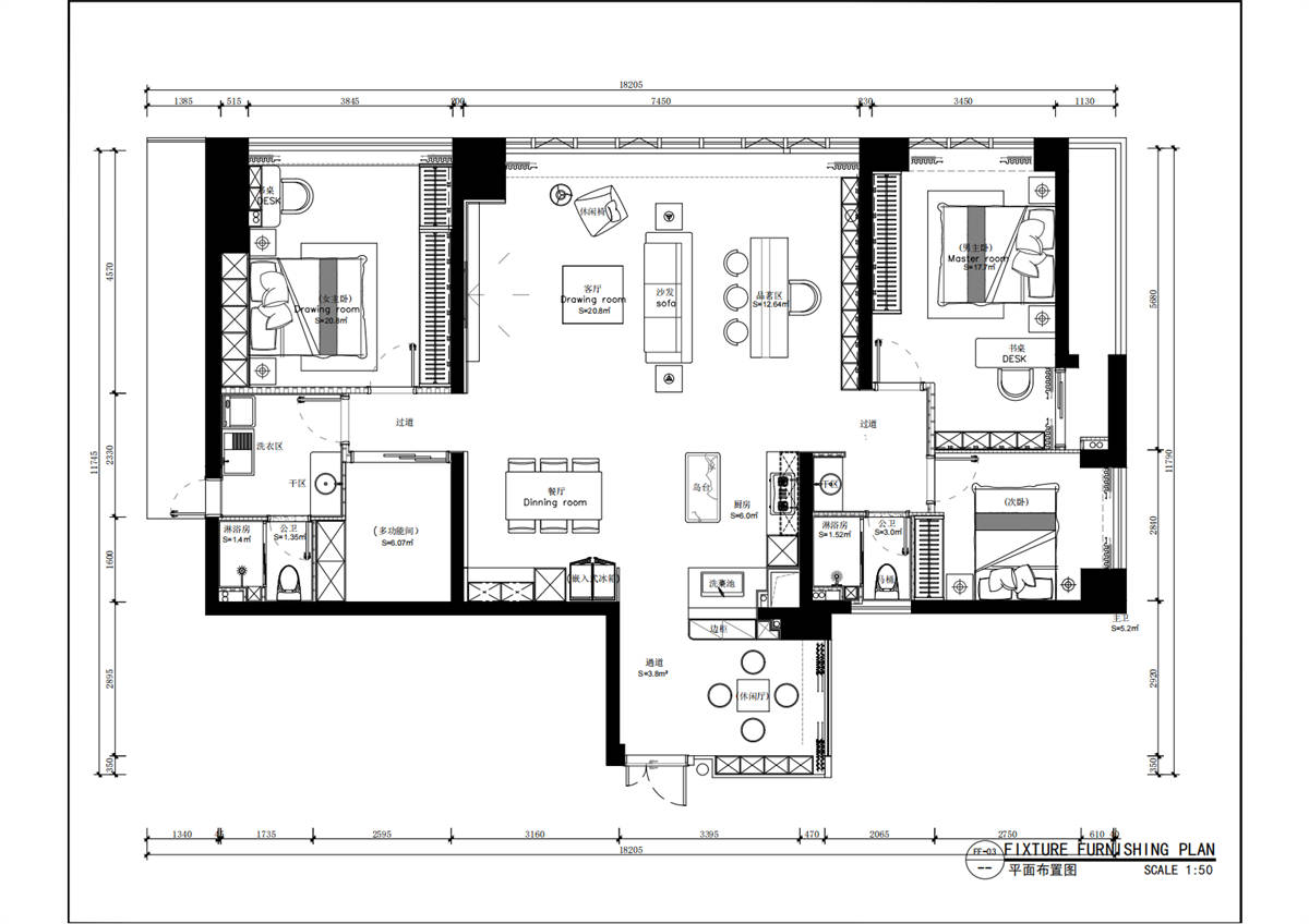
    参赛作品: 中天金海岸
    空间类型:公寓(150㎡以下)
    个人/公司简介:
    国家二级注册建造师。 福州ZHD·纵禾设计 创始人 中国建筑装饰室内建筑师。 中国亚洲经济发展协会 空间设计发展委员会 理事 中国室内装饰协会 会员。 福建室内设计青年分会 会员。 荣获第十二届中国国际空间大赛银奖。 荣获亚太空间设计年度评选“杰出设计师奖”。 个人座右铭: “ 致力于分析问题 ,解决问题 , 为客户筹谋效益 ,让设计落地 。 ”
    设计说明 | Design Instruction
  • “禅意东方,现代雅韵”,旨在打造一个融合传统中式美学与现代生活方式的舒适平层空间。 汲取传统中式建筑的装饰元素,如对称布局、中式家具等,同时融入现代设计手法和材料,实现传统与现代的完美融合。同时,通过引入自然光线和绿色植物,增加空间的生机与活力。通过合理的布局、色彩搭配和细节处理,打造出一个既美观又实用的居住空间。选择新中式风格的家具,造型简洁流畅,注重线条的美感。融合现代的舒适功能,如人体工程学设计等。搭配中式元素的装饰品,如字画、瓷器、盆景等,展现传统文化的魅力。同时,加入现代的艺术作品,如抽象画、雕塑等,增添空间的时尚感。总之,新中式风格设计融合了轻奢与现代元素,既传承了中式文化的精髓,又满足了现代人对高品质生活的追求。通过精心的设计和搭配,打造出一个充满文化底蕴、时尚舒适的居住空间。
  • 图片
  • 图片
  • 图片
  • 图片
  • 图片
  • 图片
  • 图片
  • 图片
  • 图片
  • 图片
  • 图片
  • 图片
  • 图片
  • 上一个 下一个
    2024第八届金腾奖 私宅(独居)丨私宅(多人居)丨餐饮丨酒店丨办公丨商业丨公共丨公益丨人物丨NEW100 jintengAWARD(小金_金腾奖组委会) 广州市海珠区琶洲大道68号华新中心21楼
    金腾奖视频号 金腾奖小红书号 监制:刘译遥
    统筹:张俊媚
    运营:赖钰炼 曹凯月 刘芳棋 小金
    新媒体:王贝贝 严洁 张文一
    技术:黄天佑 丁德昌
    最终解释权归金腾奖主办方所有